中古マンション サーパス西古松I 902号室 岡山市北区西古松西町の中古マンション
NEW 11.29掲載情報更新日:2025年11月29日 次回更新予定日:2025年12月13日
- 2,390万円
-
- 借入ご希望金額
万円 - 借入期間
年 - 借入金利
% - 月々のお支払い金額
円
- 借入ご希望金額
※ 月々のお支払例は目安の試算となりますので、実際の金額とは異なる場合がございます。詳しくは店舗までお問合わせください。
- 岡山市北区西古松西町
-
JR宇野線『大元』 徒歩11分 (約880m)
岡山市北区西古松西町マンション | 物件情報
◆2025年12月リフォーム完了予定の3LDK物件です! ◆楽器演奏可♪
◆水廻り以外段差解消!
◆南向き9階のお部屋で、陽当り・通風・眺望良好です!
物件の設備
- 公営水道
- コンロ三口
- システムキッチン
- 浴室乾燥機
- 温水洗浄便座
- B/T別室
- 室内洗濯機置場
- 洗髪洗面化粧台
- 洗面所独立
- 照明器具
- 間接照明
- ダウンライト
- 人感照明センサー
- オートロック
- 火災警報器/報知機
- フローリング
- 全室フローリング
- フローリング張替
- クッションフロア
- バルコニー
- 南面バルコニー
- 宅配BOX
- エレベーター
- 駐輪場
- バイク置場
物件の特徴
- 管理人日勤
- 内装リフォーム済
- 南向
- 眺望良好
- 通風良好
- 陽当り良好
- 楽器相談
物件詳細情報
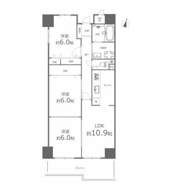
| 価格 | 2,390万円 | 間取り | 3LDK |
|---|---|---|---|
| 物件種別 | 中古マンション | ||
| 所在地 | 岡山県岡山市北区西古松西町 | ||
| アクセス |
|
||
| 専有面積 | 壁芯 70.24㎡ | 所在階 | 14階建/9階部分 |
| 主要採光 | 南向 | バルコニー | 南向10.93㎡ |
| その他 | |||
| 権利 | 所有権 |
||
| 保証・評価 | |||
| リフォーム | 【水回り】2025年12月 キッチン・浴室・トイレ・洗面・給湯器 ◆システムキッチン新規交換 ◆ユニットバス新規交換 ◆浴室乾燥機新規設置 ◆洗面化粧台新規交換 ◆洗濯機防水パン新規交換 ◆温水洗浄機能付トイレ新規交換 ◆ガス給湯器交換 【内装】2025年12月 壁、天井 ・床 ・全室クロス ・建具 ◆床フローリング張替 ◆壁・天井クロス張替 ◆建具新規交換 【その他】2025年12月 ◆エアコン先行配管工事実施 ◆LEDシーリングライト新規取付 ◆LEDセンサーライト新規設置 ◆LEDダウンライト新規設置 ◆カーテンレール交換 ◆ハウスクリーニング |
||
| 総戸数 | 110戸 | 面積 | |
| 築年月 | 1989年(平成1年)02月築 | 建物構造 | SRC |
| 施工会社 | 穴吹工務店 | ||
| 管理会社 | 株式会社穴吹ハウジングサービス | 管理方式 | 全部委託 日勤管理 |
| 駐車場 | 【駐車場】空無 【バイク置き場】空有 【駐輪場】空有 |
||
| 都市計画 | 市街化区域 |
用途地域 | 近隣商業 |
| 建ぺい/容積率 | 80% / 300% | 土地国土法 | |
| 法令制限 | |||
| 小学区 | 大元小学校 徒歩10分 (約770m) | 中学区 | 桑田中学校 徒歩24分 (約1880m) |
| 現況 | 空 | 引渡 | 期日指定:2026年01月上旬 |
| 管理費 | 5,548円/月 | 修繕積立金 | 11,600円/月 |
| その他費用 | |||
| 周辺環境 | 大元駅 徒歩11分 (約870m) 岡山市立大元小学校 徒歩10分 (約770m) 桑田中学校 徒歩24分 (約1880m) 岡山市立今認定こども園 徒歩20分 (約1580m) マルナカ大元店 徒歩11分 (約820m) セブン-イレブン 岡山野田3丁目店 徒歩7分 (約560m) マツモトキヨシ 岡山野田店 徒歩7分 (約520m) おおもと病院 徒歩4分 (約310m) 中国銀行 岡山西店 徒歩20分 (約1570m) |
||
| 備考 | ◆2025年12月リフォーム完了予定の3LDK物件です! ◆楽器演奏可♪ ◆水廻り以外段差解消! ◆南向き9階のお部屋で、陽当り・通風・眺望良好です! ※売主指定の司法書士をご利用いただきます。 |
||
| 物件番号 | 4506927 | 取引態様 | 媒介 |
取扱店舗情報
ハウスドゥ 岡山駅西口 株式会社アールイープロジェクト 店舗詳細ページへ
| 電話番号 | 086-239-8621 |
|---|---|
| 所在地 | 〒700-0025 岡山県岡山市北区寿町1-3 ウエストサイドオカヤマ1階 |
| 営業時間 | 9:00~18:00 |
| 定休日 | 水曜日 |
| 宅建免許番号 | 岡山県知事(2)第5855号 |
| アクセス | 店舗への地図はこちら |

来店ご予約
岡山県岡山市北区で価格が似ている物件はこちら
- 岡山県
マイページ物件数 - 4,456件
最近見た物件
-
-

-
- 新築一戸建て
- 3,898万円
-
北九州市八幡西区相生町
-
筑豊電気鉄道今池
-
-
-

-
- 中古マンション
- 3,310万円
-
豊中市東泉丘2丁目
-
北大阪急行南北線桃山台
-
-
-

-
- 新築一戸建て
- 3,090万円
-
松江市法吉町
-
一畑電車北松江線松江しんじ湖温泉
-
岡山県中古マンション新着物件
-
-

-
- 収益
- 450万円
-
岡山市北区東島田町2丁目
-
JR山陽本線岡山駅
-
-
-

-
- 中古マンション
- 2,298万円
-
岡山市北区鹿田本町
-
JR山陽本線岡山駅
-
-
-

-
- 収益
- 450万円
-
岡山市北区東島田町2丁目
-
JR山陽本線岡山駅
-
-
-

-
- 中古マンション
- 3,390万円
-
岡山市北区西古松西町
-
JR宇野線大元駅
-
-
-

-
- 中古マンション
- 2,290万円
-
岡山市北区東古松南町
-
JR宇野線大元駅
-
-
-

-
- 中古マンション
- 2,290万円
-
岡山市北区東古松南町
-
JR宇野線大元駅
-
-
-

-
- 中古マンション
- 2,390万円
-
岡山市中区浜3丁目
-
JR山陽本線西川原駅
-
- お近くの店舗を探す
-
おすすめ物件
-
-

-
- 中古マンション
- 550万円
-
岡山市北区内山下1丁目
-
岡山電軌東山本線県庁通り
-
-
-

-
- 中古マンション
- 550万円
-
岡山市北区内山下1丁目
-
岡山電軌東山本線県庁通り
-
-
-

-
- 中古マンション
- 845万円
-
岡山市北区津高
-
中鉄バス中原バス停
-






