グランデュア北郷 札幌市白石区北郷八条3丁目の中古マンション
NEW 12.05掲載情報更新日:2025年12月05日 次回更新予定日:2025年12月19日
- 1,000万円
-
- 借入ご希望金額
万円 - 借入期間
年 - 借入金利
% - 月々のお支払い金額
円
- 借入ご希望金額
※ 月々のお支払例は目安の試算となりますので、実際の金額とは異なる場合がございます。詳しくは店舗までお問合わせください。
- 札幌市白石区北郷八条3丁目
-
JR千歳線『白石』 徒歩22分 (約1700m)
JR函館本線『白石』 バス乗車7分 北白石中学校 停 徒歩4分 (約300m)
札幌市白石区北郷八条3丁目マンション | 物件情報
8階部分南向きにつき日当たり良好!北郷IC入口まで車4分!
■小学校・中学校まで徒歩10分圏内!お子様の通学も安心♪
■リフォーム素材に最適!
■近隣に公園が複数あり!子育て世代にもおすすめ!
■敷地内駐車場空きあり!
物件の設備
- 公営水道
- 下水道
- 給湯
- バス
- トイレ
- 室内洗濯機置場
- 暖房
- FF暖房
- 石油暖房
- 灯油
- 照明器具
- バルコニー
- 南面バルコニー
物件の特徴
- 管理人日勤
- 南向
- 即入居可
物件詳細情報
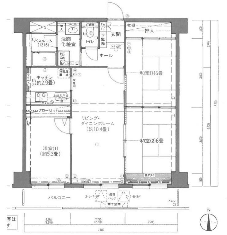
| 価格 | 1,000万円 | 間取り | 3LDK |
|---|---|---|---|
| 物件種別 | 中古マンション | ||
| 所在地 | 北海道札幌市白石区北郷八条3丁目6-36 | ||
| アクセス |
|
||
| 専有面積 | 壁芯 67.86㎡ | 所在階 | 8階建/8階部分 |
| 主要採光 | 南向 | バルコニー | 南向9.36㎡ |
| その他 | |||
| 権利 | 所有権 |
||
| 保証・評価 | |||
| リフォーム | |||
| 総戸数 | 面積 | ||
| 築年月 | 1992年(平成4年)07月築 | 建物構造 | RC |
| 施工会社 | |||
| 管理会社 | 管理方式 | 全部委託 日勤管理 | |
| 駐車場 | |||
| 都市計画 | 用途地域 | ||
| 建ぺい/容積率 | 土地国土法 | ||
| 法令制限 | |||
| 小学区 | 北白石小学校 徒歩9分 (約700m) | 中学区 | 北白石中学校 徒歩6分 (約450m) |
| 現況 | 空 | 引渡 | 即 |
| 管理費 | 5,972円/月 | 修繕積立金 | 16,694円/月 |
| その他費用 | |||
| 周辺環境 | セブン-イレブン 札幌北郷6条店 徒歩5分 (約380m) 札幌市立北白石中学校 徒歩6分 (約460m) 札幌市立北白石小学校 徒歩7分 (約550m) 産直生鮮市場 北郷店 徒歩13分 (約980m) 白石北郷郵便局 徒歩11分 (約880m) 医療法人社団 ふるげん内科循環器クリニック 徒歩13分 (約1010m) |
||
| 備考 | |||
| 物件番号 | 4513973 | 取引態様 | 媒介 |
取扱店舗情報
ハウスドゥ 苗穂 株式会社ジョイフルホーム 店舗詳細ページへ
| 電話番号 | 011-299-3880 |
|---|---|
| 所在地 | 〒065-0041 北海道札幌市東区本町一条9丁目1-40 |
| 営業時間 | 9:00~17:30 |
| 定休日 | 水曜日 |
| 宅建免許番号 | 北海道知事 上川(4)第1083号 |
| アクセス | 店舗への地図はこちら |

来店ご予約
北海道札幌市白石区で価格が似ている物件はこちら
- 北海道
マイページ物件数 - 6,053件
最近見た物件
-
-

-
- 中古マンション
- 1,380万円
-
名古屋市中川区露橋2丁目
-
名鉄名古屋本線山王
-
-
-

-
- 中古マンション
- 790万円
-
名古屋市中川区一色新町2丁目
-
近鉄名古屋線伏屋
-
-
-

-
- 中古マンション
- 1,999万円
-
福岡市博多区板付4丁目
-
JR鹿児島本線笹原
-
北海道中古マンション新着物件
-
-

-
- 中古マンション
- 1,690万円
-
札幌市北区北二十三条西3丁目
-
札幌市南北線北24条駅
-
-
-

-
- 中古マンション
- 1,980万円
-
札幌市白石区本郷通2丁目北
-
札幌市東西線白石駅
-
-
-

-
- 中古マンション
- 1,000万円
-
札幌市白石区北郷八条3丁目
-
JR千歳線白石駅
-
-
-

-
- 中古マンション
- 1,990万円
-
札幌市西区二十四軒三条5丁目
-
札幌市東西線二十四軒駅
-
-
-

-
- 中古マンション
- 2,190万円
-
札幌市豊平区中の島一条4丁目
-
札幌市南北線中の島駅
-
-
-

-
- 中古マンション
- 3,690万円
-
札幌市白石区南郷通1丁目北
-
札幌市東西線白石駅
-
-
-

-
- 中古マンション
- 2,148万円
-
札幌市西区八軒五条西4丁目
-
JR札沼線八軒駅
-
- お近くの店舗を探す
-
おすすめ物件
-
-

-
- 中古マンション
- 1,280万円
-
札幌市北区篠路六条8丁目
-
JR札沼線篠路
-
-
-

-
- 中古マンション
- 2,780万円
-
札幌市中央区南二十七条西12丁目
-
札幌市軌道線石山通
-
-
-

-
- 中古マンション
- 2,990万円
-
札幌市東区北二十七条東15丁目
-
札幌市東豊線元町
-
-
-

-
- 中古マンション
- 3,980万円
-
札幌市東区北二十三条東15丁目
-
札幌市東豊線元町
-
-
-

-
- 中古マンション
- 700万円
-
札幌市豊平区美園五条7丁目
-
札幌市東豊線美園
-
-
-

-
- 中古マンション
- 2,100万円
-
小樽市色内1丁目
-
JR函館本線小樽
-
-
-

-
- 中古マンション
- 1,580万円
-
札幌市北区北三十九条西5丁目
-
札幌市南北線麻生
-
-
-

-
- 中古マンション
- 1,280万円
-
函館市中道2丁目
-
函館バス鍛治2丁目
-
-
-

-
- 中古マンション
- 3,690万円
-
札幌市白石区南郷通1丁目北
-
札幌市東西線白石
-
-
-

-
- 中古マンション
- 2,780万円
-
札幌市豊平区西岡四条7丁目
-
札幌市南北線澄川
-


























