リーベスト勝田台・エルベールの街 C棟 佐倉市井野の中古マンション
掲載情報更新日:2026年02月19日 次回更新予定日:2026年03月05日
- 1,780万円
-
- 借入ご希望金額
万円 - 借入期間
年 - 借入金利
% - 月々のお支払い金額
円
- 借入ご希望金額
※ 月々のお支払例は目安の試算となりますので、実際の金額とは異なる場合がございます。詳しくは店舗までお問合わせください。
- 佐倉市井野
-
京成本線『勝田台』 徒歩15分 (約1200m)
東葉高速鉄道『東葉勝田台』 徒歩15分 (約1200m)
京成本線『志津』 徒歩19分 (約1520m)
佐倉市井野マンション | 物件情報
★即日ご案内可能 ★資料請求のみも大歓迎 ★新規リフォーム済み ★ペット飼育可能
◇エアコン1台プレゼント中◇
本物件をご成約のお客様へプレゼント!
※本プレゼントはご成約物件のみが対象です。
※ご成約時期によりモデルが変更となる場合がございます。
※取付費用別途
物件の設備
- 公営水道
- 公共下水
- 都市ガス
- コンロ三口
- システムキッチン
- バス
- シャワー
- トイレ
- 温水洗浄便座
- 室内洗濯機置場
- 洗面所独立
- モニタ付インターホン
- クローゼット
- シューズボックス
物件の特徴
- 管理人日勤
- 内装リフォーム済
- 即入居可
物件詳細情報
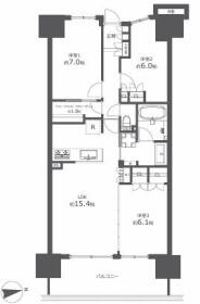
| 価格 | 1,780万円 | 間取り | 3LDK |
|---|---|---|---|
| 物件種別 | 中古マンション | ||
| 所在地 | 千葉県佐倉市井野1586-25エルベールの街 C棟 | ||
| アクセス |
|
||
| 専有面積 | 壁芯 80.16㎡ | 所在階 | 4階建/1階部分 |
| 主要採光 | バルコニー | ||
| その他 | |||
| 権利 | 所有権 |
||
| 保証・評価 | |||
| リフォーム | 【水回り】2025年11月 キッチン・浴室・トイレ 【内装】2025年11月 全室クロス |
||
| 総戸数 | 179戸 | 面積 | |
| 築年月 | 1999年(平成11年)01月築 | 建物構造 | RC |
| 施工会社 | |||
| 管理会社 | 大和ライフネクスト株式会社 | 管理方式 | 全部委託 日勤管理 |
| 駐車場 | |||
| 都市計画 | 用途地域 | ||
| 建ぺい/容積率 | 土地国土法 | ||
| 法令制限 | |||
| 小学区 | 井野小学校 徒歩24分 (約1900m) | 中学区 | 志津中学校 徒歩18分 (約1400m) |
| 現況 | 空 | 引渡 | 即 |
| 管理費 | 10,000円/月 | 修繕積立金 | 10,500円/月 |
| その他費用 | |||
| 周辺環境 | ローソン佐倉西志津1丁目店 徒歩11分 (約850m) マルエツ新志津店 徒歩13分 (約970m) 佐倉志津郵便局 徒歩13分 (約1040m) ランドロームフードマーケット 勝田台店 徒歩15分 (約1140m) ウエルシア佐倉志津店 徒歩14分 (約1080m) 井野ふれ愛公園 徒歩16分 (約1210m) 佐倉市志津出張所 徒歩17分 (約1330m) トップマート 志津店 徒歩19分 (約1480m) 志津さくら内科クリニック 徒歩17分 (約1330m) ベルク佐倉志津店 徒歩18分 (約1400m) |
||
| 備考 | |||
| 物件番号 | 4517282 | 取引態様 | 媒介 |
取扱店舗情報
ハウスドゥ 東習志野 株式会社Delta company 店舗詳細ページへ
| 電話番号 | 047-411-6912 |
|---|---|
| 所在地 | 〒275-0001 千葉県習志野市東習志野5丁目19-17 宮澤マンションC号室 |
| 営業時間 | 平日9:30~18:30 土日祝日8:30~17:30 |
| 定休日 | 水曜日 |
| 宅建免許番号 | 千葉県知事(1)第18367号 |
| アクセス | 店舗への地図はこちら |

来店ご予約
千葉県佐倉市で価格が似ている物件はこちら
- 千葉県
マイページ物件数 - 2,135件
最近見た物件
-
-

-
- 中古マンション
- 1,500万円
-
豊中市東豊中町6丁目
-
北大阪急行南北線桃山台
-
-
-

-
- 土地
- 1,080万円
-
豊橋市吉川町
-
JR飯田線船町
-
-
-

-
- 土地
- 2,990万円
-
尾張旭市旭前町3丁目
-
名鉄瀬戸線旭前
-
千葉県中古マンション新着物件
-
-

-
- 中古マンション
- 2,680万円
-
松戸市新松戸7丁目
-
つくばエクスプレス南流山駅
-
-
-

-
- 中古マンション
- 1,980万円
-
松戸市新松戸7丁目
-
JR武蔵野線南流山駅
-
-
-

-
- 中古マンション
- 2,499万円
-
船橋市高野台3丁目
-
京成電鉄松戸線鎌ヶ谷大仏駅
-
-
-

-
- 中古マンション
- 1,680万円
-
市川市南八幡4丁目
-
JR総武・中央緩行線本八幡駅
-
-
-

-
- 中古マンション
- 2,180万円
-
松戸市新松戸北2丁目
-
JR千代田・常磐緩行線新松戸駅
-
-
-

-
- 中古マンション
- 4,698万円
-
松戸市二ツ木
-
JR千代田・常磐緩行線新松戸駅
-
-
-

-
- 中古マンション
- 1,490万円
-
我孫子市布佐平和台1丁目
-
JR成田線布佐駅
-
- お近くの店舗を探す
-
おすすめ物件
-
-

-
- 中古マンション
- 280万円
-
流山市駒木
-
つくばエクスプレス流山おおたかの森
-
-
-

-
- 中古マンション
- 2,690万円
-
流山市加3丁目
-
つくばエクスプレス流山セントラルパーク
-
-
-

-
- 中古マンション
- 1,100万円
-
松戸市松戸新田
-
JR常磐線松戸
-
-
-

-
- 中古マンション
- 2,580万円
-
市原市五井
-
JR内房線五井
-
-
-

-
- 中古マンション
- 1,280万円
-
印旛郡酒々井町東酒々井6丁目
-
JR成田線酒々井
-
-
-

-
- 中古マンション
- 3,580万円
-
千葉市中央区市場町
-
千葉都市モノレール県庁前
-
-
-

-
- 中古マンション
- 1,280万円
-
佐倉市大蛇町
-
京成本線京成佐倉
-
-
-

-
- 中古マンション
- 2,000万円
-
松戸市小山
-
JR常磐線松戸
-
-
-

-
- 中古マンション
- 2,690万円
-
流山市加3丁目
-
つくばエクスプレス流山セントラルパーク
-
-
-

-
- 中古マンション
- 1,380万円
-
松戸市小金きよしケ丘3丁目
-
JR千代田・常磐緩行線北小金
-























□当社は住宅ローンに『自信』があります。是非一度ご相談下さい□
「他社で断られた」 「頭金が無いからな」
「他の返済があるからな」
住宅ローンがご不安な方もお気軽にご相談下さい♪
親身にご相談させていただき、お客様に最適な金融機関をご紹介いたします。
◇頭金0円からのご購入可能(諸費用もOK)
◇他の物件も見てみたい!などお気軽にお申し付け下さい♪
■現地案内会
平日のご見学もお電話1本で駆けつけます。
047-411-6912までお電話下さい。
■ご案内方法
ご来店できないお客様は、ご自宅への送迎やご指定の場所で待ち合わせてご案内。ご希望に合わせ周辺情報もご案内!
■キッズスペース
お子様が退屈しないようDVD、ぬりえ、おもちゃなどをご用意していますので安心してご来店ください。
■専用駐車場
お客様専用駐車場完備!お気軽にご来店お待ちいたしております。
■売却査定買取
仲介による売却はもちろん、ご近所に知られたくない、急いで売却したいときには高額査定で買取します!!
地元密着の情報量とフットワークの良さでお手伝いさせて頂きます。