パークスクエア川口 川口市末広1丁目の中古マンション
NEW 12.08掲載情報更新日:2025年12月08日 次回更新予定日:2025年12月22日
- 5,690万円
-
- 借入ご希望金額
万円 - 借入期間
年 - 借入金利
% - 月々のお支払い金額
円
- 借入ご希望金額
※ 月々のお支払例は目安の試算となりますので、実際の金額とは異なる場合がございます。詳しくは店舗までお問合わせください。
- 川口市末広1丁目
-
埼玉高速鉄道『川口元郷』 徒歩11分 (約880m)
JR京浜東北・根岸線『川口』 徒歩22分 (約1720m)
埼玉高速鉄道『南鳩ヶ谷』 徒歩17分 (約1320m)
川口市末広1丁目マンション | 物件情報
人気エリアに売マンションが登場!令和8年2月リノベーション完了予定!LDKはゆったり21帖超えです♪
総戸数128戸の大型マンション★
◆令和8年2月リノベーション完了予定
◆12階部分につき眺望良好☆
物件の設備
- コンロ三口
- システムキッチン
- バス
- トイレ
- 室内洗濯機置場
- 洗面所独立
- LDK20畳以上
- ウォークインクローゼット
- 収納スペース
- バルコニー
物件の特徴
- 管理人日勤
- リノベーション
物件詳細情報
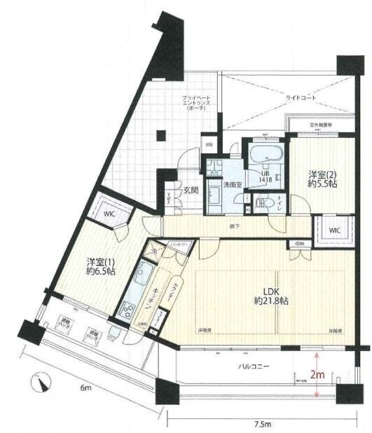
| 価格 | 5,690万円 | 間取り | 2LDK |
|---|---|---|---|
| 物件種別 | 中古マンション | ||
| 所在地 | 埼玉県川口市末広1丁目 | ||
| アクセス |
|
||
| 専有面積 | 壁芯 79.14㎡ | 所在階 | 13階建/12階部分 |
| 主要採光 | 南西向 | バルコニー | 南西向26.15㎡ |
| その他 | |||
| 権利 | 所有権 |
||
| 保証・評価 | |||
| リフォーム | 【その他】2026年02月予定 キッチン/浴室/洗面/トイレ/床暖房:新規/フローリング張替え/フロアタイルなど |
||
| 総戸数 | 128戸 | 面積 | |
| 築年月 | 2003年(平成15年)03月築 | 建物構造 | SRC (一部 鉄骨 ) |
| 施工会社 | |||
| 管理会社 | 住友不動産建物サービス | 管理方式 | 全部委託 日勤管理 管理組合あり |
| 駐車場 | |||
| 都市計画 | 用途地域 | ||
| 建ぺい/容積率 | 土地国土法 | ||
| 法令制限 | |||
| 小学区 | 十二月田小学校 徒歩4分 (約320m) | 中学区 | 十二月田中学校 徒歩5分 (約370m) |
| 現況 | 空 | 引渡 | 期日指定:2026年02月以降 |
| 管理費 | 14,765円/月 | 修繕積立金 | 18,550円/月 |
| その他費用 | |||
| 周辺環境 | 朝日中央公園 徒歩5分 (約370m) 田中医院 徒歩5分 (約370m) 川口市立十二月田中学校 徒歩5分 (約370m) 川口市立あさひ保育所 徒歩5分 (約370m) 川口朝日郵便局 徒歩5分 (約370m) 川口市立十二月田小学校 徒歩4分 (約320m) 社会医療法人新青会 川口工業総合病院 徒歩10分 (約730m) ファミリーマート 川口市役所前店 徒歩7分 (約520m) コモディイイダ 川口青木店 徒歩7分 (約520m) 朝日中央公園 徒歩8分 (約570m) |
||
| 備考 | |||
| 物件番号 | 4518579 | 取引態様 | 媒介 |
取扱店舗情報
ハウスドゥ 鳩ヶ谷坂下町 株式会社ウェルカムホーム 店舗詳細ページへ
| 電話番号 | 048-242-5180 |
|---|---|
| 所在地 | 〒334-0003 埼玉県川口市坂下町3丁目32-21 |
| 営業時間 | 9:00~18:00 |
| 定休日 | 火曜日、水曜日、年末年始 |
| 宅建免許番号 | 埼玉県知事(1)第25389号 |
| アクセス | 店舗への地図はこちら |

来店ご予約
- 埼玉県
マイページ物件数 - 3,132件
最近見た物件
埼玉県中古マンション新着物件
-
-

-
- 中古マンション
- 5,690万円
-
川口市末広1丁目
-
埼玉高速鉄道川口元郷駅
-
-
-

-
- 中古マンション
- 3,280万円
-
川口市大字安行領根岸
-
埼玉高速鉄道新井宿駅
-
-
-

-
- 中古マンション
- 2,280万円
-
さいたま市北区日進町1丁目
-
湘南新宿ライン宇須大宮駅
-
-
-

-
- 中古マンション
- 2,390万円
-
川口市前川2丁目
-
埼玉高速鉄道新井宿駅
-
-
-

-
- 中古マンション
- 1,180万円
-
川越市伊勢原町5丁目
-
東武東上線鶴ヶ島駅
-
-
-

-
- 中古マンション
- 4,480万円
-
川口市朝日1丁目
-
埼玉高速鉄道川口元郷駅
-
-
-

-
- 中古マンション
- 2,490万円
-
川口市大字安行領根岸
-
埼玉高速鉄道新井宿駅
-
- お近くの店舗を探す
-
おすすめ物件
-
-

-
- 中古マンション
- 2,890万円
-
越谷市千間台西2丁目
-
東武伊勢崎・大師線せんげん台
-
-
-

-
- 中古マンション
- 3,150万円
-
吉川市大字保
-
JR武蔵野線吉川
-
-
-

-
- 中古マンション
- 3,090万円
-
三郷市半田
-
JR武蔵野線新三郷
-
-
-

-
- 中古マンション
- 3,298万円
-
越谷市南越谷4丁目
-
東武伊勢崎・大師線新越谷
-
-
-

-
- 中古マンション
- 2,690万円
-
越谷市南越谷4丁目
-
東武伊勢崎・大師線新越谷
-
-
-

-
- 中古マンション
- 890万円
-
上尾市上町1丁目
-
JR高崎線上尾
-
-
-

-
- 中古マンション
- 2,799万円
-
越谷市宮本町1丁目
-
東武伊勢崎・大師線越谷
-
-
-

-
- 中古マンション
- 3,578万円
-
川口市幸町3丁目
-
JR京浜東北・根岸線川口
-
-
-

-
- 中古マンション
- 510万円
-
越谷市赤山町1丁目
-
東武伊勢崎・大師線越谷
-
-
-

-
- 中古マンション
- 880万円
-
北本市朝日2丁目
-
JR高崎線北本
-






担当エージェント:富重 隆文
お客様に「寄り添う」会社です。不動産の購入は金額も大きく、不安なことがたくさんあると思います。ぜひ、一度ご連絡ください。不動産に関するプロとして、お客様の課題に一つ一つ向き合っていきます。