パテラスクエア北千住 足立区千住中居町の中古マンション
NEW 12.11掲載情報更新日:2025年12月11日 次回更新予定日:2025年12月25日
- 4,280万円
-
- 借入ご希望金額
万円 - 借入期間
年 - 借入金利
% - 月々のお支払い金額
円
- 借入ご希望金額
※ 月々のお支払例は目安の試算となりますので、実際の金額とは異なる場合がございます。詳しくは店舗までお問合わせください。
- 足立区千住中居町
-
東京メトロ千代田線『北千住』 徒歩9分 (約660m)
京成本線『千住大橋』 徒歩9分 (約670m)
JR常磐線『北千住』 徒歩9分 (約660m)
足立区千住中居町マンション | 物件情報
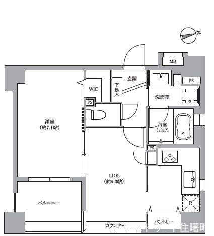
作業動線が短く、効率的なL字キッチン採用!5路線利用可能な【北千住】駅徒歩10分以内で通勤・通学便利
L字型キッチンは、コンロとシンクが90度で向かい合うように配置されるため、ワークトライアングル(コンロ、シンク、冷蔵庫の3点を結んだ三角形)が短くなります。ワークトライアングルが短いほど、調理や片付けなどの作業動線が効率的になります。
また、エントランスは・モニター付きオートロックなので、1Fエントランスで来訪者の顔を確認してから応答できるので、防犯性が高く、安心して暮らすことができます。また、セールスや勧誘などの不要な訪問を断ることもできます。
足立区で約60年ガス・住宅設備関連の企業として活動しております。住宅に関するどんな些細なことでも相談にのってもらえる、 そんなお店です。
◆◇◆どんな方でもお気軽にお問合せください!!◆◇◆
■□ハウスドゥ千住曙町■□
0120-388-208 まで、お気軽にお電話下さい。
物件の設備
- 公営水道
- 下水道
- 公共下水
- 給湯
- 食器洗浄乾燥機
- コンロ三口
- グリル
- ガスコンロ付
- システムキッチン
- バス
- 追焚機能
- 浴室暖房
- 浴室乾燥機
- シャワー
- トイレ
- 温水洗浄便座
- B/T別室
- 室内洗濯機置場
- 洗面所独立
- エアコン
- オートロック
- モニタ付オートロック
- 2面採光
- フローリング
- 全室フローリング
- フローリング張替
- ウォークインクローゼット
- 収納スペース
- シューズボックス
- バルコニー
- エレベーター
物件の特徴
- 管理人巡回
- 内装リフォーム済
- 角部屋
- 3方角住戸
- 3沿線以上利用可
- 駅まで平坦
- 小学校徒歩10分以内
- スーパーが近い
- 通風良好
- 陽当り良好
- 平坦地
- IT重説
物件詳細情報
| 価格 | 4,280万円 | 間取り | 1LDK |
|---|---|---|---|
| 物件種別 | 中古マンション | ||
| 所在地 | 東京都足立区千住中居町 | ||
| アクセス |
|
||
| 専有面積 | 壁芯 48.58㎡ | 所在階 | 12階建/5階部分 |
| 主要採光 | 東向 | バルコニー | 東向5.20㎡ |
| その他 | |||
| 権利 | 所有権 |
||
| 保証・評価 | |||
| リフォーム | 【水回り】2026年01月予定 浴室・トイレ・洗面・給湯器 【内装】2026年01月予定 壁、天井 ・床 ・全室クロス ・建具 |
||
| 総戸数 | 面積 | ||
| 築年月 | 2005年(平成17年)05月築 | 建物構造 | SRC |
| 施工会社 | |||
| 管理会社 | 株式会社レーベンコミュニティ | 管理方式 | 全部委託 巡回管理 |
| 駐車場 | 【駐車場】なし |
||
| 都市計画 | 用途地域 | 商業 | |
| 建ぺい/容積率 | 土地国土法 | ||
| 法令制限 | |||
| 小学区 | 千寿桜小学校 徒歩9分 (約670m) | 中学区 | 千寿青葉中学校 徒歩5分 (約340m) |
| 現況 | 空 | 引渡 | 相談 |
| 管理費 | 15,910円/月 | 修繕積立金 | 10,150円/月 |
| その他費用 | 町会費:200円/月 |
||
| 周辺環境 | 千寿桜小学校 徒歩9分 (約670m) 千寿青葉中学校 徒歩5分 (約340m) 北千住駅 出入口1 徒歩9分 (約660m) 京成電鉄 千住大橋駅北口 徒歩9分 (約670m) 牛田駅 徒歩18分 (約1430m) 千住消防署 徒歩2分 (約160m) セブンイレブン足立中居郵便局前店 徒歩3分 (約180m) 足立中居郵便局 徒歩3分 (約170m) おっ母さん食品館 北千住店 徒歩3分 (約200m) みみずくの薬局 徒歩6分 (約440m) |
||
| 備考 | ・千寿桜小学校まで徒歩9分(約670m) ・千寿青葉中学校まで徒歩5分(約340m) ・北千住駅 出入口1まで徒歩9分(約660m) ・京成電鉄 千住大橋駅北口まで徒歩9分(約670m) ・牛田駅まで徒歩18分(約1430m) ・千住消防署まで徒歩2分(約160m) ・セブンイレブン足立中居郵便局前店まで徒歩3分(約180m) ・足立中居郵便局まで徒歩3分(約170m) ・おっ母さん食品館 北千住店まで徒歩3分(約200m) ・みみずくの薬局まで徒歩6分(約440m) |
||
| 物件番号 | 4521332 | 取引態様 | 媒介 |
取扱店舗情報
ハウスドゥ 千住曙町 株式会社カクシンライフ 店舗詳細ページへ
| 電話番号 | 03-6806-2375 |
|---|---|
| 所在地 | 〒120-0023 東京都足立区千住曙町37-33 |
| 営業時間 | 9:30~18:30 |
| 定休日 | 火曜日・水曜日・年末年始 |
| 宅建免許番号 | 東京都知事(1)第109143号 |
| アクセス | 店舗への地図はこちら |

来店ご予約
東京都足立区で価格が似ている物件はこちら
- 東京都
マイページ物件数 - 5,215件
最近見た物件
-
-

-
- 中古マンション
- 2,090万円
-
北九州市小倉北区熊本3丁目
-
JR日豊本線城野
-
-
-

-
- 中古マンション
- 1,698万円
-
名古屋市瑞穂区大喜町1丁目
-
名鉄名古屋本線堀田
-
-
-

-
- 中古マンション
- 1,980万円
-
愛知郡東郷町大字春木字白土
-
名古屋市鶴舞線赤池
-
東京都中古マンション新着物件
- お近くの店舗を探す
-
おすすめ物件
-
-

-
- 中古マンション
- 3,500万円
-
板橋区常盤台3丁目
-
東武東上線ときわ台
-
-
-

-
- 中古マンション
- 4,790万円
-
大田区北糀谷1丁目
-
京急本線梅屋敷
-
-
-

-
- 中古マンション
- 5,480万円
-
調布市上石原3丁目
-
京王線西調布
-
-
-

-
- 中古マンション
- 4,480万円
-
練馬区関町北4丁目
-
西武新宿線武蔵関
-
-
-

-
- 中古マンション
- 2,690万円
-
足立区保木間1丁目
-
東武伊勢崎・大師線竹ノ塚
-
-
-

-
- 中古マンション
- 1億990万円
-
台東区東上野5丁目
-
東京メトロ銀座線稲荷町
-
-
-

-
- 中古マンション
- 1,900万円
-
市原市ちはら台西4丁目
-
京成千原線ちはら台
-
-
-

-
- 中古マンション
- 3,398万円
-
墨田区緑1丁目
-
JR総武・中央緩行線両国
-
-
-

-
- 中古マンション
- 6,490万円
-
台東区蔵前4丁目
-
都営浅草線蔵前
-
-
-

-
- 中古マンション
- 2,780万円
-
松戸市松戸
-
JR常磐線松戸
-


















担当エージェント:伊藤 丈博
お家の事、街の事、お金の事、\【足立区専門!】ハウスドゥ千住曙町/ 何でも相談下さい♪