ヴェーゼント芦花公園
NEW 12.18掲載情報更新日:2025年12月18日 次回更新予定日:2026年01月01日
- 1億2,900万円
-
- 借入ご希望金額
万円 - 借入期間
年 - 借入金利
% - 月々のお支払い金額
円
- 借入ご希望金額
※ 月々のお支払例は目安の試算となりますので、実際の金額とは異なる場合がございます。詳しくは店舗までお問合わせください。
- 世田谷区南烏山1丁目
-
京王線『芦花公園』 徒歩6分 (約480m)
京王線『千歳烏山』 徒歩11分 (約880m)
ヴェーゼント芦花公園マンション | 物件情報
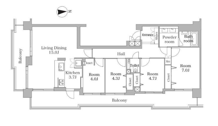
■33.47㎡の2面バルコニー付4LDK♪ ■ペット飼育可 ■内装リノベーション済み
《Access》
・京王線「芦花公園駅」歩6分
・同線「千歳烏山駅」歩11分
《Point》
・閑静な住宅街の緑豊かな住環境
・新耐震基準適合マンション
・オートロック・宅配ボックス
・日勤管理 管理体制良好
・ペット飼育可(細則あり)
・LDK18帖超えのゆとりある4LDK
・南東向き角住戸 日当たり・通風良好
・全部屋がバルコニーに面しているため、明るい光を取り込めます◎
・各所収納豊富
・2面バルコニーあり♪
・TVモニターフォン、浴室乾燥、温水洗浄便座・・・設備充実
《Remodeling》
・キッチン、バス、トイレ、洗面化粧台新規交換
・照明器具交換
・給湯器交換
・天井埋込式カセットエアコン新規設置
・全壁・天井クロス、フローリング張替え・・・など
■内見調整いたします!お気軽にお問合せください♪
物件の設備
- 公営水道
- 公共下水
- 都市ガス
- 給湯
- 浄水器
- 食器洗浄乾燥機
- コンロ三口
- グリル
- ガスコンロ付
- カウンターキッチン
- システムキッチン
- オープンキッチン
- バス
- ユニットバス
- オートバス
- 追焚機能
- 浴室暖房
- 浴室乾燥機
- トイレ
- 温水洗浄便座
- タンクレストイレ
- B/T別室
- 室内洗濯機置場
- 洗面所独立
- ビルトインエアコン
- 照明器具
- BS
- CS
- ネット専用回線
- 光インターネット
- ダウンライト
- 省エネ給湯器
- オートロック
- モニタ付インターホン
- モニタ付オートロック
- 防犯カメラ
- 火災警報器/報知機
- LDK18畳以上
- 2面採光
- フローリング
- 全室フローリング
- フローリング張替
- 24時間換気システム
- クローゼット
- クローゼット3箇所
- トランクルーム
- 全居室収納
- シューズボックス
- バルコニー
- 2面バルコニー
- ワイドバルコニー
- 平面駐車場
- 宅配BOX
- エレベーター
- エレベーター2基
- 駐輪場
- バイク置場
物件の特徴
- 管理人日勤
- 内装リフォーム済
- 内装リフォーム後渡
- 角部屋
- 南東角部屋
- 耐震構造
- 駅まで平坦
- 小学校徒歩10分以内
- 緑豊かな住宅地
- 閑静な住宅街
- 周辺交通量少なめ
- 市街地が近い
- 都市近郊
- 眺望良好
- 通風良好
- 陽当り良好
- 前面棟無
- 外観タイル張
- 修繕
- 点検記録
- ペット相談
- ペット対応
物件詳細情報
| 価格 | 1億2,900万円 | 間取り | 4LDK |
|---|---|---|---|
| 物件種別 | 中古マンション | ||
| 所在地 | 東京都世田谷区南烏山1丁目 | ||
| アクセス |
|
||
| 専有面積 | 壁芯 92.24㎡ | 所在階 | 9階建/2階部分 |
| 主要採光 | 南東向 | バルコニー | 南東向33.47㎡ |
| その他 | |||
| 権利 | 所有権 |
||
| 保証・評価 | |||
| リフォーム | 【水回り】2025年08月 キッチン・浴室・トイレ・洗面・給湯器 【内装】2025年08月 壁、天井 ・床 ・全室クロス |
||
| 総戸数 | 96戸 | 面積 | |
| 築年月 | 1998年(平成10年)03月築 | 建物構造 | SRC (一部 RC ) |
| 施工会社 | 三井建設㈱ | ||
| 管理会社 | ㈱東急コミュニティー | 管理方式 | 全部委託 日勤管理 管理組合あり |
| 駐車場 | 【バイク置き場】あり 【駐輪場】あり |
||
| 都市計画 | 用途地域 | ||
| 建ぺい/容積率 | 土地国土法 | ||
| 法令制限 | |||
| 小学区 | 芦花小学校 徒歩8分 (約580m) | 中学区 | 芦花中学校 徒歩8分 (約570m) |
| 現況 | 空 | 引渡 | 相談 |
| 管理費 | 21,620円/月 | 修繕積立金 | 9,820円/月 |
| その他費用 | |||
| 周辺環境 | サミット_芦花公園 徒歩7分 (約500m) 世田谷区立芦花中学校 徒歩8分 (約570m) 世田谷区立芦花小学校 徒歩8分 (約580m) 世田谷区立八幡山保育園 徒歩8分 (約580m) ドン・キホーテ環八世田谷店 徒歩8分 (約580m) くすりセイジョー芦花公園店 徒歩8分 (約600m) ファミリーマート世田谷粕谷一丁目店 徒歩10分 (約740m) 世田谷区立粕谷図書館 徒歩11分 (約810m) 蘆花恒春園 徒歩11分 (約840m) クレアビル 徒歩12分 (約950m) |
||
| 備考 | |||
| 物件番号 | 4529552 | 取引態様 | 媒介 |
取扱店舗情報
ハウスドゥ 千歳船橋 R2-CONNECT株式会社 店舗詳細ページへ
| 電話番号 | 03-5799-7621 |
|---|---|
| 所在地 | 〒156-0054 東京都世田谷区桜丘5丁目47-19 |
| 営業時間 | 9:00~19:00 |
| 定休日 | 火曜日、水曜日 |
| 宅建免許番号 | 東京都知事(1)第107079号 |
| アクセス | 店舗への地図はこちら |

来店ご予約
東京都世田谷区で価格が似ている物件はこちら
- 東京都
マイページ物件数 - 4,849件
東京都中古マンション新着物件
-
-

-
- 中古マンション
- 7,998万円
-
八王子市子安町4丁目
-
JR中央本線八王子駅
-
-
-

-
- 中古マンション
- 2,990万円
-
府中市押立町4丁目
-
京王線武蔵野台駅
-
-
-

-
- 中古マンション
- 1,350万円
-
青梅市河辺町6丁目
-
JR青梅線河辺駅
-
-
-

-
- 中古マンション
- 3,190万円
-
日野市旭が丘3丁目
-
JR中央本線豊田駅
-
-
-

-
- 中古マンション
- 1,580万円
-
羽村市川崎1丁目
-
JR青梅線羽村駅
-
-
-

-
- 中古マンション
- 5,480万円
-
昭島市昭和町5丁目
-
JR青梅線昭島駅
-
-
-

-
- 中古マンション
- 5,380万円
-
江戸川区北葛西4丁目
-
東京メトロ東西線西葛西駅
-
- お近くの店舗を探す
-
おすすめ物件
-
-

-
- 中古マンション
- 4,290万円
-
葛飾区青戸7丁目
-
京成押上線青砥
-
-
-

-
- 中古マンション
- 4,298万円
-
調布市調布ケ丘1丁目
-
京王線調布
-
-
-

-
- 中古マンション
- 6,290万円
-
台東区蔵前4丁目
-
都営浅草線蔵前
-
-
-

-
- 中古マンション
- 5,480万円
-
調布市上石原3丁目
-
京王線西調布
-
-
-

-
- 中古マンション
- 3,780万円
-
葛飾区亀有2丁目
-
JR千代田・常磐緩行線亀有
-
-
-

-
- 中古マンション
- 4,998万円
-
葛飾区金町1丁目
-
JR千代田・常磐緩行線金町
-
-
-

-
- 中古マンション
- 2,990万円
-
千葉市中央区問屋町
-
JR京葉線千葉みなと
-
-
-

-
- 中古マンション
- 8,480万円
-
台東区下谷3丁目
-
東京メトロ日比谷線入谷
-
-
-

-
- 中古マンション
- 4,190万円
-
世田谷区成城3丁目
-
小田急小田原線成城学園前
-
-
-

-
- 中古マンション
- 3,180万円
-
葛飾区水元3丁目
-
JR千代田・常磐緩行線金町
-











世田谷区物件はハウスドゥ千歳船橋へお任せください。
物件、資金計画、周辺環境もご案内させて頂きます♪
資料請求、ご見学お気軽にお問合せください。