セザール苗穂
掲載情報更新日:2026年04月25日 次回更新予定日:2026年05月09日
- 3,299万円
-
- 借入ご希望金額
万円 - 借入期間
年 - 借入金利
% - 月々のお支払い金額
円
- 借入ご希望金額
※ 月々のお支払例は目安の試算となりますので、実際の金額とは異なる場合がございます。詳しくは店舗までお問合わせください。
- 札幌市中央区北二条東10丁目
-
JR函館本線『苗穂』 徒歩3分 (約240m)
JR千歳線『苗穂』 徒歩3分 (約240m)
札幌市東西線『バスセンター前』 徒歩13分 (約1000m)
JR北海道バス『苗穂駅』 徒歩2分 (約160m)
セザール苗穂マンション | 物件情報
■2025年10月リフォーム■JR「苗穂」駅徒歩3分!周辺環境・子育て環境充実の立地■ペット飼育可能
■アクセス良好
JR「苗穂」駅徒歩3分!「札幌」駅まで1駅と中心部へのアクセス良好。
地下鉄東西線「バスセンター前」駅 徒歩13分と2沿線利用可能です。
■周辺環境充実
コンビニ、スーパー、病院等が徒歩圏内に揃っており、暮らしに便利な環境です。
■子育て環境充実
小学校まで徒歩10分とお子様も無理なく安心して通うことができます。
公園が近くお子様ものびのびと遊ぶことができます。
■2025年10月リフォーム
・クロス貼替・CF貼替・ボイラー、ファンコン交換・スイッチ、コンセント交換
・キッチン、ユニットバス、トイレ交換・シリンダー交換(玄関・トランクルーム)
◇ペット飼育可能※細則あり
◇都市ガス、灯油給湯を利用の物件です。
◇トランクルームあり
物件の設備
- 公営水道
- 下水道
- 公共下水
- 都市ガス
- 給湯
- コンロ三口
- グリル
- システムキッチン
- バス
- ユニットバス
- トイレ
- 温水洗浄便座
- B/T別室
- 室内洗濯機置場
- 洗面所独立
- 暖房
- 灯油
- 照明器具
- ダウンライト
- オートロック
- フローリング張替
- クローゼット
- クローゼット2箇所
- クローゼット3箇所
- 玄関収納
- 収納スペース
- トランクルーム
- 全居室収納
- シューズボックス
- バルコニー
- 2面バルコニー
- 両面バルコニー
- 宅配BOX
- エレベーター
物件の特徴
- 管理人日勤
- 内装リフォーム済
- 内装リフォーム後渡
- 角部屋
- 2沿線利用可
- 駅まで平坦
- 総合病院徒歩10分以内
- 小学校徒歩10分以内
- 整備された歩道
- スーパーが近い
- 都市近郊
- 通風良好
- ペット相談
- ペット対応
- 小型犬可
- 猫可
物件詳細情報
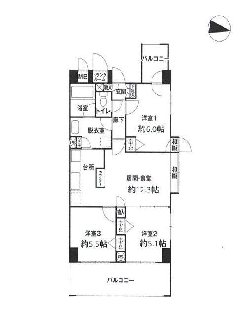
| 価格 | 3,299万円 | 間取り | 3LDK |
|---|---|---|---|
| 物件種別 | 中古マンション | ||
| 所在地 | 北海道札幌市中央区北二条東10丁目15-12 | ||
| アクセス |
|
||
| 専有面積 | 壁芯 62.80㎡ | 所在階 | 9階建/3階部分 |
| 主要採光 | 東向 | バルコニー | 東向15.13㎡ |
| その他 | |||
| 権利 | 所有権 |
||
| 保証・評価 | |||
| リフォーム | 【水回り】2025年10月 キッチン・浴室・トイレ 【内装】2025年10月 壁、天井 ・床 ボイラー交換、ダウンライト交換、スイッチ・コンセント交換、シリンダー交換(玄関・トランクルーム) |
||
| 総戸数 | 45戸 | 面積 | |
| 築年月 | 2007年(平成19年)08月築 | 建物構造 | RC |
| 施工会社 | 青木あすなろ建設株式会社 | ||
| 管理会社 | 穴吹ハウジングサービス 札幌支店 | 管理方式 | 全部委託 日勤管理 |
| 駐車場 | 【駐車場】空無 |
||
| 都市計画 | 用途地域 | 近隣商業 | |
| 建ぺい/容積率 | 土地国土法 | ||
| 法令制限 | |||
| 小学区 | 中央小学校 徒歩11分 (約820m) | 中学区 | 中央中学校 徒歩16分 (約1220m) |
| 現況 | 空 | 引渡 | 相談 |
| 管理費 | 10,360円/月 | 修繕積立金 | 15,700円/月 |
| その他費用 | 分譲駐車場管理費:1200円/月・分譲駐車場積立金:800円/月 |
||
| 備考 | |||
| 物件番号 | 4530232 | 取引態様 | 媒介 |
取扱店舗情報
ハウスドゥ 電車通り 北王ホールディングス株式会社 店舗詳細ページへ
| 電話番号 | 011-215-0790 |
|---|---|
| 所在地 | 〒064-0809 北海道札幌市中央区南九条西15丁目2-2 F・HOUSE 1F |
| 営業時間 | 9:00~18:00 |
| 定休日 | 火曜日・水曜日・祝日 |
| 宅建免許番号 | 北海道知事 十勝(3)第721号 |
| アクセス | 店舗への地図はこちら |

来店ご予約
北海道札幌市中央区で価格が似ている物件はこちら
- 北海道
マイページ物件数 - 6,339件
最近見た物件
北海道中古マンション新着物件
-
-

-
- 中古マンション
- 3,490万円
-
札幌市西区八軒一条東1丁目
-
JR函館本線琴似駅
-
-
-

-
- 中古マンション
- 2,490万円
-
札幌市手稲区富丘三条4丁目
-
JR函館本線稲積公園駅
-
-
-

-
- 中古マンション
- 3,490万円
-
札幌市西区八軒一条東1丁目
-
JR函館本線琴似駅
-
-
-

-
- 中古マンション
- 360万円
-
苫小牧市日新町4丁目
-
JR室蘭本線糸井駅
-
-
-

-
- 中古マンション
- 3,980万円
-
札幌市西区発寒八条11丁目
-
JR函館本線発寒駅
-
-
-

-
- 中古マンション
- 2,300万円
-
札幌市東区北三十五条東3丁目
-
札幌市南北線北34条駅
-
-
-

-
- 中古マンション
- 3,180万円
-
札幌市北区北四十条西5丁目
-
札幌市南北線麻生駅
-
- お近くの店舗を探す
-
おすすめ物件
-
-

-
- 中古マンション
- 1,700万円
-
札幌市中央区宮の森二条16丁目
-
札幌市東西線円山公園
-
-
-

-
- 中古マンション
- 1,880万円
-
札幌市手稲区稲穂一条7丁目
-
JR函館本線星置
-
-
-

-
- 中古マンション
- 5,099万円
-
札幌市中央区南三条西9丁目
-
札幌市東西線西11丁目
-
-
-

-
- 中古マンション
- 1,449万円
-
小樽市富岡1丁目
-
JR函館本線小樽
-
-
-

-
- 中古マンション
- 3,490万円
-
札幌市南区真駒内緑町2丁目
-
札幌市南北線真駒内
-
-
-

-
- 中古マンション
- 550万円
-
札幌市南区真駒内南町4丁目
-
札幌市南北線真駒内
-
-
-

-
- 中古マンション
- 1,949万円
-
札幌市手稲区曙二条2丁目
-
JR函館本線手稲
-
-
-

-
- 中古マンション
- 3,490万円
-
札幌市西区八軒一条東1丁目
-
JR函館本線琴似
-
-
-

-
- 中古マンション
- 3,500万円
-
札幌市西区八軒四条西4丁目
-
JR函館本線琴似
-
-
-

-
- 中古マンション
- 2,080万円
-
札幌市西区発寒十一条11丁目
-
JR函館本線発寒
-




























担当エージェント:佐々木 洋
■2025年10月リフォーム
■JR「苗穂」駅徒歩3分!周辺環境・子育て環境充実の立地■ペット飼育可能
ご質問、ご要望がございましたらお気軽にご連絡下さい!
■TEL:011-215-0790■