ブリリア四谷三丁目 新宿区舟町の中古マンション
NEW 12.22掲載情報更新日:2025年12月22日 次回更新予定日:2026年01月05日
- 1億2,800万円
-
- 借入ご希望金額
万円 - 借入期間
年 - 借入金利
% - 月々のお支払い金額
円
- 借入ご希望金額
※ 月々のお支払例は目安の試算となりますので、実際の金額とは異なる場合がございます。詳しくは店舗までお問合わせください。
- 新宿区舟町
-
東京メトロ丸ノ内線『四谷三丁目』 徒歩2分 (約160m)
都営新宿線『曙橋』 徒歩6分 (約480m)
東京メトロ南北線『四ツ谷』 徒歩11分 (約880m)
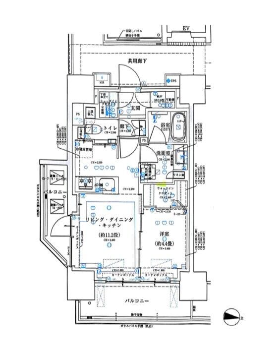
新宿区舟町マンション | 物件情報
●丸ノ内線「四谷三丁目」駅徒歩2分●2面バルコニー付きの東南角住戸
~~~POINT~~~
*2023年築の築浅マンション
*角住戸につき陽当たり・通風良好
*WICやSICなど収納豊富な間取り
*リビングダイニングにお床暖房完備
*大切なペットと暮らせます(細則あり)
■その他仕様・設備
ガスキッチン/浴室換気乾燥機/追い焚き機能/
温水洗浄便座/TVモニター付きインターホン/
オートロック/宅配BOX/24時間ゴミ出し可 等
物件の設備
- 公営水道
- 下水道
- 公共下水
- 都市ガス
- システムキッチン
- 浴室乾燥機
- 温水洗浄便座
- 床暖房
- インターネット接続可
- オートロック
- モニタ付インターホン
- モニタ付オートロック
- ウォークインクローゼット
- 全居室収納
- シューズインクローク
- バルコニー
- 2面バルコニー
- 宅配BOX
- エレベーター
物件の特徴
- 管理人日勤
- 角部屋
- 南東角部屋
- 24時間ゴミ出可
- ペット相談
物件詳細情報
| 価格 | 1億2,800万円 | 間取り | 1LDK |
|---|---|---|---|
| 物件種別 | 中古マンション | ||
| 所在地 | 東京都新宿区舟町 | ||
| アクセス |
|
||
| 専有面積 | 壁芯 43.89㎡ | 所在階 | 13階建/5階部分 |
| 主要採光 | 東向 | バルコニー | 東向13.00㎡ |
| その他 | |||
| 権利 | 所有権 |
||
| 保証・評価 | |||
| リフォーム | |||
| 総戸数 | 57戸 | 面積 | |
| 築年月 | 2023年(令和5年)04月築 | 建物構造 | RC |
| 施工会社 | 不二建設(株) | ||
| 管理会社 | (株)東京建物アメニティサポート | 管理方式 | 全部委託 日勤管理 |
| 駐車場 | |||
| 都市計画 | 用途地域 | ||
| 建ぺい/容積率 | 土地国土法 | ||
| 法令制限 | |||
| 小学区 | 中学区 | ||
| 現況 | 空 | 引渡 | 相談 |
| 管理費 | 15,190円/月 | 修繕積立金 | 5,670円/月 |
| その他費用 | 町会費:200円/月 インターネット:1540円/月 |
||
| 備考 | |||
| 物件番号 | 4536889 | 取引態様 | 媒介 |
取扱店舗情報
ハウスドゥ 新宿三丁目 株式会社レーヴホライズン 店舗詳細ページへ
| 電話番号 | 03-6384-2356 |
|---|---|
| 所在地 | 〒160-0022 東京都新宿区新宿2-15-22 Landwork新宿ビル5階 |
| 営業時間 | 9:00~18:00 |
| 定休日 | 火曜日、水曜日、GW、夏期、年末年始 |
| 宅建免許番号 | 東京都知事(2)第100808号 |
| アクセス | 店舗への地図はこちら |

来店ご予約
- 東京都
マイページ物件数 - 4,849件
最近見た物件
-
-

-
- 新築一戸建て
- 3,090万円
-
多治見市滝呂町10丁目
-
JR中央本線多治見
-
-
-

-
- 中古一戸建て
- 2,146万円
-
総社市井手
-
JR吉備線東総社
-
-
-

-
- 中古マンション
- 1,999万円
-
一宮市泉2丁目
-
JR東海道本線尾張一宮
-
東京都中古マンション新着物件
-
-

-
- 中古マンション
- 7,998万円
-
八王子市子安町4丁目
-
JR中央本線八王子駅
-
-
-

-
- 中古マンション
- 2,990万円
-
府中市押立町4丁目
-
京王線武蔵野台駅
-
-
-

-
- 中古マンション
- 1,350万円
-
青梅市河辺町6丁目
-
JR青梅線河辺駅
-
-
-

-
- 中古マンション
- 3,190万円
-
日野市旭が丘3丁目
-
JR中央本線豊田駅
-
-
-

-
- 中古マンション
- 1,580万円
-
羽村市川崎1丁目
-
JR青梅線羽村駅
-
-
-

-
- 中古マンション
- 5,480万円
-
昭島市昭和町5丁目
-
JR青梅線昭島駅
-
-
-

-
- 中古マンション
- 5,380万円
-
江戸川区北葛西4丁目
-
東京メトロ東西線西葛西駅
-
- お近くの店舗を探す
-
おすすめ物件
-
-

-
- 中古マンション
- 1億1,800万円
-
大田区下丸子2丁目
-
東急多摩川線下丸子
-
-
-

-
- 中古マンション
- 7,180万円
-
世田谷区南烏山6丁目
-
京王線千歳烏山
-
-
-

-
- 中古マンション
- 5,480万円
-
調布市上石原3丁目
-
京王線西調布
-
-
-

-
- 中古マンション
- 5,280万円
-
調布市染地2丁目
-
京王線布田
-
-
-

-
- 中古マンション
- 2,780万円
-
松戸市松戸
-
JR常磐線松戸
-
-
-

-
- 中古マンション
- 8,480万円
-
台東区下谷3丁目
-
東京メトロ日比谷線入谷
-
-
-

-
- 中古マンション
- 2,780万円
-
青梅市新町3丁目
-
JR青梅線小作
-
-
-

-
- 中古マンション
- 1,790万円
-
足立区東和5丁目
-
東京メトロ千代田線北綾瀬
-
-
-

-
- 中古マンション
- 3,780万円
-
葛飾区亀有2丁目
-
JR千代田・常磐緩行線亀有
-
-
-

-
- 中古マンション
- 4,998万円
-
葛飾区金町1丁目
-
JR千代田・常磐緩行線金町
-



