新松戸ハイツ 松戸市新松戸北1丁目の中古マンション
掲載情報更新日:2026年04月07日 次回更新予定日:2026年04月21日
- 2,290万円
-
- 借入ご希望金額
万円 - 借入期間
年 - 借入金利
% - 月々のお支払い金額
円
- 借入ご希望金額
※ 月々のお支払例は目安の試算となりますので、実際の金額とは異なる場合がございます。詳しくは店舗までお問合わせください。
- 松戸市新松戸北1丁目
-
流鉄流山線『幸谷』 徒歩6分 (約480m)
JR武蔵野線『新松戸』 徒歩9分 (約720m)
松戸市新松戸北1丁目マンション | 物件情報
物件の設備
- バルコニー
- エレベーター
物件の特徴
- 即入居可
- ペット不可
物件詳細情報
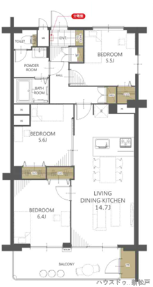
| 価格 | 2,290万円 | 間取り | 3LDK |
|---|---|---|---|
| 物件種別 | 中古マンション | ||
| 所在地 | 千葉県松戸市新松戸北1丁目 | ||
| アクセス |
|
||
| 専有面積 | 壁芯 72.71㎡ | 所在階 | 10階建/6階部分 |
| 主要採光 | 南西向 | バルコニー | 南西向9.35㎡ |
| その他 | |||
| 権利 | 所有権 |
||
| 保証・評価 | |||
| リフォーム | |||
| 総戸数 | 205戸 | 面積 | |
| 築年月 | 1979年(昭和54年)02月築 | 建物構造 | SRC |
| 施工会社 | |||
| 管理会社 | 日本ハウスイング(株) | 管理方式 | 全部委託 日勤管理 |
| 駐車場 | |||
| 都市計画 | 用途地域 | ||
| 建ぺい/容積率 | 土地国土法 | ||
| 法令制限 | |||
| 小学区 | 中学区 | ||
| 現況 | 空 | 引渡 | 即 |
| 管理費 | 8,700円/月 | 修繕積立金 | 15,000円/月 |
| その他費用 | |||
| 周辺環境 | ローソン 新松戸北一丁目店 徒歩1分 (約60m) こすもすベビールーム新松戸第2ルーム 徒歩3分 (約170m) ナーサリースクールいずみ新松戸 徒歩5分 (約330m) 鐘の下公園 徒歩5分 (約350m) セブン-イレブン 新松戸ゆりのき通り店 徒歩4分 (約300m) 東歯科クリニック 徒歩4分 (約320m) こすもすベビールーム新松戸第3ルーム 徒歩4分 (約310m) 新松戸ゆいのひ保育園 徒歩6分 (約440m) 大谷口医院 徒歩5分 (約350m) 新松戸中央総合病院 徒歩5分 (約350m) |
||
| 備考 | ◇三戦三駅利用可能 ◇オートロック付きで安心 ◇ゴミ出し24時間OK ◇エレベーター有 ◇駐車スペース、駐輪場、バイク置場有 ◇自治会費:4,800円(年2回徴収) |
||
| 物件番号 | 4538045 | 取引態様 | 媒介 |
取扱店舗情報
ハウスドゥ 新松戸 株式会社NEW FIRST 店舗詳細ページへ
| 電話番号 | 047-375-8102 |
|---|---|
| 所在地 | 〒271-0068 千葉県松戸市古ケ崎2丁目3207-2 |
| 営業時間 | 09:00~17:00 |
| 定休日 | 毎週水曜日・日曜日 |
| 宅建免許番号 | 千葉県知事(1)第18748号 |
| アクセス | 店舗への地図はこちら |

来店ご予約
千葉県松戸市で価格が似ている物件はこちら
- 千葉県
マイページ物件数 - 2,058件
最近見た物件
千葉県中古マンション新着物件
- お近くの店舗を探す
-
おすすめ物件
-
-

-
- 中古マンション
- 280万円
-
流山市駒木
-
つくばエクスプレス流山おおたかの森
-
-
-

-
- 中古マンション
- 4,590万円
-
習志野市秋津3丁目
-
JR京葉線新習志野
-
-
-

-
- 中古マンション
- 6,280万円
-
流山市おおたかの森北3丁目
-
つくばエクスプレス流山おおたかの森
-
-
-

-
- 中古マンション
- 1,380万円
-
松戸市小金きよしケ丘3丁目
-
JR千代田・常磐緩行線北小金
-
-
-

-
- 中古マンション
- 3,790万円
-
習志野市鷺沼台1丁目
-
京成本線京成津田沼
-
-
-

-
- 中古マンション
- 2,480万円
-
流山市向小金1丁目
-
JR千代田・常磐緩行線南柏
-
-
-

-
- 中古マンション
- 2,490万円
-
習志野市東習志野1丁目
-
京成本線実籾
-
-
-

-
- 中古マンション
- 3,280万円
-
船橋市薬円台3丁目
-
京成電鉄松戸線習志野
-
-
-

-
- 中古マンション
- 1,100万円
-
松戸市松戸新田
-
JR常磐線松戸
-
-
-

-
- 中古マンション
- 2,398万円
-
松戸市新松戸北2丁目
-
JR千代田・常磐緩行線新松戸
-













