両国緑スカイハイツ 墨田区緑3丁目の中古マンション
NEW 12.25掲載情報更新日:2025年12月25日 次回更新予定日:2026年01月08日
- 4,590万円
-
- 借入ご希望金額
万円 - 借入期間
年 - 借入金利
% - 月々のお支払い金額
円
- 借入ご希望金額
※ 月々のお支払例は目安の試算となりますので、実際の金額とは異なる場合がございます。詳しくは店舗までお問合わせください。
- 墨田区緑3丁目
-
都営大江戸線『両国』 徒歩7分 (約560m)
JR総武・中央緩行線『両国』 徒歩11分 (約880m)
JR総武・中央緩行線『錦糸町』 徒歩13分 (約1040m)
墨田区緑3丁目マンション | 物件情報
物件の設備
- 都市ガス
- 浄水器
- システムキッチン
- ユニットバス
- 追焚機能
- 浴室乾燥機
- 室内洗濯機置場
- 洗面所独立
- CATVインターネット
- モニタ付インターホン
- 防犯カメラ
- フローリング張替
- ウォークインクローゼット
- 玄関収納
- 収納スペース
- シューズボックス
- バルコニー
- 南面バルコニー
- エレベーター
- 駐輪場
- バイク置場
物件の特徴
- 管理人日勤
- 内装リフォーム済
- 2沿線利用可
- 3沿線以上利用可
- ペット相談
物件詳細情報
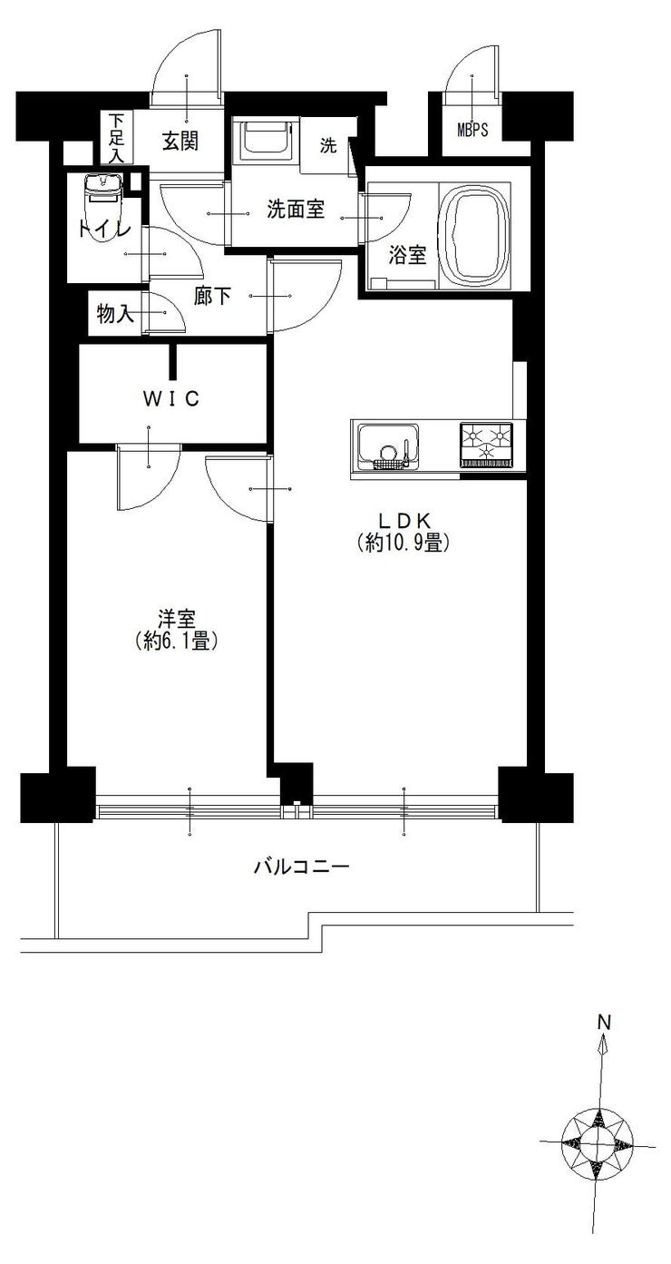
| 価格 | 4,590万円 | 間取り | 1LDK |
|---|---|---|---|
| 物件種別 | 中古マンション | ||
| 所在地 | 東京都墨田区緑3丁目 | ||
| アクセス |
|
||
| 専有面積 | 壁芯 43.20㎡ | 所在階 | 8階建/6階部分 |
| 主要採光 | 南向 | バルコニー | 南向7.35㎡ |
| その他 | |||
| 権利 | 所有権 |
||
| 保証・評価 | |||
| リフォーム | 【水回り】2025年10月 キッチン・浴室・トイレ・洗面・給湯器 洗濯水栓器具、防水パン交換 【内装】2025年10月 壁、天井 ・床 ・全室クロス ・建具 下足入れ交換、スイッチパネル設置、ダウンライト設置、照明器具設置、玄関人感センサー設置、インナーサッシ設置(全室) |
||
| 総戸数 | 86戸 | 面積 | |
| 築年月 | 1984年(昭和59年)01月築 | 建物構造 | SRC |
| 施工会社 | (株)長谷川工務店 | ||
| 管理会社 | (株)長谷工コミュニティ | 管理方式 | 全部委託 日勤管理 |
| 駐車場 | 【駐車場】空無 【バイク置き場】あり 料金: 1000円/月 |
||
| 都市計画 | 用途地域 | ||
| 建ぺい/容積率 | 土地国土法 | ||
| 法令制限 | |||
| 小学区 | 緑小学校 徒歩4分 (約285m) | 中学区 | 両国中学校 徒歩9分 (約674m) |
| 現況 | 空 | 引渡 | 相談 |
| 管理費 | 9,890円/月 | 修繕積立金 | 14,480円/月 |
| その他費用 | |||
| 備考 | |||
| 物件番号 | 4539929 | 取引態様 | 媒介 |
取扱店舗情報
| 電話番号 | 03-3699-6100 |
|---|---|
| 所在地 | 〒135-0013 東京都江東区千田15-7 |
| 営業時間 | 10:00~18:00 |
| 定休日 | 水曜日 |
| 宅建免許番号 | 東京都知事(6)第74879号 |
| アクセス | 店舗への地図はこちら |

来店ご予約
東京都墨田区で価格が似ている物件はこちら
- 東京都
マイページ物件数 - 4,853件
最近見た物件
-
-

-
- 新築一戸建て
- 2,880万円
-
一宮市千秋町佐野字農中
-
名鉄犬山線石仏
-
東京都中古マンション新着物件
-
-

-
- 中古マンション
- 7,998万円
-
八王子市子安町4丁目
-
JR中央本線八王子駅
-
-
-

-
- 中古マンション
- 2,990万円
-
府中市押立町4丁目
-
京王線武蔵野台駅
-
-
-

-
- 中古マンション
- 1,350万円
-
青梅市河辺町6丁目
-
JR青梅線河辺駅
-
-
-

-
- 中古マンション
- 3,190万円
-
日野市旭が丘3丁目
-
JR中央本線豊田駅
-
-
-

-
- 中古マンション
- 1,580万円
-
羽村市川崎1丁目
-
JR青梅線羽村駅
-
-
-

-
- 中古マンション
- 5,480万円
-
昭島市昭和町5丁目
-
JR青梅線昭島駅
-
-
-

-
- 中古マンション
- 5,380万円
-
江戸川区北葛西4丁目
-
東京メトロ東西線西葛西駅
-
- お近くの店舗を探す
-
おすすめ物件
-
-

-
- 中古マンション
- 1,390万円
-
青梅市千ヶ瀬町1丁目
-
JR青梅線河辺
-
-
-

-
- 中古マンション
- 4,290万円
-
葛飾区青戸7丁目
-
京成押上線青砥
-
-
-

-
- 中古マンション
- 2,200万円
-
青梅市河辺町5丁目
-
JR青梅線河辺
-
-
-

-
- 中古マンション
- 3,199万円
-
荒川区東尾久5丁目
-
都電荒川線熊野前
-
-
-

-
- 中古マンション
- 3,998万円
-
調布市国領町4丁目
-
京王線国領
-
-
-

-
- 中古マンション
- 1億4,980万円
-
世田谷区玉川台2丁目
-
東急田園都市線用賀
-
-
-

-
- 中古マンション
- 6,698万円
-
江戸川区中葛西2丁目
-
東京メトロ東西線葛西
-
-
-

-
- 中古マンション
- 5,180万円
-
大田区大森西4丁目
-
京急本線大森町
-
-
-

-
- 中古マンション
- 3,180万円
-
葛飾区水元3丁目
-
JR千代田・常磐緩行線金町
-
-
-

-
- 中古マンション
- 4,298万円
-
調布市調布ケ丘1丁目
-
京王線調布
-








