デュオヒルズ木更津 中古マンション
NEW 12.26掲載情報更新日:2025年12月27日 次回更新予定日:2026年01月10日
- 4,370万円
-
- 借入ご希望金額
万円 - 借入期間
年 - 借入金利
% - 月々のお支払い金額
円
- 借入ご希望金額
※ 月々のお支払例は目安の試算となりますので、実際の金額とは異なる場合がございます。詳しくは店舗までお問合わせください。
- 木更津市富士見2丁目
-
JR内房線『木更津』 徒歩7分 (約560m)
JR内房線『巌根』 徒歩57分 (約4500m)
JR久留里線『祇園』 徒歩39分 (約3100m)
デュオヒルズ木更津 中古マンションマンション | 物件情報
JR内房線【木更津駅】徒歩約7分♪10階南西角部屋から富士山の見える景色や夏の花火も鑑賞できます♪
〇木更津駅徒歩約7分、都心や羽田空港へのアクセスは駅発着の高速バス利用が便利♪車でも都心までアクアライン経由で60分程度♪
〇お部屋からの眺望は、冬は富士山がキレイに見え、夏のお盆には木更津港まつりの花火大会も独占鑑賞できます♪
〇優雅なアプローチが魅力のリゾートスタイルレジデンス♪
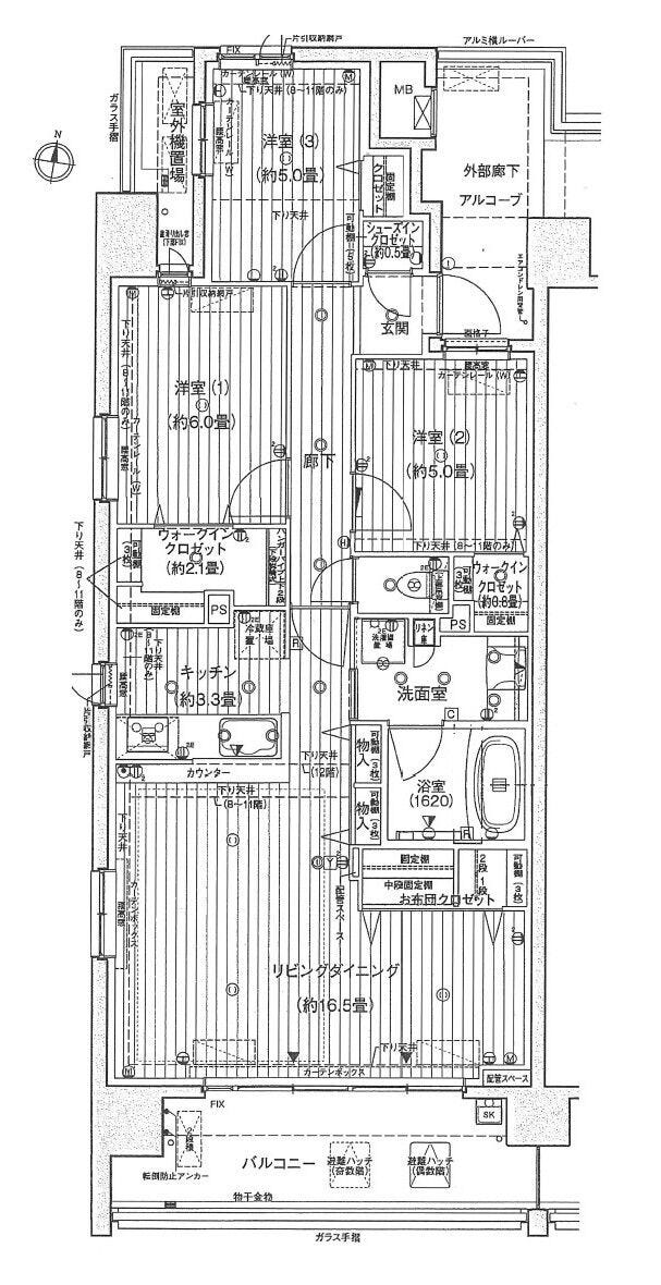
〇LDK16.5帖、他5帖2室、6帖1室の3LDKマンション♪
〇大型犬の飼育が可能で、ペットとの暮らし可(規約有)♪
〇小・中学校徒歩圏内、お子様の通学も安心♪
〇南側ベランダからの眺望GOOD、スロップシンク付♪
〇家計にやさしい都市ガス仕様♪
〇調理時の火元安心のIHクッキングヒーター採用、キッチンには便利な食洗機付♪
〇リビングは床暖房付で冬も快適♪
〇駐車場は2台分、徒歩1分程度の近隣に契約中で引継ぎ可能です♪
〇共有部は、共有宅配ボックス、防犯カメラ付、エントランスはオートロック、管理人様は日勤対応のマンション♪
◎ご購入までの流れ、各種費用詳細、ご活用いただける制度までしっかりとご説明いたします♪
物件の設備
- 公営水道
- 下水道
- 公共下水
- 都市ガス
- 給湯
- 浄水器
- 食器洗浄乾燥機
- IHクッキングヒータ
- コンロ三口
- グリル
- カウンターキッチン
- システムキッチン
- オープンキッチン
- バス
- ユニットバス
- オートバス
- バスサイズ1620
- バス1坪以上
- 追焚機能
- 浴室暖房
- 浴室乾燥機
- シャワー
- トイレ
- 温水洗浄便座
- 室内洗濯機置場
- 洗髪洗面化粧台
- CATV
- インターネット接続可
- CATVインターネット
- マルチメディアコンセント
- ダウンライト
- 人感照明センサー
- ディンプルキー
- ダブルロックキー
- 非接触型ICカードキー
- モニタ付インターホン
- 火災警報器/報知機
- LDK15畳以上
- 複層ガラス
- 全居室複層ガラス
- フローリング
- 全室フローリング
- 24時間換気システム
- 網戸
- クローゼット
- クローゼット3箇所
- ウォークインクローゼット
- ウォークインクローゼット2箇所
- 床下収納
- 全居室収納
- シューズボックス
- バルコニー
- ワイドバルコニー
- 南面バルコニー
- 宅配BOX
- エレベーター
物件の特徴
- 管理人日勤
- 角部屋
- 南西角部屋
- 南向
- 駅まで平坦
- 海に近い
- 市街地が近い
- 花火が見える
- 海が見える
- 眺望良好
- 通風良好
- 陽当り良好
- 高層階
- 平坦地
- スロップシンク
- 24時間ゴミ出可
- 建設住宅性能評価付
- 設計住宅性能評価付
- 建築確認完了検査済証
- 新築
- 増改築設計図書
- 即入居可
- ペット対応
- 事務所不可
物件詳細情報
| 価格 | 4,370万円 | 間取り | 3LDK |
|---|---|---|---|
| 物件種別 | 中古マンション | ||
| 所在地 | 千葉県木更津市富士見2丁目 | ||
| アクセス |
|
||
| 専有面積 | 内法 79.57㎡ | 所在階 | 12階建/10階部分 |
| 主要採光 | 南向 | バルコニー | 南向10.00㎡ |
| その他 | |||
| 権利 | 所有権 |
||
| 保証・評価 | 設計住宅性能評価書・建設住宅性能評価書(新築時) |
||
| リフォーム | |||
| 総戸数 | 85戸(事:1戸 住:84戸) | 面積 | 敷地:2708.66㎡ |
| 築年月 | 2020年(令和2年)02月築 | 建物構造 | RC (一部 SRC ) |
| 施工会社 | 多田建設株式会社 | ||
| 管理会社 | フージャースリビングサービス | 管理方式 | 全部委託 日勤管理 管理組合あり |
| 駐車場 | |||
| 都市計画 | 市街化区域 |
用途地域 | 商業 |
| 建ぺい/容積率 | 80% / 400% | 土地国土法 | |
| 法令制限 | 景観法・準防火地域・法22条区域 | ||
| 小学区 | 木更津第一小学校 徒歩11分 (約820m) | 中学区 | 木更津第一中学校 徒歩12分 (約940m) |
| 現況 | 空 | 引渡 | 即 |
| 管理費 | 17,260円/月 | 修繕積立金 | 20,090円/月 |
| その他費用 | インターネット:770円/月 その他負担金:2200円 月額給湯器リース料 |
||
| 周辺環境 | 木更津市立木更津第一小学校 徒歩11分 (約820m) 木更津市立木更津第一中学校 徒歩12分 (約940m) イオンタウン木更津朝日 徒歩25分 (約1960m) SENDO 木更津店 徒歩25分 (約1980m) ドラッグセイムス 木更津新田店 徒歩6分 (約430m) クリエイトSD 木更津貝渕店 徒歩16分 (約1280m) DCM 木更津潮見店 徒歩17分 (約1320m) セブンイレブン木更津中央3丁目店 徒歩7分 (約500m) 鳥居崎海浜公園 徒歩10分 (約750m) ミニストップ 木更津富士見店 徒歩3分 (約170m) |
||
| 備考 | |||
| 物件番号 | 4541412 | 取引態様 | 一般 |
取扱店舗情報
ハウスドゥ 木更津北 有限会社グリーンエース 店舗詳細ページへ
| 電話番号 | 0438-97-5036 |
|---|---|
| 所在地 | 〒292-0052 千葉県木更津市祇園485-1 |
| 営業時間 | 10:00~18:30 |
| 定休日 | 水曜日、年末年始、火曜不定休 |
| 宅建免許番号 | 千葉県知事(2)第17071号 |
| アクセス | 店舗への地図はこちら |

来店ご予約
- 千葉県
マイページ物件数 - 2,844件
千葉県中古マンション新着物件
- お近くの店舗を探す
-
おすすめ物件
-
-

-
- 中古マンション
- 1,950万円
-
松戸市小山
-
JR常磐線松戸
-
-
-

-
- 中古マンション
- 1,930万円
-
船橋市習志野5丁目
-
京成本線実籾
-
-
-

-
- 中古マンション
- 2,780万円
-
松戸市久保平賀
-
JR千代田・常磐緩行線北小金
-
-
-

-
- 中古マンション
- 1,280万円
-
松戸市松戸
-
JR常磐線松戸
-
-
-

-
- 中古マンション
- 990万円
-
松戸市西馬橋広手町
-
JR千代田・常磐緩行線馬橋
-
-
-

-
- 中古マンション
- 2,690万円
-
流山市加3丁目
-
つくばエクスプレス流山セントラルパーク
-
-
-

-
- 中古マンション
- 2,398万円
-
松戸市新松戸7丁目
-
JR千代田・常磐緩行線新松戸
-
-
-

-
- 中古マンション
- 1,640万円
-
千葉市中央区都町6丁目
-
JR総武・中央緩行線千葉
-
-
-

-
- 中古マンション
- 2,690万円
-
流山市加3丁目
-
つくばエクスプレス流山セントラルパーク
-
-
-

-
- 中古マンション
- 1,790万円
-
流山市駒木台
-
東武野田線江戸川台
-







































担当エージェント:三谷 晴美
♪いつでもご案内いたします~お気軽にご連絡くださいませ♪ おうちの探し方、資金計画の立て方や住宅ローン選び、おうちの税金面のアドバイス等、いろいろサポートさせていただきます♪