京王柴崎コーポラス
掲載情報更新日:2026年03月14日 次回更新予定日:2026年03月28日
- 3,380万円
-
- 借入ご希望金額
万円 - 借入期間
年 - 借入金利
% - 月々のお支払い金額
円
- 借入ご希望金額
※ 月々のお支払例は目安の試算となりますので、実際の金額とは異なる場合がございます。詳しくは店舗までお問合わせください。
- 狛江市西野川4丁目
-
京王線『柴崎』 徒歩13分 (約1040m)
京王柴崎コーポラスマンション | 物件情報
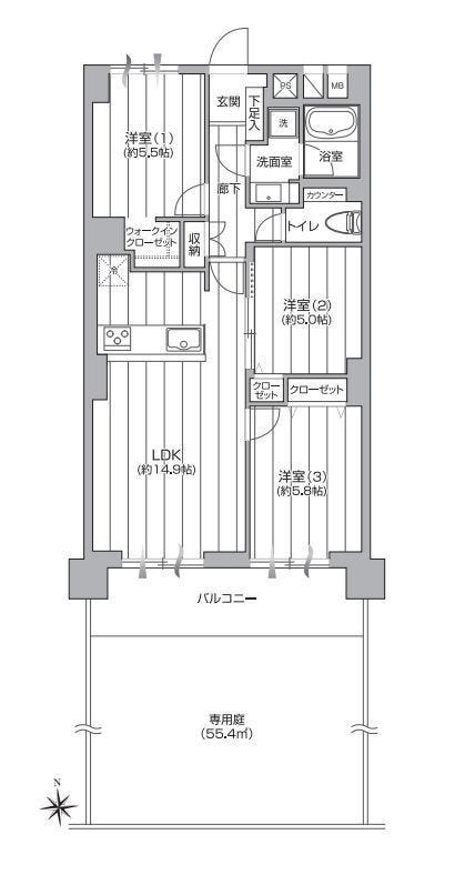
■新規内装フルリフォーム済み♪ ■南向き3LDK+WIC+専用庭 ■ペット飼育可
《Access》
・京王線「柴崎駅」歩13分
《Point》
・閑静な住宅街の緑豊かな住環境
・ペット飼育可(細則あり)
・南向き 日当たり・通風良好
・55㎡超えの広々とした専用庭付♪
・各所収納+WIC
・食洗機、浴室暖房機、TVモニター付インターフォン・・・設備充実
《Remodeling》2025年12月6日完工
・キッチン、バス、トイレ、洗面化粧台新規交換
・建具交換
・給湯器交換、専有部内給排水管
・全室クロス、全居室フローリング張替え
・ハウスクリーニング・・・など
■即案内可能です!お気軽にお問合せください♪
物件の設備
- 公営水道
- 公共下水
- 都市ガス
- 給湯
- 浄水器
- 食器洗浄乾燥機
- コンロ三口
- グリル
- ガスコンロ付
- カウンターキッチン
- システムキッチン
- オープンキッチン
- バス
- ユニットバス
- オートバス
- 追焚機能
- 浴室暖房
- 浴室乾燥機
- トイレ
- 温水洗浄便座
- B/T別室
- 室内洗濯機置場
- 洗面所独立
- 室内物干機
- 照明器具
- BS
- CS
- ネット専用回線
- 省エネ給湯器
- ディンプルキー
- モニタ付インターホン
- 防犯カメラ
- 火災警報器/報知機
- フローリング
- 全室フローリング
- フローリング張替
- 24時間換気システム
- クローゼット
- クローゼット2箇所
- ウォークインクローゼット
- 全居室収納
- シューズボックス
- バルコニー
- 南面バルコニー
- 庭10坪以上
- 南庭
- 専用庭
- エレベーター
- エレベーター2基
物件の特徴
- 管理人日勤
- 内装リフォーム済
- 内装リフォーム後渡
- 南向
- 総合病院徒歩10分以内
- 整備された歩道
- 緑豊かな住宅地
- スーパーが近い
- 閑静な住宅街
- 周辺交通量少なめ
- 市街地が近い
- 通風良好
- 陽当り良好
- 階下に住戸無
- 修繕
- 点検記録
- 即入居可
- ペット相談
- ペット対応
- 事務所不可
物件詳細情報
| 価格 | 3,380万円 | 間取り | 3LDK |
|---|---|---|---|
| 物件種別 | 中古マンション | ||
| 所在地 | 東京都狛江市西野川4丁目 | ||
| アクセス |
|
||
| 専有面積 | 壁芯 67.30㎡ | 所在階 | 8階建/1階部分 |
| 主要採光 | 南向 | バルコニー | 南向7.56㎡ |
| その他 | 55.40㎡ 0円/月 | ||
| 権利 | 所有権 |
||
| 保証・評価 | |||
| リフォーム | 【水回り】2025年12月 キッチン・浴室・トイレ・洗面・給湯器・給排水管 【内装】2025年12月 壁、天井 ・床 ・全室クロス ・建具 |
||
| 総戸数 | 128戸 | 面積 | |
| 築年月 | 1973年(昭和48年)02月築 | 建物構造 | RC |
| 施工会社 | ㈱長谷工工務店 | ||
| 管理会社 | 日本メンテナンス㈱ | 管理方式 | 一部管理 日勤管理 管理組合あり |
| 駐車場 | |||
| 都市計画 | 用途地域 | ||
| 建ぺい/容積率 | 土地国土法 | ||
| 法令制限 | |||
| 小学区 | 緑野小学校 徒歩12分 (約890m) | 中学区 | 狛江第四中学校 徒歩19分 (約1470m) |
| 現況 | 空 | 引渡 | 即 |
| 管理費 | 11,300円/月 | 修繕積立金 | 10,000円/月 |
| その他費用 | |||
| 周辺環境 | 慈恵医大第三病院 徒歩4分 (約280m) 狛江西野川郵便局 徒歩5分 (約340m) OKストア狛江店 徒歩5分 (約360m) 前原公園 徒歩5分 (約370m) ユニディ狛江店 徒歩9分 (約680m) ときわぎ国領保育園 徒歩9分 (約720m) イトーヨーカドー国領 徒歩11分 (約830m) 狛江市立狛江緑野小学校 徒歩12分 (約890m) クリエイトエス・ディー調布国領町店 徒歩14分 (約1090m) 狛江市立第四中学校 徒歩19分 (約1470m) |
||
| 備考 | |||
| 物件番号 | 4549320 | 取引態様 | 媒介 |
取扱店舗情報
ハウスドゥ 千歳船橋 R2-CONNECT株式会社 店舗詳細ページへ
| 電話番号 | 03-5799-7621 |
|---|---|
| 所在地 | 〒156-0054 東京都世田谷区桜丘5丁目47-19 |
| 営業時間 | 9:00~19:00 |
| 定休日 | 火曜日、水曜日 |
| 宅建免許番号 | 東京都知事(1)第107079号 |
| アクセス | 店舗への地図はこちら |

来店ご予約
東京都狛江市で価格が似ている物件はこちら
- 東京都
マイページ物件数 - 5,471件
東京都中古マンション新着物件
- お近くの店舗を探す
-
おすすめ物件
-
-

-
- 中古マンション
- 1億3,800万円
-
世田谷区桜上水5丁目
-
京王線桜上水
-
-
-

-
- 中古マンション
- 1,280万円
-
大田区東六郷3丁目
-
京急本線雑色
-
-
-

-
- 中古マンション
- 2,880万円
-
葛飾区金町2丁目
-
JR千代田・常磐緩行線金町
-
-
-

-
- 中古マンション
- 1億1,960万円
-
世田谷区三軒茶屋2丁目
-
東急田園都市線三軒茶屋
-
-
-

-
- 中古マンション
- 4,798万円
-
葛飾区金町1丁目
-
京成金町線京成金町
-
-
-

-
- 中古マンション
- 3,980万円
-
世田谷区成城3丁目
-
小田急小田原線成城学園前
-
-
-

-
- 中古マンション
- 3,680万円
-
千葉市中央区千葉港
-
千葉都市モノレール市役所前
-
-
-

-
- 中古マンション
- 3,280万円
-
足立区西新井4丁目
-
日暮里舎人ライナー谷在家
-
-
-

-
- 中古マンション
- 1,950万円
-
八王子市高倉町
-
JR八高線北八王子
-
-
-

-
- 中古マンション
- 4,480万円
-
大田区大森本町1丁目
-
京急本線大森海岸
-





























即対応いたします!
物件、資金計画、周辺環境もご案内させて頂きます。
資料請求、ご見学お気軽にお問合せください。