ジースクエア 江東区千石3丁目の中古マンション
NEW 01.19掲載情報更新日:2026年01月19日 次回更新予定日:2026年02月02日
- 8,790万円
-
- 借入ご希望金額
万円 - 借入期間
年 - 借入金利
% - 月々のお支払い金額
円
- 借入ご希望金額
※ 月々のお支払例は目安の試算となりますので、実際の金額とは異なる場合がございます。詳しくは店舗までお問合わせください。
- 江東区千石3丁目
-
東京メトロ東西線『東陽町』 徒歩13分 (約1040m)
東京メトロ半蔵門線『住吉』 徒歩15分 (約1200m)
江東区千石3丁目マンション | 物件情報
新規リノベーション物件◆管理体制良好マンション◆内見予約お待ちしております。
●ペットと一緒に暮らせます
●トランクルーム、ウォークインクローゼット
●新規フルリフォーム
●オートロック、防犯カメラ、安心のセキュリティ
●床暖房
●ウォークインクローゼット
***皆様のお問い合わせをお待ちしております!***
<弊社の営業時間9:30~18:30>
◆当物件以外に、ご条件に近い物件も合わせてご紹介させていただくことも可能です。
弊社ホームページに掲載されていない物件も、ご紹介可能です。
◆ローンに関するご相談もお受けいたします。
どうぞお気軽にお問い合わせください。
物件の設備
- 公営水道
- 公共下水
- 都市ガス
- 給湯
- システムキッチン
- ユニットバス
- シャワー
- トイレ
- 温水洗浄便座
- B/T別室
- 室内洗濯機置場
- 洗面所独立
- オートロック
- モニタ付インターホン
- 防犯カメラ
- 全室フローリング
- クローゼット2箇所
- ウォークインクローゼット
- シューズボックス
- バルコニー
- 南面バルコニー
- ゲストルーム
- 共用パーティールーム
- 施設内貸会議室
- 宅配BOX
- エレベーター2基
物件の特徴
- 管理人日勤
- 2沿線利用可
- 閑静な住宅街
- 眺望良好
- 通風良好
- 陽当り良好
- 24時間ゴミ出可
物件詳細情報
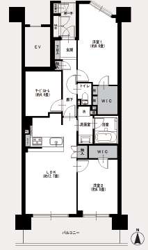
| 価格 | 8,790万円 | 間取り | 2LDK+S |
|---|---|---|---|
| 物件種別 | 中古マンション | ||
| 所在地 | 東京都江東区千石3丁目 | ||
| アクセス |
|
||
| 専有面積 | 壁芯 70.47㎡ | 所在階 | 19階建/8階部分 |
| 主要採光 | バルコニー | 南向10.98㎡ | |
| その他 | |||
| 権利 | 所有権 |
||
| 保証・評価 | |||
| リフォーム | |||
| 総戸数 | 596戸 | 面積 | |
| 築年月 | 2000年(平成12年)02月築 | 建物構造 | SRC |
| 施工会社 | |||
| 管理会社 | 管理方式 | 全部委託 日勤管理 | |
| 駐車場 | |||
| 都市計画 | 用途地域 | 準工業 | |
| 建ぺい/容積率 | 土地国土法 | ||
| 法令制限 | |||
| 小学区 | 中学区 | ||
| 現況 | 空 | 引渡 | 相談 |
| 管理費 | 8,320円/月 | 修繕積立金 | 19,890円/月 |
| その他費用 | |||
| 周辺環境 | イキイキ生鮮市場東陽町 徒歩9分 (約720m) 西友東陽町店 徒歩10分 (約780m) オーケー南砂店 徒歩11分 (約870m) 江東区役所 徒歩12分 (約950m) |
||
| 備考 | |||
| 物件番号 | 4559749 | 取引態様 | 媒介 |
取扱店舗情報
ハウスドゥ 江東区役所前 Keep up home株式会社 店舗詳細ページへ
| 電話番号 | 03-6666-0705 |
|---|---|
| 所在地 | 〒135-0016 東京都江東区東陽5丁目30-16 とびたビル5F |
| 営業時間 | 10:00~18:30 |
| 定休日 | 水曜日 |
| 宅建免許番号 | 東京都知事(1)第107913号 |
| アクセス | 店舗への地図はこちら |

来店ご予約
東京都江東区で価格が似ている物件はこちら
- 東京都
マイページ物件数 - 5,032件
最近見た物件
-
-

-
- 中古マンション
- 2,498万円
-
豊田市御幸本町7丁目
-
愛知環状鉄道三河豊田
-
-
-

-
- 中古マンション
- 4,990万円
-
江戸川区江戸川2丁目
-
都営新宿線瑞江
-
東京都中古マンション新着物件
- お近くの店舗を探す
-
おすすめ物件
-
-

-
- 中古マンション
- 2,890万円
-
足立区大谷田4丁目
-
東京メトロ千代田線北綾瀬
-
-
-

-
- 中古マンション
- 2,480万円
-
葛飾区東金町1丁目
-
JR千代田・常磐緩行線金町
-
-
-

-
- 中古マンション
- 1,280万円
-
練馬区立野町
-
JR中央本線吉祥寺
-
-
-

-
- 中古マンション
- 9,980万円
-
台東区北上野2丁目
-
東京メトロ日比谷線入谷
-
-
-

-
- 中古マンション
- 1億4,150万円
-
世田谷区松原3丁目
-
京王線下高井戸
-
-
-

-
- 中古マンション
- 2,340万円
-
葛飾区水元2丁目
-
JR千代田・常磐緩行線金町
-
-
-

-
- 中古マンション
- 4,998万円
-
葛飾区金町1丁目
-
JR千代田・常磐緩行線金町
-
-
-

-
- 中古マンション
- 1,790万円
-
足立区東和5丁目
-
東京メトロ千代田線北綾瀬
-
-
-

-
- 中古マンション
- 1,980万円
-
葛飾区柴又6丁目
-
北総鉄道新柴又
-
-
-

-
- 中古マンション
- 1億4,400万円
-
世田谷区玉川台2丁目
-
東急田園都市線用賀
-












