グローリアス刈谷今岡町 刈谷市今岡町吹戸池の中古マンション
掲載情報更新日:2026年05月19日 次回更新予定日:2026年06月02日
- 1,880万円
-
- 借入ご希望金額
万円 - 借入期間
年 - 借入金利
% - 月々のお支払い金額
円
- 借入ご希望金額
※ 月々のお支払例は目安の試算となりますので、実際の金額とは異なる場合がございます。詳しくは店舗までお問合わせください。
- 刈谷市今岡町吹戸池
-
名鉄名古屋本線『一ツ木』 徒歩22分 (約1740m)
名鉄名古屋本線『富士松』 徒歩22分 (約1700m)
JR東海道本線『刈谷』 徒歩62分 (約4910m)
刈谷市今岡町吹戸池マンション | 物件情報
物件の設備
- システムキッチン
- バス
- トイレ
- LDK20畳以上
- クローゼット2箇所
- 全居室収納
- バルコニー
- ワイドバルコニー
物件の特徴
- 緑豊かな住宅地
- 閑静な住宅街
- 通風良好
- 陽当り良好
物件詳細情報
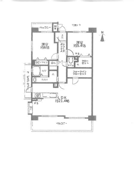
| 価格 | 1,880万円 | 間取り | 2LDK+S |
|---|---|---|---|
| 物件種別 | 中古マンション | ||
| 所在地 | 愛知県刈谷市今岡町吹戸池 | ||
| アクセス |
|
||
| 専有面積 | 壁芯 73.05㎡ | 所在階 | 6階建/2階部分 |
| 主要採光 | バルコニー | 15.35㎡ | |
| その他 | |||
| 権利 | 所有権 |
||
| 保証・評価 | |||
| リフォーム | |||
| 総戸数 | 30戸 | 面積 | |
| 築年月 | 1998年(平成10年)03月築 | 建物構造 | RC |
| 施工会社 | |||
| 管理会社 | (株)矢作建物管理 | 管理方式 | 全部委託 なし(不在) |
| 駐車場 | |||
| 都市計画 | 用途地域 | 工業 | |
| 建ぺい/容積率 | 土地国土法 | ||
| 法令制限 | |||
| 小学区 | 富士松東小学校 徒歩21分 (約1610m) | 中学区 | 富士松中学校 徒歩13分 (約1000m) |
| 現況 | 空 | 引渡 | 相談 |
| 管理費 | 11,400円/月 | 修繕積立金 | 12,300円/月 |
| その他費用 | |||
| 周辺環境 | ローソン 刈谷工業団地前店 徒歩6分 (約410m) セブンイレブン 刈谷一里山町店 徒歩11分 (約880m) 富士松中学校 徒歩13分 (約1000m) 富士松東小学校 徒歩21分 (約1610m) 一里山・今井病院 徒歩17分 (約1300m) 刈谷大和幼稚園 徒歩20分 (約1570m) 一ツ木駅 徒歩22分 (約1740m) 刈谷市役所 富士松支所 徒歩19分 (約1510m) 平成幼児園 徒歩25分 (約1960m) ファミリーマート 刈谷一ツ木七丁目店 徒歩22分 (約1730m) |
||
| 備考 | 2022年8月リフォーム済み キッチン、浴室、トイレ、洗面所、給湯器、全室クロス張替え、床(フローリング等)、シューズボックス交換 |
||
| 物件番号 | 4566949 | 取引態様 | 媒介 |
取扱店舗情報
ハウスドゥ 刈谷R155 株式会社エネチタ 店舗詳細ページへ
| 電話番号 | 0566-45-6391 |
|---|---|
| 所在地 | 〒448-0038 愛知県刈谷市稲場町5丁目612 |
| 営業時間 | 9:00~18:00 |
| 定休日 | 水曜日 |
| 宅建免許番号 | 愛知県知事(3)第23049号 |
| アクセス | 店舗への地図はこちら |

来店ご予約
愛知県刈谷市で価格が似ている物件はこちら
- 愛知県
マイページ物件数 - 32,320件
最近見た物件
-
-

-
- 中古マンション
- 2,330万円
-
長久手市塚田
-
名古屋市東山線藤が丘
-
-
-

-
- 中古マンション
- 650万円
-
名古屋市港区宝神町字屋敷
-
名古屋臨海高速鉄道稲永
-
-
-

-
- 新築一戸建て
- 2,190万円
-
四日市市河原田町
-
JR関西本線河原田
-
愛知県中古マンション新着物件
-
-

-
- 中古マンション
- 3,048万円
-
知多市大草字大瀬
-
名鉄常滑線新舞子駅
-
-
-

-
- 中古マンション
- 2,680万円
-
名古屋市緑区鳴海町字細根
-
名鉄名古屋本線有松駅
-
-
-

-
- 中古マンション
- 3,800万円
-
岡崎市柱曙3丁目
-
JR東海道本線岡崎駅
-
-
-

-
- 中古マンション
- 2,390万円
-
瀬戸市東権現町
-
名鉄瀬戸線尾張瀬戸駅
-
-
-

-
- 中古マンション
- 1,680万円
-
岡崎市竜美新町
-
名鉄名古屋本線男川駅
-
-
-

-
- 中古マンション
- 1,699万円
-
名古屋市緑区松が根台
-
名古屋市桜通線野並駅
-
-
-

-
- 中古マンション
- 1,548万円
-
江南市上奈良町久保
-
名鉄犬山線江南駅
-
- お近くの店舗を探す
-
おすすめ物件
-
-

-
- 中古マンション
- 700万円
-
尾張旭市北原山町大久保見
-
名鉄瀬戸線三郷
-
-
-

-
- 中古マンション
- 1,690万円
-
名古屋市昭和区藤成通6丁目
-
名古屋市鶴舞線川名
-
-
-

-
- 中古マンション
- 2,700万円
-
名古屋市緑区鳴海町字山腰
-
名鉄名古屋本線鳴海
-
-
-

-
- 中古マンション
- 2,998万円
-
名古屋市千種区萩岡町
-
名古屋市名城線名古屋大学
-
-
-

-
- 中古マンション
- 1,980万円
-
蒲郡市中央本町
-
JR東海道本線蒲郡
-
-
-

-
- 中古マンション
- 1,699万円
-
名古屋市中川区福川町3丁目
-
名古屋市名港線六番町
-
-
-

-
- 中古マンション
- 3,980万円
-
名古屋市中村区名駅南1丁目
-
名鉄名古屋本線名鉄名古屋
-
-
-

-
- 中古マンション
- 900万円
-
豊田市生駒町大坪
-
名鉄三河線若林
-
-
-

-
- 中古マンション
- 2,380万円
-
名古屋市港区木場町
-
名鉄常滑線道徳
-
-
-

-
- 中古マンション
- 1,400万円
-
名古屋市南区豊4丁目
-
名古屋市名城線堀田
-











