南区蒔田町 朝日マンション横浜蒔田1階部分 3480万円
NEW 01.25掲載情報更新日:2026年01月29日 次回更新予定日:2026年02月12日
- 3,480万円
-
- 借入ご希望金額
万円 - 借入期間
年 - 借入金利
% - 月々のお支払い金額
円
- 借入ご希望金額
※ 月々のお支払例は目安の試算となりますので、実際の金額とは異なる場合がございます。詳しくは店舗までお問合わせください。
- 横浜市南区蒔田町字谷戸田上
-
横浜市営地下鉄ブルーライン『蒔田』 徒歩10分 (約800m)
南区蒔田町 朝日マンション横浜蒔田1階部分 3480万円マンション | 物件情報
物件の設備
- コンロ三口
- システムキッチン
- ユニットバス
- トイレ
- 室内洗濯機置場
- 洗面所独立
- LDK18畳以上
- 2面採光
- 出窓
- フローリング張替
- クローゼット
- ウォークインクローゼット
- 床下収納
- 押入
- シューズボックス
- バルコニー
- テラス
- 専用庭
- 駐輪場
- バイク置場
物件の特徴
- 管理人日勤
- 内装リフォーム済
- 角部屋
- 3方角住戸
- 小学校徒歩10分以内
- スーパーが近い
物件詳細情報
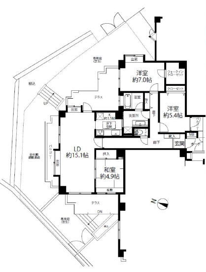
| 価格 | 3,480万円 | 間取り | 3LDK |
|---|---|---|---|
| 物件種別 | 中古マンション | ||
| 所在地 | 神奈川県横浜市南区蒔田町字谷戸田上 | ||
| アクセス |
|
||
| 専有面積 | 壁芯 89.87㎡ | 所在階 | 7階建/1階部分 |
| 主要採光 | 北向 | バルコニー | 北向9.80㎡ |
| その他 | 32.03㎡ | ||
| 権利 | 所有権 |
||
| 保証・評価 | |||
| リフォーム | 【水回り】2022年05月 キッチン・浴室・トイレ・洗面 【内装】2022年05月 壁、天井 ・床 ・全室クロス ・建具 ・サッシ ・他[ハウスクリーニング] |
||
| 総戸数 | 128戸 | 面積 | |
| 築年月 | 1997年(平成9年)10月築 | 建物構造 | RC |
| 施工会社 | 佐藤工業株式会社 横浜支店 | ||
| 管理会社 | 株式会社エム・シー・サービス | 管理方式 | 全部委託 日勤管理 |
| 駐車場 | 【駐車場】空有 料金:19,000円/月 【バイク置き場】空無 料金:5000円/月 【駐輪場】空有 料金:300円/月 |
||
| 都市計画 | 用途地域 | 1種住居 | |
| 建ぺい/容積率 | 土地国土法 | ||
| 法令制限 | |||
| 小学区 | 蒔田小学校 徒歩6分 (約447m) | 中学区 | 蒔田中学校 徒歩14分 (約1090m) |
| 現況 | 居住中 | 引渡 | 相談 |
| 管理費 | 8,990円/月 | 修繕積立金 | 16,180円/月 |
| その他費用 | |||
| 備考 | 専用庭使用料:1600円/月 バイク置き場:空無(1000~5000円/月) ※駐車場、バイク置き場、駐輪場の空き状況は現況を優先と致します。 |
||
| 物件番号 | 4567981 | 取引態様 | 媒介 |
取扱店舗情報
ハウスドゥ 横浜公園前 トランクトラスト株式会社 店舗詳細ページへ
| 電話番号 | 045-307-3166 |
|---|---|
| 所在地 | 〒231-0023 神奈川県横浜市中区山下町252番地 グランベル横浜ビル6階D号 |
| 営業時間 | 9:00~18:00 |
| 定休日 | 水曜日 |
| 宅建免許番号 | 神奈川県知事(2)第30620号 |
| アクセス | 店舗への地図はこちら |

来店ご予約
神奈川県横浜市南区で価格が似ている物件はこちら
- 神奈川県
マイページ物件数 - 3,124件
最近見た物件
-
-

-
- 中古マンション
- 2,399万円
-
吹田市樫切山
-
大阪モノレール万博記念公園
-
-
-

-
- 中古一戸建て
- 2,160万円
-
邑楽郡大泉町大字吉田
-
東武小泉線西小泉
-
-
-

-
- 中古マンション
- 1,000万円
-
明石市二見町西二見
-
JR山陽本線土山
-
神奈川県中古マンション新着物件
-
-

-
- 中古マンション
- 2,590万円
-
川崎市麻生区高石4丁目
-
小田急小田原線百合ヶ丘駅
-
-
-

-
- 中古マンション
- 1,199万円
-
平塚市田村1丁目
-
JR東海道本線平塚駅
-
-
-

-
- 中古マンション
- 1,580万円
-
横須賀市不入斗町3丁目
-
京急本線横須賀中央駅
-
-
-

-
- 中古マンション
- 2,497万円
-
厚木市妻田東1丁目
-
小田急小田原線本厚木駅
-
-
-

-
- 中古マンション
- 2,980万円
-
川崎市多摩区菅馬場1丁目
-
JR南武線中野島駅
-
-
-

-
- 中古マンション
- 2,690万円
-
川崎市多摩区菅北浦4丁目
-
京王相模原線京王稲田堤駅
-
-
-

-
- 中古マンション
- 790万円
-
厚木市宮の里4丁目
-
小田急小田原線本厚木駅
-
- お近くの店舗を探す
-
おすすめ物件
-
-

-
- 中古マンション
- 1,580万円
-
厚木市森の里2丁目
-
小田急小田原線本厚木
-
-
-

-
- 中古マンション
- 3,790万円
-
横浜市中区根岸旭台
-
JR根岸線根岸
-
-
-

-
- 中古マンション
- 4,580万円
-
横浜市中区伊勢佐木町5丁目
-
JR京浜東北・根岸線関内
-
-
-

-
- 中古マンション
- 3,280万円
-
平塚市宝町
-
JR東海道本線平塚
-
-
-

-
- 中古マンション
- 2,290万円
-
横浜市中区千歳町
-
横浜市営地下鉄ブルーライン伊勢佐木長者町
-
-
-

-
- 中古マンション
- 4,280万円
-
平塚市見附町
-
JR東海道本線平塚
-
-
-

-
- 中古マンション
- 5,290万円
-
横浜市中区根岸旭台
-
JR根岸線根岸
-
-
-

-
- 中古マンション
- 3,790万円
-
横浜市中区新山下3丁目
-
横浜高速鉄道みなとみらい線元町・中華街
-
-
-

-
- 中古マンション
- 3,180万円
-
横浜市中区山下町
-
JR根岸線石川町
-
-
-

-
- 中古マンション
- 2,190万円
-
平塚市四之宮6丁目
-
JR東海道本線平塚
-


