ロワールマンション帯山 熊本市中央区帯山9丁目の中古マンション
掲載情報更新日:2026年04月21日 次回更新予定日:2026年05月05日
- 1,690万円
-
- 借入ご希望金額
万円 - 借入期間
年 - 借入金利
% - 月々のお支払い金額
円
- 借入ご希望金額
※ 月々のお支払例は目安の試算となりますので、実際の金額とは異なる場合がございます。詳しくは店舗までお問合わせください。
- 熊本市中央区帯山9丁目
-
JR豊肥本線『東海学園前』 徒歩31分 (約2420m)
熊本市健軍線『動植物園入口』 徒歩38分 (約3040m)
『鉄工団地通り』 徒歩3分 (約240m)
熊本市中央区帯山9丁目マンション | 物件情報
《一気見ツアー今すぐOK》リフォーム済☆スーパー・コンビニ・熊本赤十字病院まで徒歩10分圏内♪
【内覧ツアー×最安値保証】ネットの物件、すべて当社で紹介可能!交渉力で「理想の価格」を叶えます
当社はハウスドゥ全国大会において、九州エリア売買件数・売上高ともに1位を獲得
売主様への価格交渉も得意です!
九州トップクラスの取引実績に裏打ちされた交渉力で、購入価格を最大限に抑えます♪
他社様でお見積もりを取った後でも大丈夫!もっと安く買えるのでは?そんな悩みは当社が解決します
【内覧ツアー】
熊本県内全域の気になる物件をすべて当社でご内覧いただける『内覧ツアー』を実施中☆
新築・中古・中古マンションも!見学されたい物件を1日で内覧可能♪
窓口を一つに絞れるから、手間も時間もかかりません。
【最安値保証】
\最 安 値 徹 底 宣 言/
他社様よりも必ずお得にご購入いただけることをお約束します
当社ではオプション費用(エアコン、網戸、太陽光等)もお客様に代わり相見積もりします
トータルの費用が100万円以上変わることも!
全国700店舗以上展開!
ハウスドゥだからこその豊富な物件数・情報量でお客様のお家選びをトータルサポートいたします!
物件の設備
- 食器洗浄乾燥機
- IHクッキングヒータ
- コンロ三口
- グリル
- カウンターキッチン
- システムキッチン
- バス
- ユニットバス
- 浴室暖房
- 浴室乾燥機
- トイレ
- 温水洗浄便座
- 室内洗濯機置場
- 洗髪洗面化粧台
- 洗面所独立
- モニタ付インターホン
- 2面採光
- フローリング
- クローゼット
- シューズボックス
- バルコニー
- 駐輪場
- バイク置場
物件の特徴
- 管理人日勤
- 2沿線利用可
- スーパーが近い
- 眺望良好
- 通風良好
- 陽当り良好
- 即入居可
オープンハウス・イベント情報
開催日時:毎週土日祝 09:00~19:00
開催場所:熊本県熊本市中央区
\\現地見学会ご予約受付中// ○平日・土日祝いつでも承ります!! 〇お仕事帰りもOK!早朝・19時以降も対応致します! ◇◆◇お問い合わせ◇◆◇ 電話:096-243-3000 または 見学予約フォームにて事前にご予約をお願いします♪ ◇◆◇見学のご予約◇◆◇ 事前にご希望日時…
物件詳細情報
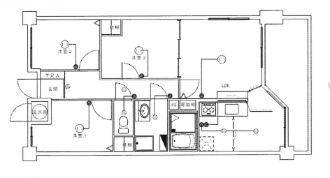
| 価格 | 1,690万円 | 間取り | 3LDK |
|---|---|---|---|
| 物件種別 | 中古マンション | ||
| 所在地 | 熊本県熊本市中央区帯山9丁目1-61 | ||
| アクセス |
|
||
| 専有面積 | 壁芯 62.23㎡ | 所在階 | 7階建/6階部分 |
| 主要採光 | 南東向 | バルコニー | 南東向12.82㎡ |
| その他 | |||
| 権利 | 所有権 |
||
| 保証・評価 | |||
| リフォーム | |||
| 総戸数 | 48戸 | 面積 | |
| 築年月 | 1991年(平成3年)03月築 | 建物構造 | RC |
| 施工会社 | |||
| 管理会社 | 株式会社コミュニティサービス | 管理方式 | 全部委託 日勤管理 |
| 駐車場 | 【駐車場】空無 【バイク置き場】空有 【駐輪場】空有 |
||
| 都市計画 | 用途地域 | ||
| 建ぺい/容積率 | 土地国土法 | ||
| 法令制限 | |||
| 小学区 | 帯山小学校 徒歩16分 (約1210m) | 中学区 | 西原中学校 徒歩21分 (約1640m) |
| 現況 | 空 | 引渡 | 即 |
| 管理費 | 7,800円/月 | 修繕積立金 | 15,336円/月 |
| その他費用 | |||
| 周辺環境 | 帯山小学校 徒歩16分 (約1210m) 西原中学校 徒歩12分 (約920m) 帯山中学校 徒歩21分 (約1640m) 帯山保育園 徒歩7分 (約510m) セブンイレブン 熊本帯山6丁目店 徒歩3分 (約180m) ゆめマート帯山 徒歩9分 (約720m) 熊本赤十字病院 徒歩9分 (約670m) 熊本鉄砲塚郵便局 徒歩5分 (約360m) ドラックストアモリ 帯山店 徒歩4分 (約290m) シュロアモール長嶺 徒歩16分 (約1240m) |
||
| 備考 | ・帯山小学校まで徒歩16分(約1210m) ・西原中学校まで徒歩12分(約920m) ・帯山中学校まで徒歩21分(約1640m) ・帯山保育園まで徒歩7分(約510m) ・セブンイレブン熊本帯山6丁目店まで徒歩3分(約180m) ・ゆめマート帯山まで徒歩9分(約720m) ・熊本赤十字病院まで徒歩9分(約670m) ・熊本鉄砲塚郵便局まで徒歩5分(約360m) ・ドラックストアモリ 帯山店まで徒歩4分(約290m) ・シュロアモール長嶺まで徒歩16分(約1240m) |
||
| 物件番号 | 4568226 | 取引態様 | 媒介 |
取扱店舗情報
ハウスドゥ 御幸田迎 株式会社Remado 店舗詳細ページへ
| 電話番号 | 096-243-3000 |
|---|---|
| 所在地 | 〒861-4108 熊本県熊本市南区幸田1丁目7-20 |
| 営業時間 | 10:00~18:00 |
| 定休日 | お盆、年末年始 |
| 宅建免許番号 | 熊本県知事(1)第5556号 |
| アクセス | 店舗への地図はこちら |

来店ご予約
熊本県熊本市中央区で価格が似ている物件はこちら
- 熊本県
マイページ物件数 - 3,068件
熊本県中古マンション新着物件
-
-

-
- 中古マンション
- 2,999万円
-
熊本市中央区本山3丁目
-
熊本市健軍線祗園橋駅
-
-
-

-
- 中古マンション
- 1,899万円
-
熊本市中央区船場町下1丁目
-
熊本市上熊本線洗馬橋駅
-
-
-

-
- 中古マンション
- 2,299万円
-
熊本市中央区萩原町
-
JR豊肥本線南熊本駅
-
-
-

-
- 中古マンション
- 1,899万円
-
熊本市中央区新町1丁目
-
熊本市上熊本線蔚山町駅
-
-
-

-
- 中古マンション
- 1,899万円
-
熊本市中央区大江3丁目
-
JR豊肥本線水前寺駅
-
-
-

-
- 中古マンション
- 1,290万円
-
熊本市中央区坪井6丁目
-
熊本電気鉄道坪井川公園駅
-
-
-

-
- 中古マンション
- 2,199万円
-
熊本市南区田井島1丁目
-
JR豊肥本線南熊本駅
-
- お近くの店舗を探す
-
おすすめ物件
-
-

-
- 中古マンション
- 1,840万円
-
熊本市東区新南部5丁目
-
JR豊肥本線竜田口
-
-
-

-
- 中古マンション
- 1,990万円
-
熊本市東区神園1丁目
-
JR豊肥本線武蔵塚
-
-
-

-
- 中古マンション
- 1,298万円
-
熊本市東区保田窪5丁目
-
JR豊肥本線東海学園前
-
-
-

-
- 中古マンション
- 1,350万円
-
熊本市中央区九品寺3丁目
-
熊本市健軍線交通局前
-
-
-

-
- 中古マンション
- 1,899万円
-
熊本市中央区船場町下1丁目
-
熊本市上熊本線洗馬橋
-
-
-

-
- 中古マンション
- 290万円
-
熊本市中央区船場町3丁目
-
熊本市健軍線慶徳校前
-
-
-

-
- 中古マンション
- 1,698万円
-
熊本市中央区渡鹿4丁目
-
JR豊肥本線東海学園前
-
-
-

-
- 中古マンション
- 1,499万円
-
八代市新地町
-
JR鹿児島本線八代
-


























担当エージェント:竹隈 翔
【月々の支払い例】
1700万円借り入れの場合
月々34,225円(頭金・ボーナス払いなし)
金利0.780%の場合(SBI新生銀行、金利優遇有)
変動金利 返済期間50年
※あくまで一例。条件有。
【周辺環境】
・帯山小学校まで徒歩16分(約1210m)
・西原中学校まで徒歩12分(約920m)
・帯山中学校まで徒歩21分(約1640m)
・帯山保育園まで徒歩7分(約510m)
・セブンイレブン熊本帯山6丁目店まで徒歩3分(約180m)
・ゆめマート帯山まで徒歩9分(約720m)
・熊本赤十字病院まで徒歩9分(約670m)
・熊本鉄砲塚郵便局まで徒歩5分(約360m)
・ドラックストアモリ 帯山店まで徒歩4分(約290m)
・シュロアモール長嶺まで徒歩16分(約1240m)
いつでもお気軽にご連絡ください☆彡
お問い合わせは『株式会社Remado』まで♪