アルシオン戸田公園
NEW 01.26掲載情報更新日:2026年01月29日 次回更新予定日:2026年02月12日
- 5,199万円
-
- 借入ご希望金額
万円 - 借入期間
年 - 借入金利
% - 月々のお支払い金額
円
- 借入ご希望金額
※ 月々のお支払例は目安の試算となりますので、実際の金額とは異なる場合がございます。詳しくは店舗までお問合わせください。
- 戸田市本町5丁目
-
JR埼京線『戸田公園』 徒歩5分 (約400m)
アルシオン戸田公園マンション | 物件情報
戸田公園駅徒歩5分♪リノベーションで設備一新!!
物件の設備
- 公営水道
- 公共下水
- 都市ガス
- 給湯
- 浄水器
- 食器洗浄乾燥機
- コンロ三口
- グリル
- カウンターキッチン
- システムキッチン
- バス
- ユニットバス
- 追焚機能
- 浴室乾燥機
- 温水洗浄便座
- 室内洗濯機置場
- オートロック
- モニタ付インターホン
- LDK15畳以上
- フローリング
- フローリング張替
- クローゼット
- 全居室収納
- シューズボックス
- バルコニー
- エレベーター
物件の特徴
- 管理人日勤
- 内装リフォーム済
- 内装リフォーム後渡
- 駅まで平坦
- 小学校徒歩10分以内
- スーパーが近い
- 閑静な住宅街
- 市街地が近い
- 眺望良好
- 平坦地
- 外観タイル張
- ペット不可
物件詳細情報
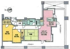
| 価格 | 5,199万円 | 間取り | 3LDK |
|---|---|---|---|
| 物件種別 | 中古マンション | ||
| 所在地 | 埼玉県戸田市本町5丁目2-20 | ||
| アクセス |
|
||
| 専有面積 | 壁芯 71.83㎡ | 所在階 | 14階建/7階部分 |
| 主要採光 | 南西向 | バルコニー | 南西向14.35㎡ |
| その他 | |||
| 権利 | 所有権 |
||
| 保証・評価 | |||
| リフォーム | 【水回り】2026年03月予定 キッチン・浴室・トイレ・洗面 【内装】2026年03月予定 床 ・全室クロス ・建具 ・他[エアコン新規設置] |
||
| 総戸数 | 99戸 | 面積 | |
| 築年月 | 1989年(平成1年)03月築 | 建物構造 | SRC |
| 施工会社 | |||
| 管理会社 | 東急コミュニティー | 管理方式 | 全部委託 日勤管理 管理組合あり |
| 駐車場 | |||
| 都市計画 | 市街化区域 |
用途地域 | 1種住居 |
| 建ぺい/容積率 | 60% / 200% | 土地国土法 | |
| 法令制限 | |||
| 小学区 | 戸田南小学校 徒歩6分 (約450m) | 中学区 | 戸田中学校 徒歩4分 (約250m) |
| 現況 | 空 | 引渡 | 相談 |
| 管理費 | 13,100円/月 | 修繕積立金 | 12,980円/月 |
| その他費用 | |||
| 周辺環境 | とだ虹保育園 徒歩3分 (約200m) 戸田南小学校 徒歩4分 (約320m) ロイヤルホームセンター 戸田公園 徒歩4分 (約270m) つつじ幼稚園 徒歩5分 (約400m) まいばすけっと 戸田公園駅前店 徒歩6分 (約440m) 戸田中学校 徒歩6分 (約450m) beans戸田公園 徒歩7分 (約520m) 戸田市立児童センター こどもの国 徒歩10分 (約770m) スーパーバリュー戸田店 徒歩11分 (約870m) ヨークマート戸田下前店 徒歩12分 (約930m) |
||
| 備考 | |||
| 物件番号 | 4569614 | 取引態様 | 媒介 |
取扱店舗情報
| 電話番号 | 048-441-6001 |
|---|---|
| 所在地 | 〒335-0013 埼玉県戸田市喜沢1丁目26-23 |
| 営業時間 | 10:00~19:00 |
| 定休日 | 火曜日・水曜日 |
| 宅建免許番号 | 埼玉県知事(3)第22845号 |
| アクセス | 店舗への地図はこちら |

来店ご予約
埼玉県戸田市で価格が似ている物件はこちら
- 埼玉県
マイページ物件数 - 3,159件
最近見た物件
-
-

-
- 中古マンション
- 3,480万円
-
千葉市美浜区打瀬1丁目
-
JR京葉線海浜幕張
-
埼玉県中古マンション新着物件
-
-

-
- 中古マンション
- 5,000万円
-
川口市中青木5丁目
-
JR京浜東北・根岸線西川口駅
-
-
-

-
- 中古マンション
- 3,080万円
-
さいたま市北区宮原町1丁目
-
埼玉新都市交通加茂宮駅
-
-
-

-
- 中古マンション
- 2,980万円
-
戸田市大字上戸田
-
JR埼京線戸田駅
-
-
-

-
- 中古マンション
- 3,680万円
-
蕨市北町1丁目
-
JR京浜東北・根岸線蕨駅
-
-
-

-
- 中古マンション
- 2,380万円
-
蕨市北町2丁目
-
JR京浜東北・根岸線蕨駅
-
-
-

-
- 収益
- 2,080万円
-
川口市西青木1丁目
-
JR京浜東北・根岸線西川口駅
-
-
-

-
- 収益
- 1,080万円
-
川口市上青木西1丁目
-
JR京浜東北・根岸線西川口駅
-
- お近くの店舗を探す
-
おすすめ物件
-
-

-
- 中古マンション
- 3,480万円
-
川口市元郷2丁目
-
埼玉高速鉄道川口元郷
-
-
-

-
- 中古マンション
- 2,880万円
-
越谷市北越谷3丁目
-
東武伊勢崎・大師線北越谷
-
-
-

-
- 中古マンション
- 5,199万円
-
戸田市本町5丁目
-
JR埼京線戸田公園
-
-
-

-
- 中古マンション
- 890万円
-
上尾市上町1丁目
-
JR高崎線上尾
-
-
-

-
- 中古マンション
- 780万円
-
川口市末広3丁目
-
埼玉高速鉄道川口元郷
-
-
-

-
- 中古マンション
- 2,890万円
-
さいたま市北区櫛引町2丁目
-
埼玉新都市交通鉄道博物館(大成)
-
-
-

-
- 中古マンション
- 2,690万円
-
越谷市越ヶ谷
-
東武伊勢崎・大師線北越谷
-
-
-

-
- 中古マンション
- 5,180万円
-
越谷市レイクタウン8丁目
-
JR武蔵野線越谷レイクタウン
-
-
-

-
- 中古マンション
- 1,999万円
-
越谷市大字大房
-
東武伊勢崎・大師線北越谷
-
-
-

-
- 中古マンション
- 4,899万円
-
戸田市大字新曽
-
JR埼京線戸田
-












