〈HN〉宝マンション金山ウエスト
NEW 01.30掲載情報更新日:2026年01月30日 次回更新予定日:2026年02月13日
- 3,499万円
-
- 借入ご希望金額
万円 - 借入期間
年 - 借入金利
% - 月々のお支払い金額
円
- 借入ご希望金額
※ 月々のお支払例は目安の試算となりますので、実際の金額とは異なる場合がございます。詳しくは店舗までお問合わせください。
- 名古屋市中川区八熊1丁目
-
JR東海道本線『金山』 徒歩10分 (約800m)
〈HN〉宝マンション金山ウエストマンション | 物件情報
物件の設備
- システムキッチン
- ユニットバス
- 温水洗浄便座
- オートロック
- モニタ付インターホン
- LDK15畳以上
- フローリング張替
- バルコニー
- 南面バルコニー
- エレベーター
- 駐輪場
物件の特徴
- 管理人巡回
- 内装リフォーム済
- 角部屋
- ペット相談
物件詳細情報
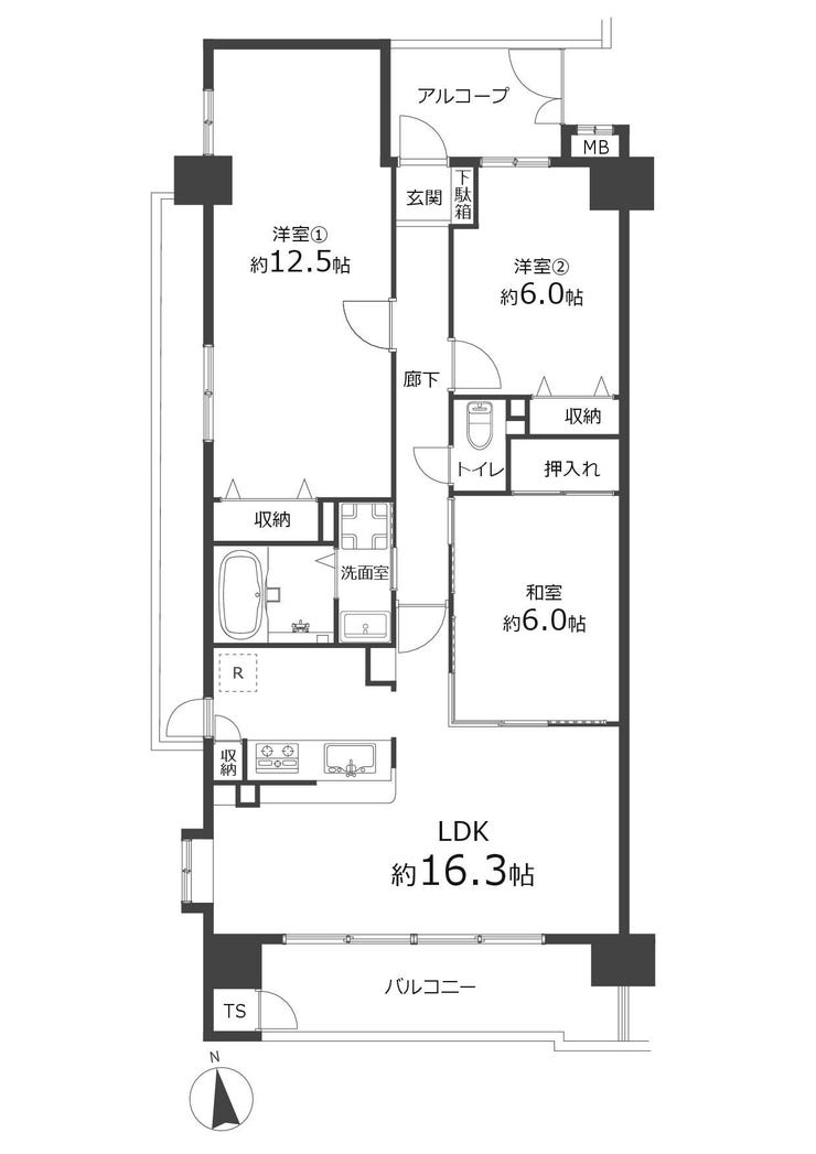
| 価格 | 3,499万円 | 間取り | 3LDK |
|---|---|---|---|
| 物件種別 | 中古マンション | ||
| 所在地 | 愛知県名古屋市中川区八熊1丁目6-16 | ||
| アクセス |
|
||
| 専有面積 | 壁芯 86.10㎡ | 所在階 | 9階建/3階部分 |
| 主要採光 | 南向 | バルコニー | 南向15.65㎡ |
| その他 | |||
| 権利 | 所有権 |
||
| 保証・評価 | |||
| リフォーム | 【水回り】2025年10月 キッチン・浴室・トイレ・洗面 【内装】2025年10月 壁、天井 ・床 畳表替、襖張替、障子張替 |
||
| 総戸数 | 26戸 | 面積 | |
| 築年月 | 2002年(平成14年)06月築 | 建物構造 | RC |
| 施工会社 | |||
| 管理会社 | 宝コミュニティサービス株式会社 | 管理方式 | 全部委託 巡回管理 |
| 駐車場 | 【駐車場】空有 料金:9,000円/月 【駐輪場】空有 |
||
| 都市計画 | 市街化区域 |
用途地域 | 近隣商業 |
| 建ぺい/容積率 | 80% / 300% | 土地国土法 | |
| 法令制限 | 準防火地域・45m高度地区 | ||
| 小学区 | 八熊小学校 徒歩3分 (約200m) | 中学区 | 山王中学校 徒歩17分 (約1300m) |
| 現況 | 空 | 引渡 | 相談 |
| 管理費 | 5,980円/月 | 修繕積立金 | 19,967円/月 |
| その他費用 | その他負担金:150円 アルコープ使用料:月額 150 円 |
||
| 備考 | ※ペット飼育は小鳥、観賞用魚類、飼育承認を受けた動物可能。1 住戸1 頭羽限度。申請書兼誓約書提出要。 ・小動物(リス、ハムスター等成長時の体長15cm 程度。ゲージ飼育) ・犬・猫またはウサギ等(成長時の体長60cm 程度のもの) ※駐輪場:1台分は無料。2 台目以降100 円/ 台 ※初回管理費請求時、顧客情報登録料1,000 円(税抜)必要。 ※2027 年11 月分より修繕積立金が24,160 円に改定予定。 |
||
| 物件番号 | 4577664 | 取引態様 | 媒介 |
取扱店舗情報
| 電話番号 | 0566-70-8335 |
|---|---|
| 所在地 | 〒447-0878 愛知県碧南市松本町36-2 |
| 営業時間 | 9:00~18:00 |
| 定休日 | 水曜日、日曜日、祝日 |
| 宅建免許番号 | 愛知県知事(1)第25578号 |
| アクセス | 店舗への地図はこちら |

来店ご予約
愛知県名古屋市中川区で価格が似ている物件はこちら
- 愛知県
マイページ物件数 - 32,157件
愛知県中古マンション新着物件
-
-

-
- 中古マンション
- 1,900万円
-
一宮市奥町字下口西
-
名鉄尾西線奥町駅
-
-
-

-
- 中古マンション
- 1,900万円
-
一宮市奥町字下口西
-
名鉄尾西線奥町駅
-
-
-

-
- 中古マンション
- 1,090万円
-
知多郡東浦町大字緒川字稗田
-
JR武豊線緒川駅
-
-
-

-
- 中古マンション
- 298万円
-
名古屋市港区港陽3丁目
-
名古屋市名港線築地口駅
-
-
-

-
- 中古マンション
- 1,590万円
-
春日井市出川町7丁目
-
JR中央本線神領駅
-
-
-

-
- 中古マンション
- 498万円
-
名古屋市緑区有松町大字桶狭間字生山
-
名鉄名古屋本線有松駅
-
-
-

-
- 中古マンション
- 1,680万円
-
豊田市田中町4丁目
-
名鉄豊田線豊田市駅
-
- お近くの店舗を探す
-
おすすめ物件
-
-

-
- 中古マンション
- 1,980万円
-
小牧市堀の内4丁目
-
名鉄小牧線小牧
-
-
-

-
- 中古マンション
- 2,490万円
-
名古屋市熱田区三本松町
-
JR東海道本線熱田
-
-
-

-
- 中古マンション
- 1,990万円
-
小牧市篠岡1丁目
-
JR中央本線春日井
-
-
-

-
- 中古マンション
- 3,390万円
-
瀬戸市東横山町
-
名鉄瀬戸線新瀬戸
-
-
-

-
- 中古マンション
- 2,280万円
-
北名古屋市九之坪東ノ川
-
名鉄犬山線上小田井
-
-
-

-
- 中古マンション
- 2,199万円
-
名古屋市港区須成町3丁目
-
名古屋臨海高速鉄道港北
-
-
-

-
- 中古マンション
- 2,480万円
-
岩倉市下本町下寺廻
-
名鉄犬山線岩倉
-
-
-

-
- 中古マンション
- 1,398万円
-
名古屋市千種区東山元町2丁目
-
名古屋市東山線東山公園
-
-
-

-
- 中古マンション
- 1,120万円
-
名古屋市南区弥生町
-
名古屋市桜通線鶴里
-
-
-

-
- 中古マンション
- 1,380万円
-
名古屋市守山区御膳洞
-
名鉄瀬戸線大森・金城学院前
-
















