ネオコーポ西大島II 江東区大島2丁目の中古マンション
掲載情報更新日:2026年04月10日 次回更新予定日:2026年04月24日
- 4,290万円
-
- 借入ご希望金額
万円 - 借入期間
年 - 借入金利
% - 月々のお支払い金額
円
- 借入ご希望金額
※ 月々のお支払例は目安の試算となりますので、実際の金額とは異なる場合がございます。詳しくは店舗までお問合わせください。
- 江東区大島2丁目
-
都営新宿線『西大島』 徒歩7分 (約560m)
江東区大島2丁目マンション | 物件情報
物件の設備
- 都市ガス
- 給湯
- 浄水器
- システムキッチン
- ユニットバス
- 浴室乾燥機
- 室内洗濯機置場
- 洗面所独立
- CATV
- モニタ付インターホン
- 防犯カメラ
- フローリング張替
- クローゼット
- ウォークインクローゼット
- 玄関収納
- シューズボックス
- バルコニー
- 南面バルコニー
- エレベーター
- 駐輪場
- バイク置場
物件の特徴
- 管理人巡回
- 内装リフォーム済
- 最上階
- ペット相談
物件詳細情報
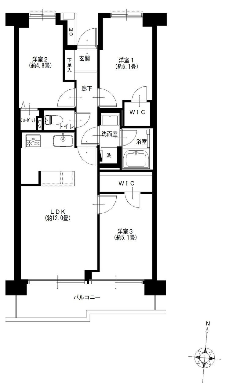
| 価格 | 4,290万円 | 間取り | 3LDK |
|---|---|---|---|
| 物件種別 | 中古マンション | ||
| 所在地 | 東京都江東区大島2丁目 | ||
| アクセス |
|
||
| 専有面積 | 壁芯 58.99㎡ | 所在階 | 5階建/5階部分 |
| 主要採光 | 南向 | バルコニー | 南向7.59㎡ |
| その他 | |||
| 権利 | 所有権(一部旧法賃借権) |
||
| 保証・評価 | |||
| リフォーム | 【水回り】2026年01月 キッチン・浴室・トイレ・洗面・給湯器 洗濯水栓器具交換、防水パン交換 【内装】2026年01月 壁、天井 ・床 ・全室クロス ・建具 下足入れ交換、スイッチパネル設置、ダウンライト設置、照明器具設置 |
||
| 総戸数 | 57戸 | 面積 | |
| 築年月 | 1984年(昭和59年)11月築 | 建物構造 | RC |
| 施工会社 | |||
| 管理会社 | 大和ライフネクスト株式会社 | 管理方式 | 全部委託 巡回管理 |
| 駐車場 | 【駐車場】空無 【バイク置き場】空無 料金:300円/月 【駐輪場】あり 料金: 300円/月 |
||
| 都市計画 | 用途地域 | ||
| 建ぺい/容積率 | 土地国土法 | ||
| 法令制限 | |||
| 小学区 | 第二大島小学校 徒歩9分 (約685m) | 中学区 | 第三亀戸中学校 徒歩5分 (約330m) |
| 現況 | 空 | 引渡 | 相談 |
| 管理費 | 12,620円/月 | 修繕積立金 | 14,570円/月 |
| その他費用 | CATV:300円/月 |
||
| 備考 | |||
| 物件番号 | 4582147 | 取引態様 | 媒介 |
取扱店舗情報
| 電話番号 | 03-3699-6100 |
|---|---|
| 所在地 | 〒135-0013 東京都江東区千田15-7 |
| 営業時間 | 10:00~18:00 |
| 定休日 | 水曜日 |
| 宅建免許番号 | 東京都知事(6)第74879号 |
| アクセス | 店舗への地図はこちら |

来店ご予約
東京都江東区で価格が似ている物件はこちら
- 東京都
マイページ物件数 - 5,747件
最近見た物件
-
-

-
- 中古マンション
- 3,990万円
-
岡山市北区表町2丁目
-
岡山電軌東山本線県庁通り
-
-
-

-
- 土地
- 1,057万円
-
西条市喜多川
-
JR予讃線伊予西条
-
-
-

-
- 中古マンション
- 3,887万円
-
広島市中区羽衣町
-
広島電鉄宇品線日赤病院前
-
東京都中古マンション新着物件
- お近くの店舗を探す
-
おすすめ物件
-
-

-
- 中古マンション
- 1,250万円
-
練馬区関町北2丁目
-
西武新宿線武蔵関
-
-
-

-
- 中古マンション
- 3,680万円
-
葛飾区亀有2丁目
-
JR千代田・常磐緩行線亀有
-
-
-

-
- 中古マンション
- 2,580万円
-
葛飾区東堀切2丁目
-
京成本線お花茶屋
-
-
-

-
- 中古マンション
- 5,298万円
-
練馬区関町南2丁目
-
西武新宿線武蔵関
-
-
-

-
- 中古マンション
- 1億3,450万円
-
世田谷区松原3丁目
-
京王線下高井戸
-
-
-

-
- 中古マンション
- 3,680万円
-
千葉市中央区千葉港
-
千葉都市モノレール市役所前
-
-
-

-
- 中古マンション
- 7,499万円
-
大田区大森西5丁目
-
京急本線大森町
-
-
-

-
- 中古マンション
- 2,580万円
-
青梅市新町3丁目
-
JR青梅線小作
-
-
-

-
- 中古マンション
- 3,999万円
-
練馬区上石神井3丁目
-
西武新宿線上石神井
-
-
-

-
- 中古マンション
- 3,280万円
-
足立区西新井4丁目
-
日暮里舎人ライナー谷在家
-








