ライオンズガーデン枚方藤坂 枚方市藤阪北町の中古マンション
掲載情報更新日:2026年04月09日 次回更新予定日:2026年04月23日
- 3,280万円
-
- 借入ご希望金額
万円 - 借入期間
年 - 借入金利
% - 月々のお支払い金額
円
- 借入ご希望金額
※ 月々のお支払例は目安の試算となりますので、実際の金額とは異なる場合がございます。詳しくは店舗までお問合わせください。
- 枚方市藤阪北町
-
JR片町線『藤阪』 徒歩13分 (約1040m)
JR片町線『長尾』 徒歩14分 (約1120m)
枚方市藤阪北町マンション | 物件情報
風が抜け、光が満ちる。2面バルコニーの角部屋フルリノベーションの住まい。
◇─◇─◇─◇担当者着目ポイント◇─◇─◇─◇
◆角部屋×2面バルコニーのフルリノベーション空間
◆全室洋室で心地よく、収納完備の住まい
◆ペットと暮らせる安心住戸
JR学研都市線「長尾」駅徒歩17分
菅原小学校徒歩9分
長尾中学校徒歩25分
◇─◇─◇─◇周辺環境◇─◇─◇─◇
・業務スーパー TAKENOKO 長尾店 徒歩9分(約650m)
・ファミリーマート 枚方長尾谷町店 徒歩1分(約50m)
・スーパーフレスコ 藤阪店 徒歩8分(約550m)
・フレッシュバザール 枚方山田池店 徒歩13分(約950m)
物件の設備
- 公営水道
- 下水道
- 都市ガス
- 食器乾燥機
- コンロ三口
- システムキッチン
- オートバス
- ジェットバス
- 追焚機能
- 浴室乾燥機
- シャワー
- トイレ
- 温水洗浄便座
- B/T別室
- 室内洗濯機置場
- 洗髪洗面化粧台
- 家具付
- ディンプルキー
- オートロック
- モニタ付オートロック
- 防犯カメラ
- LDK15畳以上
- フローリング張替
- クローゼット
- 全居室収納
- バルコニー
- 2面バルコニー
- 宅配BOX
- エレベーター
物件の特徴
- 管理人日勤
- リノベーション
- 内装リフォーム済
- 角部屋
- 緑豊かな住宅地
- スーパーが近い
- 閑静な住宅街
- 周辺交通量少なめ
- 市街地が近い
- 都市近郊
- 眺望良好
- 通風良好
- 陽当り良好
- ペット相談
物件詳細情報
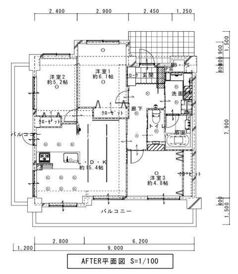
| 価格 | 3,280万円 | 間取り | 3LDK |
|---|---|---|---|
| 物件種別 | 中古マンション | ||
| 所在地 | 大阪府枚方市藤阪北町21-1 | ||
| アクセス |
|
||
| 専有面積 | 壁芯 72.85㎡ | 所在階 | 10階建/5階部分 |
| 主要採光 | 西向 | バルコニー | 北西向21.86㎡ |
| その他 | |||
| 権利 | 所有権 |
||
| 保証・評価 | |||
| リフォーム | 【水回り】2026年03月 キッチン・浴室・トイレ・洗面 【内装】2026年03月 全面 ・壁、天井 ・床 ・全室クロス ・建具 ・サッシ 【その他】2026年03月 床張替・クロス張替・幅木張替・スイッチ・コンセント新調・建具入替・水回り入替・クローゼット新調・窓枠ダイノックシート他 |
||
| 総戸数 | 112戸 | 面積 | |
| 築年月 | 2001年(平成13年)08月築 | 建物構造 | RC |
| 施工会社 | |||
| 管理会社 | 管理方式 | 全部委託 日勤管理 | |
| 駐車場 | |||
| 都市計画 | 市街化区域 |
用途地域 | 1種中高 |
| 建ぺい/容積率 | 60% / 200% | 土地国土法 | |
| 法令制限 | |||
| 小学区 | 菅原小学校 徒歩6分 (約450m) | 中学区 | 長尾西中学校 徒歩14分 (約1100m) |
| 現況 | 空 | 引渡 | 相談 |
| 管理費 | 11,700円/月 | 修繕積立金 | 8,520円/月 |
| その他費用 | |||
| 備考 | |||
| 物件番号 | 4585754 | 取引態様 | 媒介 |
取扱店舗情報
ハウスドゥ 枚方中宮 株式会社ku-Design 店舗詳細ページへ
| 電話番号 | 072-845-5585 |
|---|---|
| 所在地 | 〒573-1196 大阪府枚方市中宮本町11-12 |
| 営業時間 | 9:30~18:00 |
| 定休日 | 火曜日・水曜日 ※事前予約によりご対応可能 |
| 宅建免許番号 | 大阪府知事(1)第63778号 |
| アクセス | 店舗への地図はこちら |

来店ご予約
大阪府枚方市で価格が似ている物件はこちら
- 大阪府
マイページ物件数 - 18,247件
大阪府中古マンション新着物件
-
-

-
- 中古マンション
- 2,080万円
-
大阪市住吉区南住吉3丁目
-
南海電鉄高野線沢ノ町駅
-
-
-

-
- 中古マンション
- 2,288万円
-
大阪市城東区成育2丁目
-
京阪本線野江駅
-
-
-

-
- 中古マンション
- 4,480万円
-
大阪市城東区今福西6丁目
-
大阪市今里筋線蒲生四丁目駅
-
-
-

-
- 中古マンション
- 2,490万円
-
東大阪市出雲井本町
-
近鉄難波・奈良線枚岡駅
-
-
-

-
- 中古マンション
- 2,590万円
-
門真市大橋町
-
京阪本線大和田駅
-
-
-

-
- 中古マンション
- 2,499万円
-
八尾市若林町1丁目
-
大阪市谷町線八尾南駅
-
-
-

-
- 中古マンション
- 4,980万円
-
池田市天神1丁目
-
阪急電鉄宝塚線石橋阪大前駅
-
- お近くの店舗を探す
-
おすすめ物件
-
-

-
- 中古マンション
- 3,180万円
-
大阪市淀川区西宮原1丁目
-
大阪市御堂筋線新大阪
-
-
-

-
- 中古マンション
- 2,890万円
-
吹田市末広町
-
JR東海道線吹田
-
-
-

-
- 中古マンション
- 580万円
-
貝塚市堀3丁目
-
南海電鉄本線貝塚
-
-
-

-
- 中古マンション
- 2,490万円
-
吹田市千里山松が丘
-
阪急電鉄千里線千里山
-
-
-

-
- 中古マンション
- 950万円
-
貝塚市半田2丁目
-
JR阪和線東貝塚
-
-
-

-
- 中古マンション
- 4,199万円
-
茨木市美穂ケ丘
-
大阪モノレール彩都阪大病院前
-
-
-

-
- 中古マンション
- 2,180万円
-
摂津市南千里丘
-
阪急電鉄京都線摂津市
-
-
-

-
- 中古マンション
- 5,280万円
-
吹田市春日1丁目
-
北大阪急行南北線緑地公園
-
-
-

-
- 中古マンション
- 1,180万円
-
泉大津市尾井千原町
-
南海電鉄本線北助松
-
-
-

-
- 中古マンション
- 4,580万円
-
茨木市上穂積1丁目
-
JR東海道線茨木
-

















フルリノベーションによって新たな価値をまとった本物件は、住まいに「明るさ」「開放感」「快適性」を求める方にこそ選んでいただきたい一室です。最大の魅力は、角部屋ならではの独立性と、2面に広がるバルコニーがもたらす圧倒的な採光と通風。朝は柔らかな光が差し込み、日中は爽やかな風が室内を抜け、夜には外の景色を眺めながらゆったりと過ごせる──そんな心地よい暮らしが日常になります。
室内はフルリノベならではの上質な仕上がりで、設備・内装ともに新築同様の美しさと機能性を実現。無駄のない動線設計や、洗練された素材選びが、住む人のライフスタイルを自然と引き立てます。収納力や使い勝手にもこだわり、見た目だけでなく“暮らしやすさ”をしっかりと追求しています。
角部屋・2面バルコニー・フルリノベという三拍子が揃った希少性の高い住戸。毎日の暮らしをワンランク上へ導く、特別な住まいをぜひ体感してください。
【当日予約も大歓迎】弊社は毎日新物件の情報を入荷しています。 水面下物件も多数!いつ来ても新情報がいっぱいです! 是非『0120-395-585』までお問合せ下さい!