シャルム北越谷B棟 越谷市大字大房の中古マンション
NEW 02.06掲載情報更新日:2026年02月06日 次回更新予定日:2026年02月20日
- 2,698万円
-
- 借入ご希望金額
万円 - 借入期間
年 - 借入金利
% - 月々のお支払い金額
円
- 借入ご希望金額
※ 月々のお支払例は目安の試算となりますので、実際の金額とは異なる場合がございます。詳しくは店舗までお問合わせください。
- 越谷市大字大房
-
東武伊勢崎・大師線『北越谷』 徒歩10分 (約800m)
東武伊勢崎・大師線『大袋』 徒歩27分 (約2100m)
東武伊勢崎・大師線『越谷』 徒歩32分 (約2560m)
越谷市大字大房マンション | 物件情報
新規リフォーム物件!南東向き日当たり良好!生活必需施設徒歩圏内!ペット飼育可能!
■東武スカイツリーライン始発駅【北越谷駅】徒歩10分なので、通勤・通学にも最適です♪
■スーパー『ビッグエー』徒歩5分、ドラッグストア『ウエルシア』徒歩5分など生活必需施設が徒歩圏内に揃い、毎日の暮らしが快適。
■お子様の通学も安心!小学校徒歩7分♪中学校徒歩8分♪
■家族の絆が深まる対面キッチン♪
■総戸数125戸と総戸数も多いマンションです!
■地上10階建てのSRC造・昭和54年5月築!
■ペット飼育可能(細則有)な物件ですので、、ワンちゃんや猫ちゃんと一緒に暮らすことができます♪
■南東向きにつき日当たり良好!
物件の設備
- 公営水道
- 公共下水
- 都市ガス
- 給湯
- コンロ三口
- グリル
- ガスコンロ付
- システムキッチン
- バス
- ユニットバス
- オートバス
- シャワー
- トイレ
- 温水洗浄便座
- 室内洗濯機置場
- 洗面所独立
- ディンプルキー
- モニタ付インターホン
- 火災警報器/報知機
- LDK18畳以上
- フローリング張替
- クローゼット3箇所
- 全居室収納
- バルコニー
- エレベーター
物件の特徴
- 管理人日勤
- 内装リフォーム済
- 内装リフォーム後渡
- 始発駅
- 駅まで平坦
- 小学校徒歩10分以内
- スーパーが近い
- 閑静な住宅街
- 通風良好
- 陽当り良好
- ペット相談
- ペット対応
物件詳細情報
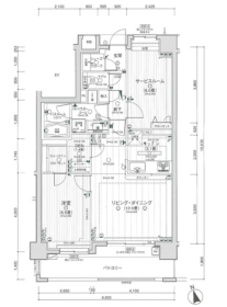
| 価格 | 2,698万円 | 間取り | 3LDK |
|---|---|---|---|
| 物件種別 | 中古マンション | ||
| 所在地 | 埼玉県越谷市大字大房 | ||
| アクセス |
|
||
| 専有面積 | 壁芯 79.82㎡ | 所在階 | 10階建/8階部分 |
| 主要採光 | 南東向 | バルコニー | 南東向11.34㎡ |
| その他 | |||
| 権利 | 所有権 |
||
| 保証・評価 | |||
| リフォーム | 【水回り】2026年02月 キッチン・浴室・トイレ・洗面 ◆キッチン新規交換◆ユニットバス新規交換◆トイレ新規交換◆洗面化粧台新規交換 【内装】2026年02月 床 ・全室クロス ・建具 ◆床材上張◆クロス全室貼替◆建具新規交換 【その他】2026年02月 ◆スイッチ交換◆その他 |
||
| 総戸数 | 242戸 | 面積 | |
| 築年月 | 1979年(昭和54年)05月築 | 建物構造 | SRC |
| 施工会社 | 長谷川工務店 | ||
| 管理会社 | 管理方式 | 全部委託 日勤管理 | |
| 駐車場 | 【駐車場】空無 |
||
| 都市計画 | 用途地域 | ||
| 建ぺい/容積率 | 土地国土法 | ||
| 法令制限 | |||
| 小学区 | 鷺後小学校 徒歩7分 (約550m) | 中学区 | 栄進中学校 徒歩9分 (約690m) |
| 現況 | 空 | 引渡 | 相談 |
| 管理費 | 8,000円/月 | 修繕積立金 | 13,210円/月 |
| その他費用 | |||
| 周辺環境 | 大沢第一保育所 徒歩12分 (約900m) 越谷市立栄進中学校 徒歩8分 (約600m) おおさとファミリークリニック 徒歩16分 (約1260m) カラオケBanBan 越谷大里店 徒歩17分 (約1330m) ステップゲオ 越谷店 徒歩17分 (約1360m) ジーユー(GU)越谷店 徒歩19分 (約1480m) セイムス 越谷大里薬局 徒歩17分 (約1320m) セイムス 越谷大里店 徒歩20分 (約1540m) ロピア 越谷大里店 徒歩22分 (約1750m) |
||
| 備考 | ※図面と現況が相違する場合は現況を優先致します。 | ||
| 物件番号 | 4586667 | 取引態様 | 媒介 |
取扱店舗情報
ハウスドゥ 蒲生駅前 株式会社アイホームコンサルティング 店舗詳細ページへ
| 電話番号 | 048-919-2980 |
|---|---|
| 所在地 | 〒343-0843 埼玉県越谷市蒲生茜町19-1 井上ビル1F |
| 営業時間 | 9:00~18:00 |
| 定休日 | 火曜日、水曜日、年末年始 |
| 宅建免許番号 | 埼玉県知事(3)第22227号 |
| アクセス | 店舗への地図はこちら |

来店ご予約
埼玉県越谷市で価格が似ている物件はこちら
- 埼玉県
マイページ物件数 - 3,236件
埼玉県中古マンション新着物件
- お近くの店舗を探す
-
おすすめ物件
-
-

-
- 中古マンション
- 4,250万円
-
草加市金明町
-
東武伊勢崎・大師線新田
-
-
-

-
- 中古マンション
- 2,680万円
-
越谷市宮本町1丁目
-
東武伊勢崎・大師線越谷
-
-
-

-
- 中古マンション
- 2,890万円
-
さいたま市北区櫛引町2丁目
-
埼玉新都市交通鉄道博物館(大成)
-
-
-

-
- 中古マンション
- 1,990万円
-
越谷市千間台西1丁目
-
東武伊勢崎・大師線せんげん台
-
-
-

-
- 中古マンション
- 2,180万円
-
川口市末広1丁目
-
埼玉高速鉄道川口元郷
-
-
-

-
- 中古マンション
- 4,180万円
-
戸田市新曽南3丁目
-
JR埼京線戸田公園
-
-
-

-
- 中古マンション
- 1,200万円
-
川口市元郷1丁目
-
埼玉高速鉄道川口元郷
-
-
-

-
- 中古マンション
- 2,990万円
-
越谷市北越谷2丁目
-
東武伊勢崎・大師線北越谷
-
-
-

-
- 中古マンション
- 2,090万円
-
入間市東藤沢1丁目
-
西武池袋・豊島線武蔵藤沢
-
-
-

-
- 中古マンション
- 3,090万円
-
川口市本町2丁目
-
JR京浜東北・根岸線川口
-











担当エージェント:井上 嵩久
弊社は一人一人のお客様の幸せを第一に、少しでもお力になれるよう住宅に関するご質問、
住宅以外の資金面、諸費用に関するお悩みなど、ご一緒に考えていきたいと思っております。
お気軽にご相談ください!