日神パレステージ鳩ヶ谷 川口市鳩ヶ谷本町4丁目の中古マンション
掲載情報更新日:2026年04月27日 次回更新予定日:2026年05月11日
- 3,280万円
-
- 借入ご希望金額
万円 - 借入期間
年 - 借入金利
% - 月々のお支払い金額
円
- 借入ご希望金額
※ 月々のお支払例は目安の試算となりますので、実際の金額とは異なる場合がございます。詳しくは店舗までお問合わせください。
- 川口市鳩ヶ谷本町4丁目
-
埼玉高速鉄道『鳩ヶ谷』 徒歩8分 (約640m)
埼玉高速鉄道『新井宿』 徒歩19分 (約1520m)
埼玉高速鉄道『南鳩ヶ谷』 徒歩23分 (約1840m)
川口市鳩ヶ谷本町4丁目マンション | 物件情報
人気エリアに売マンションが登場!6階建ての2階部分、サービスルーム付き1LDK☆買い物に便利な立地
人気エリアに売マンションが登場です!
◆6階建ての2階部分☆
◆鳩ヶ谷駅より徒歩8分、住環境良好
物件の設備
- 公営水道
- 下水道
- 都市ガス
- 給湯
- オートロック
- モニタ付インターホン
- 防犯カメラ
- 火災警報器/報知機
- エレベーター
物件の特徴
- 管理人日勤
物件詳細情報
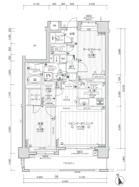
| 価格 | 3,280万円 | 間取り | 1LDK+S |
|---|---|---|---|
| 物件種別 | 中古マンション | ||
| 所在地 | 埼玉県川口市鳩ヶ谷本町4丁目 | ||
| アクセス |
|
||
| 専有面積 | 壁芯 64.27㎡ | 所在階 | 6階建/2階部分 |
| 主要採光 | バルコニー | ||
| その他 | |||
| 権利 | 所有権 |
||
| 保証・評価 | |||
| リフォーム | |||
| 総戸数 | 33戸 | 面積 | |
| 築年月 | 2008年(平成20年)06月築 | 建物構造 | RC |
| 施工会社 | |||
| 管理会社 | 管理方式 | 全部委託 日勤管理 | |
| 駐車場 | |||
| 都市計画 | 市街化区域 |
用途地域 | 1種住居 |
| 建ぺい/容積率 | 60% / 200% | 土地国土法 | |
| 法令制限 | |||
| 小学区 | 鳩ヶ谷小学校 徒歩7分 (約550m) | 中学区 | 鳩ヶ谷中学校 徒歩5分 (約400m) |
| 現況 | 空 | 引渡 | 相談 |
| 管理費 | 12,500円/月 | 修繕積立金 | 23,390円/月 |
| その他費用 | |||
| 周辺環境 | 西友 鳩ヶ谷店 徒歩4分 (約270m) セブンイレブン 川口坂下2丁目店 徒歩3分 (約210m) きらぼし銀行 鳩ヶ谷支店 徒歩4分 (約260m) ドラッグストアセキ 鳩ヶ谷店 徒歩7分 (約510m) 正光寺保育園 鳩ヶ谷園 徒歩5分 (約370m) 鳩ヶ谷本町郵便局 徒歩6分 (約410m) 川口市立鳩ケ谷中学校 徒歩6分 (約430m) 須田医院 徒歩7分 (約560m) 川口市立鳩ヶ谷小学校 徒歩7分 (約510m) 川口市役所 鳩ヶ谷支所 徒歩10分 (約740m) |
||
| 備考 | |||
| 物件番号 | 4595551 | 取引態様 | 媒介 |
取扱店舗情報
ハウスドゥ 鳩ヶ谷坂下町 株式会社ウェルカムホーム 店舗詳細ページへ
| 電話番号 | 048-242-5180 |
|---|---|
| 所在地 | 〒334-0003 埼玉県川口市坂下町3丁目32-21 |
| 営業時間 | 9:00~18:00 |
| 定休日 | 火曜日、水曜日、年末年始 |
| 宅建免許番号 | 埼玉県知事(1)第25389号 |
| アクセス | 店舗への地図はこちら |

来店ご予約
埼玉県川口市で価格が似ている物件はこちら
- 埼玉県
マイページ物件数 - 3,228件
最近見た物件
埼玉県中古マンション新着物件
- お近くの店舗を探す
-
おすすめ物件
-
-

-
- 中古マンション
- 4,190万円
-
草加市金明町
-
東武伊勢崎・大師線新田
-
-
-

-
- 中古マンション
- 4,790万円
-
さいたま市北区土呂町1丁目
-
湘南新宿ライン宇須土呂
-
-
-

-
- 中古マンション
- 5,180万円
-
越谷市レイクタウン8丁目
-
JR武蔵野線越谷レイクタウン
-
-
-

-
- 中古マンション
- 5,380万円
-
戸田市南町
-
JR埼京線戸田公園
-
-
-

-
- 中古マンション
- 2,480万円
-
三郷市早稲田5丁目
-
JR武蔵野線三郷
-
-
-

-
- 中古マンション
- 2,980万円
-
戸田市大字新曽
-
JR埼京線戸田
-
-
-

-
- 中古マンション
- 1,099万円
-
さいたま市見沼区大字大谷
-
東武野田線七里
-
-
-

-
- 中古マンション
- 2,590万円
-
蕨市南町4丁目
-
JR京浜東北・根岸線西川口
-
-
-

-
- 中古マンション
- 5,699万円
-
戸田市川岸2丁目
-
JR埼京線戸田公園
-
-
-

-
- 中古マンション
- 2,040万円
-
吉川市木売2丁目
-
JR武蔵野線吉川
-












担当エージェント:富重 隆文
お客様に「寄り添う」会社です。不動産の購入は金額も大きく、不安なことがたくさんあると思います。ぜひ、一度ご連絡ください。不動産に関するプロとして、お客様の課題に一つ一つ向き合っていきます。