レクセルときわ台 板橋区前野町2丁目の中古マンション
NEW 02.12掲載情報更新日:2026年02月12日 次回更新予定日:2026年02月26日
- 7,199万円
-
- 借入ご希望金額
万円 - 借入期間
年 - 借入金利
% - 月々のお支払い金額
円
- 借入ご希望金額
※ 月々のお支払例は目安の試算となりますので、実際の金額とは異なる場合がございます。詳しくは店舗までお問合わせください。
- 板橋区前野町2丁目
-
東武東上線『ときわ台』 徒歩7分 (約560m)
東武東上線『中板橋』 徒歩20分 (約1600m)
都営三田線『本蓮沼』 徒歩21分 (約1680m)
板橋区前野町2丁目マンション | 物件情報
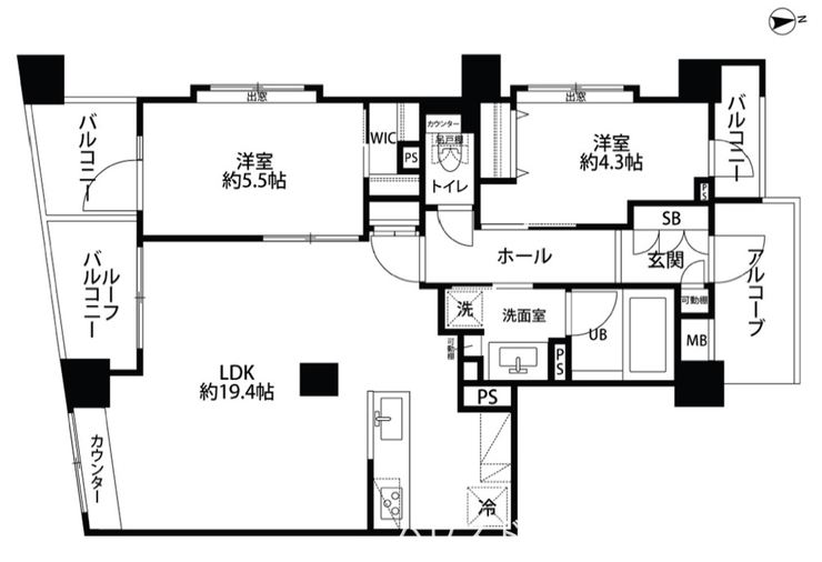
南・西向きの角部屋の、専有面積64平米超の2LDK。大切なペットと一緒に暮らせる点も嬉しいポイント。
【立地】
■東武東上線「ときわ台」駅 徒歩7分
【おすすめポイント】
■南・西向きの角部屋で、陽当たりや通風に恵まれた住環境です。各居室には出窓があり、採光面もしっかり確保されています。
■令和8年2月にリフォーム完了。浴室、トイレ、キッチン、洗面台の交換からエコカラット施工まで幅広く一新しました。
■約19.4帖の広々としたLDKは、家具を置いてもゆとりがあります。二重床・二重天井の構造で、静かな暮らしを守ります。
■大切なペットと一緒に暮らせるマンションです(飼育細則あり)。共用部は24時間ゴミ出しに対応しており便利です。
■ウォークインクローゼットや各所の収納が充実しており、お荷物が多いご家庭でもお部屋をすっきりと保てます。
【リフォーム工事完了】2026年2月完了
■浴室交換■トイレ交換■キッチン交換
■洗面設備交換■防水パン交換
■フローリング張り替え■壁紙貼り替え
■建具交換■エコカラット施工 etc
物件の設備
- 公営水道
- 公共下水
- 都市ガス
- システムキッチン
- ユニットバス
- 浴室乾燥機
- 温水洗浄便座
- 室内洗濯機置場
- 洗面所独立
- モニタ付オートロック
- 防犯カメラ
- LDK18畳以上
- 出窓
- フローリング
- 全室フローリング
- フローリング張替
- ウォークインクローゼット
- 玄関収納
- 収納スペース
- 全居室収納
- バルコニー
- 2面バルコニー
- ルーフバルコニー
- 南面バルコニー
- 平面駐車場
- 宅配BOX
- エレベーター
- アルコーブ
物件の特徴
- 管理人巡回
- 内装リフォーム済
- 角部屋
- 南東角部屋
- 駅まで平坦
- 小学校徒歩10分以内
- 外観タイル張
- 24時間ゴミ出可
- ペット相談
- ペット対応
物件詳細情報
| 価格 | 7,199万円 | 間取り | 2LDK |
|---|---|---|---|
| 物件種別 | 中古マンション | ||
| 所在地 | 東京都板橋区前野町2丁目 | ||
| アクセス |
|
||
| 専有面積 | 壁芯 64.93㎡ | 所在階 | 8階建/7階部分 |
| 主要採光 | 南向 | バルコニー | 南向3.39㎡ |
| その他 | 3.90㎡ | ||
| 権利 | 所有権 |
||
| 保証・評価 | |||
| リフォーム | 【水回り】2026年02月 キッチン・浴室・トイレ・洗面 ■浴室交換■トイレ交換■キッチン交換■洗面設備交換■防水パン交換 【内装】2026年02月 床 ・全室クロス ・建具 ■フローリング張り替え■壁紙貼り替え■建具交換■エコカラット施工 etc |
||
| 総戸数 | 29戸 | 面積 | |
| 築年月 | 2008年(平成20年)08月築 | 建物構造 | RC |
| 施工会社 | 大末建設株式会社 | ||
| 管理会社 | (株)大京アステージ | 管理方式 | 全部委託 巡回管理 管理組合あり |
| 駐車場 | |||
| 都市計画 | 用途地域 | 近隣商業(一部工業 含む) | |
| 建ぺい/容積率 | 土地国土法 | ||
| 法令制限 | |||
| 小学区 | 前野小学校 徒歩9分 (約700m) | 中学区 | 志村第一中学校 徒歩12分 (約900m) |
| 現況 | 空 | 引渡 | 相談 |
| 管理費 | 18,800円/月 | 修繕積立金 | 22,400円/月 |
| その他費用 | |||
| 周辺環境 | 東武東上線 ときわ台駅 北口 徒歩8分 (約580m) 板橋区立前野小学校 徒歩10分 (約800m) 板橋区立志村第一中学校 徒歩16分 (約1240m) まいばすけっと 板橋常盤台2丁目店 徒歩1分 (約80m) 板橋常盤台郵便局 徒歩2分 (約120m) 常盤台外科病院 徒歩2分 (約140m) セブン-イレブン 板橋前野町1丁目店 徒歩3分 (約190m) カリーノときわ台 徒歩5分 (約340m) 八百清ストアー 徒歩5分 (約340m) 板橋区立南前野児童館 徒歩7分 (約530m) |
||
| 備考 | ■所在地/東京都板橋区前野町2-3-1 ■交通/東武東上線「ときわ台」駅徒歩7分 ■権利形態/所有権 ■用途地域/近隣商業地域・工業地域 ■土地面積/596.33㎡(6,493/149,168) ■専有面積/64.93㎡(約19.64坪) ■バルコニー(南)/3.39㎡ ■ルーフバルコニー(南)/3.9㎡ ■間取り/2LDK ■建築年月日/2008年8月新築 ■構造/鉄筋コンクリート造8階建 ■総戸数/29戸 ■分譲会社/扶桑レクセル(株) ■施工会社/大末建設(株) ■管理会社/(株)大京アステージ ■管理形態/全部委託 ■管理員/清掃員のみ ■管理費(月額)/18,800円 ■修繕積立金(月額)/22,400円 ■現況/空室 ■引渡/残代金決済後即可 ■駐車場/空あり(月額25,000円) ■駐輪場/空あり(月額0円~400円) ■バイク置場/空なし(月額500円) |
||
| 物件番号 | 4595965 | 取引態様 | 媒介 |
取扱店舗情報
ハウスドゥ ときわ台駅南口 アジアスケープ株式会社 店舗詳細ページへ
| 電話番号 | 03-5926-3188 |
|---|---|
| 所在地 | 〒174-0072 東京都板橋区南常盤台2丁目1-1 常南ビル4F |
| 営業時間 | 10:00~18:30 |
| 定休日 | 火曜日、水曜日 |
| 宅建免許番号 | 東京都知事(1)第106121号 |
| アクセス | 店舗への地図はこちら |

来店ご予約
- 東京都
マイページ物件数 - 5,170件
最近見た物件
東京都中古マンション新着物件
- お近くの店舗を探す
-
おすすめ物件
-
-

-
- 中古マンション
- 3,080万円
-
足立区花畑5丁目
-
東武伊勢崎・大師線谷塚
-
-
-

-
- 中古マンション
- 3,680万円
-
千葉市中央区千葉港
-
千葉都市モノレール市役所前
-
-
-

-
- 中古マンション
- 9,399万円
-
世田谷区上北沢5丁目
-
京王線八幡山
-
-
-

-
- 中古マンション
- 4,080万円
-
葛飾区東金町6丁目
-
JR千代田・常磐緩行線金町
-
-
-

-
- 中古マンション
- 2,780万円
-
青梅市新町3丁目
-
JR青梅線小作
-
-
-

-
- 中古マンション
- 6,780万円
-
練馬区立野町
-
西武新宿線武蔵関
-
-
-

-
- 中古マンション
- 5,580万円
-
西東京市谷戸町2丁目
-
西武池袋・豊島線ひばりケ丘
-
-
-

-
- 中古マンション
- 2,280万円
-
葛飾区南水元1丁目
-
JR千代田・常磐緩行線金町
-
-
-

-
- 中古マンション
- 7,990万円
-
台東区三ノ輪1丁目
-
東京メトロ日比谷線三ノ輪
-
-
-

-
- 中古マンション
- 3,480万円
-
葛飾区金町5丁目
-
JR千代田・常磐緩行線金町
-




























