ユーハウス幸田 額田郡幸田町大字菱池字内池の中古マンション
NEW 02.13掲載情報更新日:2026年02月13日 次回更新予定日:2026年02月27日
- 1,490万円
-
- 借入ご希望金額
万円 - 借入期間
年 - 借入金利
% - 月々のお支払い金額
円
- 借入ご希望金額
※ 月々のお支払例は目安の試算となりますので、実際の金額とは異なる場合がございます。詳しくは店舗までお問合わせください。
- 額田郡幸田町大字菱池字内池
-
JR東海道本線『幸田』 徒歩11分 (約880m)
JR東海道本線『相見』 車7分(約3.2km)
JR東海道本線『岡崎』 車17分(約8.0km)
額田郡幸田町大字菱池字内池マンション | 物件情報
【即見学可!リフォーム済】月4万台◇中央小・幸田中◇駐車場有◇キャンペーン
☆★ハウスドゥ幸田限定プレゼント★☆
全部屋天井照明(シーリングライト)またはギフト券3万円分プレゼント!
2026/3/31までにご成約のお客様限定!
★イチオシポイント★
◎【令和7年11月完工】リフォーム済みのお部屋です♪
◎敷地内駐車場有!
◎前面棟なしの南向きバルコニーで日当たり良好です♪
【返済例】
月々40,346円
1490万円借入、変動金利0.75%、35年、ボーナス払い0円。別途諸費用。
月々のお支払いはボーナス有無や、ご返済年数など様々なプランをご相談できます!
【学校】
◎中央小学校 徒歩約18分
◎幸田中学校 徒歩約7分
◎JR東海道線 幸田駅
物件の設備
- 公営水道
- 公共下水
- プロパンガス
- 給湯
- コンロ三口
- システムキッチン
- バス
- オートバス
- 追焚機能
- 浴室暖房
- 浴室乾燥機
- シャワー
- トイレ
- 温水洗浄便座
- 高機能トイレ
- 室内洗濯機置場
- 洗髪洗面化粧台
- 洗面所独立
- 照明器具
- 人感照明センサー
- ディンプルキー
- モニタ付インターホン
- 火災警報器/報知機
- LDK15畳以上
- 2面採光
- 出窓
- フローリング
- 全室フローリング
- クッションフロア
- 24時間換気システム
- 網戸
- クローゼット3箇所
- 玄関収納
- 収納スペース
- 全居室収納
- シューズボックス
- バルコニー
- 2面バルコニー
- 南面バルコニー
- 平面駐車場
- エレベーター
- 駐輪場
物件の特徴
- 管理人巡回
- 内装リフォーム後渡
- 角部屋
- 南向
- 2沿線利用可
- 駅まで平坦
- スーパーが近い
- 周辺交通量少なめ
- 市街地が近い
- 眺望良好
- 通風良好
- 陽当り良好
- 前面棟無
- 適合リノベーション
- 即入居可
- ペット不可
物件詳細情報
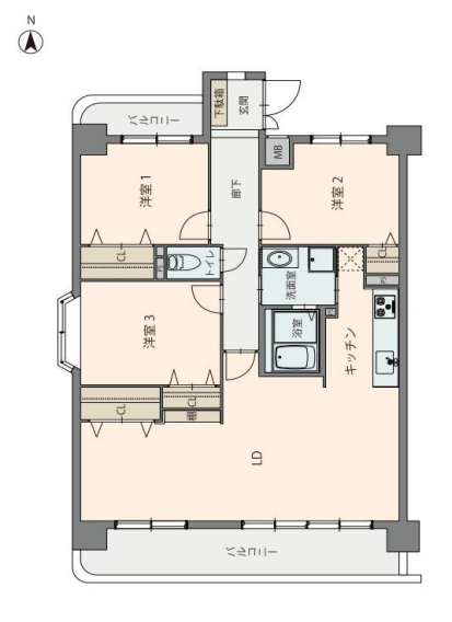
| 価格 | 1,490万円 | 間取り | 3LDK |
|---|---|---|---|
| 物件種別 | 中古マンション | ||
| 所在地 | 愛知県額田郡幸田町大字菱池字内池 | ||
| アクセス |
|
||
| 専有面積 | 壁芯 82.43㎡ | 所在階 | 7階建/3階部分 |
| 主要採光 | バルコニー | 南向14.48㎡ | |
| その他 | |||
| 権利 | 所有権 |
||
| 保証・評価 | |||
| リフォーム | |||
| 総戸数 | 面積 | ||
| 築年月 | 1988年(昭和63年)09月築 | 建物構造 | RC |
| 施工会社 | |||
| 管理会社 | 管理方式 | 全部委託 巡回管理 | |
| 駐車場 | 【駐車場】空有 料金:4,500円/月 カースペース 【駐輪場】空有 |
||
| 都市計画 | 市街化区域 |
用途地域 | 工業 |
| 建ぺい/容積率 | 60% / 200% | 土地国土法 | |
| 法令制限 | |||
| 小学区 | 中央小学校 徒歩15分 (約1170m) | 中学区 | 幸田中学校 徒歩8分 (約630m) |
| 現況 | 空 | 引渡 | 即 |
| 管理費 | 11,000円/月 | 修繕積立金 | 20,000円/月 |
| その他費用 | |||
| 備考 | |||
| 物件番号 | 4596801 | 取引態様 | 媒介 |
取扱店舗情報
ハウスドゥ 幸田 株式会社アールクローバー 店舗詳細ページへ
| 電話番号 | 0564-73-1620 |
|---|---|
| 所在地 | 〒444-0117 愛知県額田郡幸田町大字相見字沖原69番地 アヴニール相見101号室 |
| 営業時間 | 9:00~18:00 |
| 定休日 | 水曜日 |
| 宅建免許番号 | 愛知県知事(1)第26226号 |
| アクセス | 店舗への地図はこちら |

来店ご予約
- 愛知県
マイページ物件数 - 32,121件
愛知県中古マンション新着物件
-
-

-
- 中古マンション
- 7,280万円
-
名古屋市東区徳川1丁目
-
名鉄瀬戸線森下駅
-
-
-

-
- 中古マンション
- 1,490万円
-
東海市養父町北反田
-
名鉄常滑線尾張横須賀駅
-
-
-

-
- 中古マンション
- 1,590万円
-
名古屋市昭和区五軒家町
-
名古屋市鶴舞線川名駅
-
-
-

-
- 中古マンション
- 1,900万円
-
豊田市寿町4丁目
-
名鉄三河線土橋駅
-
-
-

-
- 中古マンション
- 1,490万円
-
額田郡幸田町大字菱池字内池
-
JR東海道本線幸田駅
-
-
-

-
- 中古マンション
- 1,799万円
-
一宮市枠杁町3丁目
-
名鉄名古屋本線名鉄一宮駅
-
-
-

-
- 中古マンション
- 980万円
-
名古屋市中川区高畑5丁目
-
名古屋市東山線八田駅
-
- お近くの店舗を探す
-
おすすめ物件
-
-

-
- 中古マンション
- 2,200万円
-
名古屋市港区稲永4丁目
-
名古屋臨海高速鉄道稲永
-
-
-

-
- 中古マンション
- 1,380万円
-
名古屋市西区稲生町字杁先
-
名古屋市鶴舞線庄内通
-
-
-

-
- 中古マンション
- 2,199万円
-
名古屋市港区須成町3丁目
-
名古屋臨海高速鉄道港北
-
-
-

-
- 中古マンション
- 1,888万円
-
名古屋市熱田区横田1丁目
-
JR東海道本線熱田
-
-
-

-
- 中古マンション
- 3,780万円
-
豊田市浄水町4丁目
-
名鉄豊田線浄水
-
-
-

-
- 中古マンション
- 3,280万円
-
名古屋市熱田区新尾頭1丁目
-
JR東海道本線金山
-
-
-

-
- 中古マンション
- 2,399万円
-
名古屋市中川区東起町4丁目
-
名古屋臨海高速鉄道中島
-
-
-

-
- 中古マンション
- 2,400万円
-
小牧市大字東田中
-
名鉄小牧線小牧原
-
-
-

-
- 中古マンション
- 1,520万円
-
名古屋市緑区大高町字己新田
-
名鉄常滑線名和
-
-
-

-
- 中古マンション
- 2,399万円
-
名古屋市中川区東起町4丁目
-
名古屋臨海高速鉄道中島
-



























【ハウスドゥ幸田】
■何を相談してよいか分からなくても大丈夫♪
■ライフプランに寄り添ったご提案♪
■自己資金0円で購入可能な方法も♪
■支払いに不安な方もお気軽にどうぞ♪