エクレールガーデン深沢
掲載情報更新日:2026年04月06日 次回更新予定日:2026年04月20日
- 1億490万円
-
- 借入ご希望金額
万円 - 借入期間
年 - 借入金利
% - 月々のお支払い金額
円
- 借入ご希望金額
※ 月々のお支払例は目安の試算となりますので、実際の金額とは異なる場合がございます。詳しくは店舗までお問合わせください。
- 世田谷区深沢6丁目
-
東急田園都市線『駒沢大学』 徒歩18分 (約1440m)
東急田園都市線『桜新町』 徒歩17分 (約1360m)
エクレールガーデン深沢マンション | 物件情報
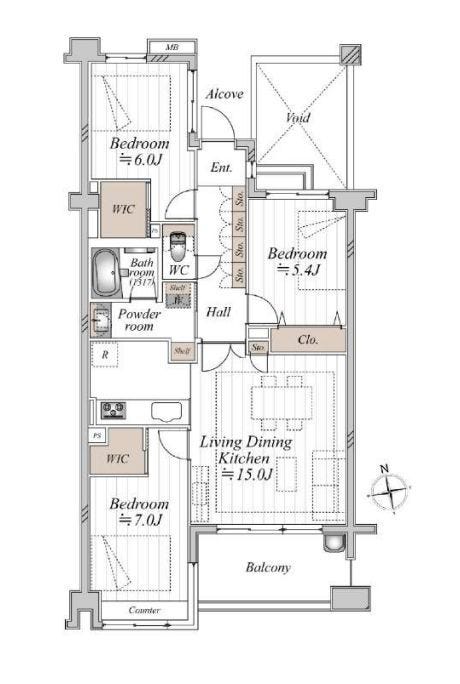
■深沢6丁目に佇む低層レジデンス♪ ■ペット飼育可能 ■内装新規リノベーション済み
《Access》
・田園都市線「駒沢大学駅」歩18分
・同線「桜新町駅」歩19分
《Point》
・閑静な住宅街の緑豊かな住環境
・新耐震基準適合マンション
・ペット飼育可(細則あり)
・LDK約15帖のゆとりある間取り
・南向き 日当たり・通風良好
・2WICで豊富な収納が可能
《Remodeling》2025年12月下旬完工
・キッチン、バス、トイレ、洗面化粧台新規交換
・建具新規交換
・全室クロス、全室フローリング張替え
・ハウスクリーニング・・・など
■内見調整いたします!お気軽にお問合せください♪
物件の設備
- 公営水道
- 公共下水
- 都市ガス
- 給湯
- 浄水器
- 食器洗浄乾燥機
- コンロ三口
- グリル
- ガスコンロ付
- システムキッチン
- バス
- オートバス
- 追焚機能
- 浴室暖房
- 浴室乾燥機
- トイレ
- 温水洗浄便座
- B/T別室
- 室内洗濯機置場
- 洗面所独立
- 床暖房
- 照明器具
- BS
- CS
- ネット専用回線
- オートロック
- モニタ付インターホン
- モニタ付オートロック
- 防犯カメラ
- 火災警報器/報知機
- セキュリティシステム
- LDK15畳以上
- フローリング
- 全室フローリング
- フローリング張替
- 24時間換気システム
- クローゼット
- ウォークインクローゼット
- ウォークインクローゼット2箇所
- 全居室収納
- シューズボックス
- バルコニー
- 南面バルコニー
- 平面駐車場
- エレベーター
物件の特徴
- 管理人巡回
- 24時間セキュリティ
- セキュリティ充実
- 内装リフォーム済
- 内装リフォーム後渡
- 耐震構造
- 駅まで平坦
- 小学校徒歩10分以内
- 整備された歩道
- 緑豊かな住宅地
- 閑静な住宅街
- 周辺交通量少なめ
- 都市近郊
- 眺望良好
- 通風良好
- 陽当り良好
- 前面棟無
- 平坦地
- 外観タイル張
- 24時間ゴミ出可
- 修繕
- 点検記録
- ペット相談
- ペット対応
物件詳細情報
| 価格 | 1億490万円 | 間取り | 3LDK |
|---|---|---|---|
| 物件種別 | 中古マンション | ||
| 所在地 | 東京都世田谷区深沢6丁目 | ||
| アクセス |
|
||
| 専有面積 | 壁芯 75.21㎡ | 所在階 | 3階建/2階部分 |
| 主要採光 | 南向 | バルコニー | 南向8.10㎡ |
| その他 | |||
| 権利 | 所有権 |
||
| 保証・評価 | |||
| リフォーム | 【水回り】2025年12月 キッチン・浴室・トイレ・洗面 【内装】2025年12月 壁、天井 ・床 ・全室クロス ・建具 |
||
| 総戸数 | 40戸 | 面積 | |
| 築年月 | 1995年(平成7年)04月築 | 建物構造 | RC |
| 施工会社 | 大成建設㈱ | ||
| 管理会社 | ㈱東急コミュニティー | 管理方式 | 全部委託 巡回管理 管理組合あり |
| 駐車場 | |||
| 都市計画 | 用途地域 | ||
| 建ぺい/容積率 | 土地国土法 | ||
| 法令制限 | |||
| 小学区 | 深沢小学校 徒歩5分 (約350m) | 中学区 | 深沢中学校 徒歩6分 (約460m) |
| 現況 | 空 | 引渡 | 相談 |
| 管理費 | 18,000円/月 | 修繕積立金 | 16,150円/月 |
| その他費用 | |||
| 周辺環境 | 深沢広場 徒歩4分 (約320m) 世田谷区立深沢小学校 徒歩5分 (約350m) 新町保育園 徒歩6分 (約450m) 西友_駒沢 徒歩6分 (約450m) 世田谷区立深沢中学校 徒歩6分 (約460m) セブンイレブン世田谷日体大店 徒歩7分 (約540m) くすりセイジョー深沢不動店 徒歩11分 (約840m) さくら中央クリニック 徒歩11分 (約860m) |
||
| 備考 | |||
| 物件番号 | 4601883 | 取引態様 | 媒介 |
取扱店舗情報
ハウスドゥ 千歳船橋 R2-CONNECT株式会社 店舗詳細ページへ
| 電話番号 | 03-5799-7621 |
|---|---|
| 所在地 | 〒156-0054 東京都世田谷区桜丘5丁目47-19 |
| 営業時間 | 9:00~19:00 |
| 定休日 | 火曜日、水曜日 |
| 宅建免許番号 | 東京都知事(1)第107079号 |
| アクセス | 店舗への地図はこちら |

来店ご予約
東京都世田谷区で価格が似ている物件はこちら
- 東京都
マイページ物件数 - 5,770件
東京都中古マンション新着物件
-
-

-
- 中古マンション
- 1億4,480万円
-
中央区日本橋蛎殻町2丁目
-
東京メトロ半蔵門線水天宮前駅
-
-
-

-
- 中古マンション
- 4,180万円
-
墨田区菊川3丁目
-
都営新宿線菊川駅
-
-
-

-
- 中古マンション
- 3,898万円
-
日野市三沢3丁目
-
京王線高幡不動駅
-
-
-

-
- 中古マンション
- 2,680万円
-
多摩市聖ヶ丘3丁目
-
小田急多摩線小田急永山駅
-
-
-

-
- 中古マンション
- 1億2,800万円
-
文京区本郷2丁目
-
東京メトロ丸ノ内線本郷三丁目駅
-
-
-

-
- 中古マンション
- 4,980万円
-
墨田区立花3丁目
-
東武亀戸線東あずま駅
-
-
-

-
- 収益
- 1,190万円
-
練馬区石神井町3丁目
-
西武池袋・豊島線石神井公園駅
-
- お近くの店舗を探す
-
おすすめ物件
-
-

-
- 中古マンション
- 1,250万円
-
練馬区関町北2丁目
-
西武新宿線武蔵関
-
-
-

-
- 中古マンション
- 3,580万円
-
練馬区関町南4丁目
-
西武新宿線武蔵関
-
-
-

-
- 中古マンション
- 3,399万円
-
足立区島根2丁目
-
東武伊勢崎・大師線梅島
-
-
-

-
- 中古マンション
- 1,950万円
-
八王子市高倉町
-
JR八高線北八王子
-
-
-

-
- 中古マンション
- 4,980万円
-
大田区西蒲田8丁目
-
JR京浜東北・根岸線蒲田
-
-
-

-
- 中古マンション
- 1,790万円
-
足立区東和5丁目
-
東京メトロ千代田線北綾瀬
-
-
-

-
- 中古マンション
- 6,798万円
-
西東京市谷戸町2丁目
-
西武池袋・豊島線ひばりケ丘
-
-
-

-
- 中古マンション
- 4,598万円
-
葛飾区金町1丁目
-
JR千代田・常磐緩行線金町
-
-
-

-
- 中古マンション
- 1億1,960万円
-
世田谷区三軒茶屋2丁目
-
東急田園都市線三軒茶屋
-
-
-

-
- 中古マンション
- 3,680万円
-
千葉市中央区千葉港
-
千葉都市モノレール市役所前
-



































世田谷区物件はハウスドゥ千歳船橋へお任せください。
物件、資金計画、周辺環境もご案内させて頂きます♪
資料請求、ご見学お気軽にお問合せください。