ダイアパレスコータ・コートサウス・ウエスト 流山市東初石2丁目の中古マンション
NEW 02.27掲載情報更新日:2026年02月27日 次回更新予定日:2026年03月13日
- 3,498万円
-
- 借入ご希望金額
万円 - 借入期間
年 - 借入金利
% - 月々のお支払い金額
円
- 借入ご希望金額
※ 月々のお支払例は目安の試算となりますので、実際の金額とは異なる場合がございます。詳しくは店舗までお問合わせください。
- 流山市東初石2丁目
-
東武野田線『初石』 徒歩7分 (約560m)
流山市東初石2丁目マンション | 物件情報
2025年12月新規内装リフォーム完了♪ペット可♪ドッグラン、フィットネススタジオ等充実の共用施設
■4階建の低層マンションかけう総戸数208戸のビッグコミュニティ
■不在時も便利な宅配BOX付き
◆私どもの使命は【お客様第一のお店づくりを】です。
無理な営業は致しません。お客様のご要望に真摯に耳を傾け、本質を理解し、お客様が本当に必要とされている情報をより迅速に、より豊富に、より的確にご提供できるよう、全力を尽くしています。
ハウスドゥに行けば、住宅に関するどんな些細なことでも相談にのってもらえる、ワクワクしながらお家を探せる、そんなお店づくりを心掛けています。
物件の設備
- 公営水道
- 公共下水
- 都市ガス
- 食器洗浄乾燥機
- システムキッチン
- ユニットバス
- 追焚機能
- 浴室乾燥機
- 温水洗浄便座
- 室内洗濯機置場
- オートロック
- モニタ付インターホン
- フローリング張替
- クローゼット
- ウォークインクローゼット
- 全居室収納
- シューズボックス
- バルコニー
- ワイドバルコニー
- キッズルーム
- 共用パーティールーム
- フィットネス施設
- 宅配BOX
- 駐輪場
- バイク置場
- 共用施設充実
物件の特徴
- 管理人日勤
- 内装リフォーム済
- 内装リフォーム後渡
- ペット対応
物件詳細情報
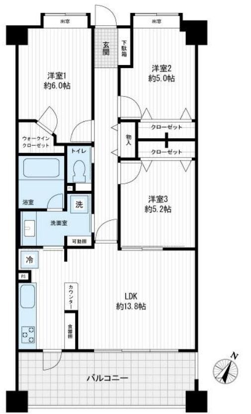
| 価格 | 3,498万円 | 間取り | 3LDK |
|---|---|---|---|
| 物件種別 | 中古マンション | ||
| 所在地 | 千葉県流山市東初石2丁目 | ||
| アクセス |
|
||
| 専有面積 | 壁芯 70.62㎡ | 所在階 | 4階建/2階部分 |
| 主要採光 | 南東向 | バルコニー | 南東向12.50㎡ |
| その他 | |||
| 権利 | 所有権 |
||
| 保証・評価 | |||
| リフォーム | 【水回り】2025年12月 キッチン・浴室・トイレ・洗面・給湯器 【内装】2025年12月 壁、天井 ・床 ・全室クロス ・建具 |
||
| 総戸数 | 208戸 | 面積 | |
| 築年月 | 2002年(平成14年)05月築 | 建物構造 | RC |
| 施工会社 | 大和建設㈱・青木建設㈱ | ||
| 管理会社 | コミニュティワン株式会社㈱ | 管理方式 | 全部委託 日勤管理 |
| 駐車場 | 【駐車場】空有 料金:4,000円/月 料金帯:1,000円/月~4,000円/月 カースペース 【バイク置き場】空有 料金:500円/月 【駐輪場】空有 料金:0円/月 |
||
| 都市計画 | 用途地域 | ||
| 建ぺい/容積率 | 土地国土法 | ||
| 法令制限 | |||
| 小学区 | 八木北小学校 徒歩19分 (約1477m) | 中学区 | 常盤松中学校 徒歩13分 (約970m) |
| 現況 | 空 | 引渡 | 相談 |
| 管理費 | 11,660円/月 | 修繕積立金 | 13,620円/月 |
| その他費用 | |||
| 周辺環境 | 流山市立八木北小学校 徒歩19分 (約1477m) にしはら幼稚園 徒歩19分 (約1465m) すみれ幼稚園 徒歩26分 (約2022m) デイリーヤマザキ流山中央病院前店 徒歩5分 (約354m) 流山中央病院 徒歩3分 (約184m) 東武ストア 初石マイン 徒歩8分 (約573m) フーズマーケットセレクション西原店 徒歩15分 (約1161m) マツモトキヨシ初石店 徒歩5分 (約377m) 流山西初石郵便局 徒歩13分 (約1030m) 常盤松中学校 徒歩13分 (約970m) |
||
| 備考 | ※駅までの距離及び周辺環境の距離に関してはシステム上の計測となっておりますので、実際に歩いてみた距離や乗車時間などとは異なる可能性がございます。 ※駐輪場代:0円/月(ただしステッカー代200円/2年に1回) |
||
| 物件番号 | 4615889 | 取引態様 | 媒介 |
取扱店舗情報
| 電話番号 | 04-7157-6500 |
|---|---|
| 所在地 | 〒270-0164 千葉県流山市流山1丁目269番地 |
| 営業時間 | 9:00~18:00 |
| 定休日 | 火曜日、水曜日 |
| 宅建免許番号 | 千葉県知事(5)第14328号 |
| アクセス | 店舗への地図はこちら |

来店ご予約
- 千葉県
マイページ物件数 - 2,148件
最近見た物件
-
-

-
- 中古一戸建て
- 1,280万円
-
姫路市青山北3丁目
-
JR姫新線余部
-
千葉県中古マンション新着物件
-
-

-
- 中古マンション
- 2,198万円
-
松戸市新松戸北2丁目
-
JR千代田・常磐緩行線新松戸駅
-
-
-

-
- 中古マンション
- 2,380万円
-
八千代市大和田新田
-
東葉高速鉄道八千代中央駅
-
-
-

-
- 中古マンション
- 1,590万円
-
流山市富士見台2丁目
-
東武野田線江戸川台駅
-
-
-

-
- 中古マンション
- 3,498万円
-
流山市東初石2丁目
-
東武野田線初石駅
-
-
-

-
- 中古マンション
- 2,588万円
-
松戸市新松戸北2丁目
-
JR千代田・常磐緩行線新松戸駅
-
-
-

-
- 中古マンション
- 2,280万円
-
八千代市勝田台1丁目
-
東葉高速鉄道東葉勝田台駅
-
-
-

-
- 中古マンション
- 2,480万円
-
松戸市新松戸北2丁目
-
JR千代田・常磐緩行線新松戸駅
-
- お近くの店舗を探す
-
おすすめ物件
-
-

-
- 中古マンション
- 2,690万円
-
流山市加3丁目
-
つくばエクスプレス流山セントラルパーク
-
-
-

-
- 中古マンション
- 1,400万円
-
松戸市南花島4丁目
-
京成電鉄松戸線上本郷
-
-
-

-
- 中古マンション
- 780万円
-
松戸市松戸
-
JR常磐線松戸
-
-
-

-
- 中古マンション
- 280万円
-
流山市駒木
-
つくばエクスプレス流山おおたかの森
-
-
-

-
- 中古マンション
- 1,280万円
-
印旛郡酒々井町東酒々井6丁目
-
JR成田線酒々井
-
-
-

-
- 中古マンション
- 2,498万円
-
松戸市新松戸5丁目
-
JR千代田・常磐緩行線新松戸
-
-
-

-
- 中古マンション
- 2,088万円
-
柏市松葉町2丁目
-
JR千代田・常磐緩行線北柏
-
-
-

-
- 中古マンション
- 2,690万円
-
流山市加3丁目
-
つくばエクスプレス流山セントラルパーク
-
-
-

-
- 中古マンション
- 1,280万円
-
佐倉市大蛇町
-
京成本線京成佐倉
-
-
-

-
- 中古マンション
- 2,580万円
-
市原市五井
-
JR内房線五井
-










担当エージェント:坂本 祐人
随時ご案内可能です♪
当物件はもちろんですが、他に気になる物件のご案内、資金計画、物件詳細、住宅ローン等何でもお気軽にお問い合わせください!
◆ご案内方法について♪
鍵の手配や居住者様立会等々で日程調整が必要な場合がございますので、お早目にご連絡をいただけるとご案内がスムーズです。
現地での待ち合わせ、最寄り駅での待ち合わせ等々ご対応可能です。また、前もって御連絡下さればお近くまでお迎えにあがります。お気軽にご相談ください。
◆住宅ローンのご相談について♪
20行以上の金融機関と実績があります。
「審査と聞くと心配」「頭金0円で買えるの?」「勤続が短いんですが・・・」等々、お気軽にご相談ください。
◆駐車場について♪
店舗にてご相談も可能です。流山街道裏手にある弊社駐車場をご利用下さい。
◆キッズスペースについて♪
弊社では、お子様が退屈しないようにTVやレゴ、絵本・ぬりえなどをご用意しております。
ご希望があれば、スタッフが見守り対応を致します!