パークホームズ吉祥寺北町3丁目 武蔵野市吉祥寺北町3丁目の中古マンション
NEW 03.02掲載情報更新日:2026年03月10日 次回更新予定日:2026年03月24日
- 1億980万円
-
- 借入ご希望金額
万円 - 借入期間
年 - 借入金利
% - 月々のお支払い金額
円
- 借入ご希望金額
※ 月々のお支払例は目安の試算となりますので、実際の金額とは異なる場合がございます。詳しくは店舗までお問合わせください。
- 武蔵野市吉祥寺北町3丁目
-
JR中央本線『吉祥寺』 徒歩21分 (約1680m)
武蔵野市吉祥寺北町3丁目マンション | 物件情報
三井不動産(株)旧分譲!最上階プレミア住戸!陽当たり良好!新規内装リフォーム済み!
【物件アピール】
三井不動産(株)旧分譲
最上階プレミア住戸
陽当たり良好
新規内装リフォーム済み
ペット飼育可
物件の設備
- 給湯
- 浄水器
- 食器洗浄乾燥機
- システムキッチン
- ユニットバス
- 追焚機能
- 浴室暖房
- 浴室乾燥機
- 温水洗浄便座
- 室内洗濯機置場
- 洗髪洗面化粧台
- 洗面所独立
- オートロック
- モニタ付インターホン
- LDK15畳以上
- フローリング張替
- クローゼット
- ウォークインクローゼット
- 玄関収納
- バルコニー
- エレベーター
- バイク置場
物件の特徴
- 管理人日勤
- 内装リフォーム済
- 内装リフォーム後渡
- 角部屋
- 外観タイル張
- ペット対応
物件詳細情報
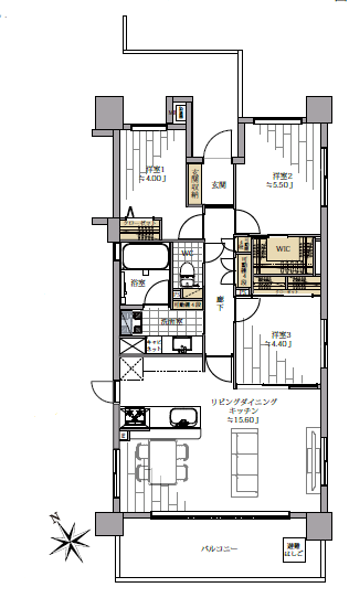
| 価格 | 1億980万円 | 間取り | 3LDK |
|---|---|---|---|
| 物件種別 | 中古マンション | ||
| 所在地 | 東京都武蔵野市吉祥寺北町3丁目 | ||
| アクセス |
|
||
| 専有面積 | 72.83㎡ | 所在階 | 7階建/7階部分 |
| 主要採光 | 南西向 | バルコニー | 南西向11.07㎡ |
| その他 | |||
| 権利 | 所有権 |
||
| 保証・評価 | |||
| リフォーム | 【水回り】2026年02月 キッチン・浴室・トイレ・洗面・給湯器・他[洗濯水栓、防水パン] 新規交換 【内装】2026年02月 壁、天井 ・床 ・全室クロス ・建具 新規貼替、交換 |
||
| 総戸数 | 47戸 | 面積 | |
| 築年月 | 2005年(平成17年)02月築 | 建物構造 | RC |
| 施工会社 | 川口土木建築工業株式会社 | ||
| 管理会社 | 三井不動産レジデンシャルサービス株式会社 | 管理方式 | 全部委託 日勤管理 |
| 駐車場 | 【バイク置き場】無し |
||
| 都市計画 | 用途地域 | ||
| 建ぺい/容積率 | 土地国土法 | ||
| 法令制限 | |||
| 小学区 | 中学区 | ||
| 現況 | 空 | 引渡 | 相談 |
| 管理費 | 17,840円/月 | 修繕積立金 | 15,290円/月 |
| その他費用 | |||
| 周辺環境 | 吉祥寺駅 徒歩20分 (約1590m) | ||
| 備考 | 駐車場:月額19000円 駐輪場:月額100円~300円 |
||
| 物件番号 | 4620417 | 取引態様 | 媒介 |
取扱店舗情報
| 電話番号 | 03-3928-8080 |
|---|---|
| 所在地 | 〒177-0044 東京都練馬区上石神井4丁目30-2 |
| 営業時間 | 10:00~18:00 |
| 定休日 | 年末年始 |
| 宅建免許番号 | 東京都知事(1)第105887号 |
| アクセス | 店舗への地図はこちら |

来店ご予約
- 東京都
マイページ物件数 - 5,431件
最近見た物件
-
-

-
- 中古マンション
- 480万円
-
宝塚市逆瀬台1丁目
-
阪急電鉄今津線逆瀬川
-
東京都中古マンション新着物件
- お近くの店舗を探す
-
おすすめ物件
-
-

-
- 中古マンション
- 850万円
-
青梅市長淵7丁目
-
JR青梅線青梅
-
-
-

-
- 中古マンション
- 3,680万円
-
葛飾区亀有2丁目
-
JR千代田・常磐緩行線亀有
-
-
-

-
- 中古マンション
- 2,880万円
-
葛飾区金町2丁目
-
JR千代田・常磐緩行線金町
-
-
-

-
- 中古マンション
- 9,198万円
-
葛飾区新宿6丁目
-
JR千代田・常磐緩行線金町
-
-
-

-
- 中古マンション
- 2,980万円
-
葛飾区水元2丁目
-
JR千代田・常磐緩行線金町
-
-
-

-
- 中古マンション
- 6,798万円
-
西東京市谷戸町2丁目
-
西武池袋・豊島線ひばりケ丘
-
-
-

-
- 中古マンション
- 2,880万円
-
葛飾区水元3丁目
-
JR千代田・常磐緩行線金町
-
-
-

-
- 中古マンション
- 4,580万円
-
練馬区上石神井2丁目
-
西武新宿線上石神井
-
-
-

-
- 中古マンション
- 2,780万円
-
八王子市元横山町2丁目
-
JR中央本線八王子
-
-
-

-
- 中古マンション
- 1,280万円
-
大田区東六郷3丁目
-
京急本線雑色
-











お気軽にお問い合わせください。