住吉パーク・ホームズ 江東区猿江1丁目の中古マンション
掲載情報更新日:2026年05月21日 次回更新予定日:2026年06月04日
- 9,480万円
-
- 借入ご希望金額
万円 - 借入期間
年 - 借入金利
% - 月々のお支払い金額
円
- 借入ご希望金額
※ 月々のお支払例は目安の試算となりますので、実際の金額とは異なる場合がございます。詳しくは店舗までお問合わせください。
- 江東区猿江1丁目
-
都営新宿線『住吉』 徒歩6分 (約480m)
都営新宿線『菊川』 徒歩10分 (約800m)
東京メトロ半蔵門線『住吉』 徒歩6分 (約480m)
江東区猿江1丁目マンション | 物件情報
物件の設備
- 給湯
- 浄水器
- 食器洗浄乾燥機
- システムキッチン
- ユニットバス
- バスサイズ1620
- 追焚機能
- 浴室暖房
- 浴室乾燥機
- トイレ
- 室内洗濯機置場
- 洗面所独立
- オートロック
- フローリング張替
- クローゼット
- ウォークインクローゼット
- 玄関収納
- 収納スペース
- バルコニー
- 南面バルコニー
- 宅配BOX
- エレベーター
- 駐輪場
- バイク置場
物件の特徴
- 管理人日勤
- 内装リフォーム済
- ペット相談
物件詳細情報
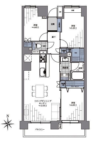
| 価格 | 9,480万円 | 間取り | 3LDK |
|---|---|---|---|
| 物件種別 | 中古マンション | ||
| 所在地 | 東京都江東区猿江1丁目 | ||
| アクセス |
|
||
| 専有面積 | 61.05㎡ | 所在階 | 7階建/7階部分 |
| 主要採光 | 南向 | バルコニー | 南向9.28㎡ |
| その他 | |||
| 権利 | 所有権 |
||
| 保証・評価 | |||
| リフォーム | 【水回り】2026年05月 キッチン・浴室・トイレ・洗面・給湯器・給排水管 洗濯水栓・防水パン新規交換 【内装】2026年05月 壁、天井 ・床 ・建具 玄関収納新規交換 |
||
| 総戸数 | 44戸 | 面積 | |
| 築年月 | 1994年(平成6年)08月築 | 建物構造 | SRC |
| 施工会社 | |||
| 管理会社 | 管理方式 | 全部委託 日勤管理 | |
| 駐車場 | 【駐車場】空有 料金:25,000円/月 料金帯:25,000円/月~30,000円/月 【バイク置き場】あり 料金: 2000円/月 【駐輪場】あり 料金: 500円/月 |
||
| 都市計画 | 用途地域 | ||
| 建ぺい/容積率 | 土地国土法 | ||
| 法令制限 | |||
| 小学区 | 東川小学校 徒歩3分 (約226m) | 中学区 | 深川第七中学校 徒歩7分 (約566m) |
| 現況 | 空 | 引渡 | 相談 |
| 管理費 | 13,400円/月 | 修繕積立金 | 8,660円/月 |
| その他費用 | |||
| 備考 | |||
| 物件番号 | 4623994 | 取引態様 | 媒介 |
取扱店舗情報
| 電話番号 | 03-3699-6100 |
|---|---|
| 所在地 | 〒135-0013 東京都江東区千田15-7 |
| 営業時間 | 10:00~18:00 |
| 定休日 | 水曜日 |
| 宅建免許番号 | 東京都知事(6)第74879号 |
| アクセス | 店舗への地図はこちら |

来店ご予約
- 東京都
マイページ物件数 - 6,376件
最近見た物件
-
-

-
- 新築一戸建て
- 3,998万円
-
高槻市安岡寺町2丁目
-
JR東海道線高槻
-
-
-

-
- 中古一戸建て
- 1,449万円
-
真岡市高勢町2丁目
-
真岡鉄道真岡
-
-
-

-
- 新築一戸建て
- 2,898万円
-
熊本市東区花立6丁目
-
花立五丁目
-
東京都中古マンション新着物件
-
-

-
- 中古マンション
- 2,980万円
-
世田谷区野毛3丁目
-
東急大井町線二子玉川駅
-
-
-

-
- 中古マンション
- 2,490万円
-
足立区大谷田1丁目
-
東京メトロ千代田線綾瀬駅
-
-
-

-
- 中古マンション
- 3,680万円
-
調布市西つつじケ丘1丁目
-
京王線柴崎駅
-
-
-

-
- 中古マンション
- 3,498万円
-
葛飾区金町6丁目
-
JR千代田・常磐緩行線金町駅
-
-
-

-
- 中古マンション
- 5,490万円
-
世田谷区松原6丁目
-
小田急小田原線豪徳寺駅
-
-
-

-
- 中古マンション
- 1,699万円
-
足立区足立4丁目
-
東武伊勢崎・大師線五反野駅
-
-
-

-
- 中古マンション
- 4,680万円
-
西東京市下保谷5丁目
-
西武池袋・豊島線保谷駅
-
- お近くの店舗を探す
-
おすすめ物件
-
-

-
- 中古マンション
- 3,480万円
-
千葉市中央区千葉港
-
千葉都市モノレール市役所前
-
-
-

-
- 中古マンション
- 5,298万円
-
練馬区関町南2丁目
-
西武新宿線武蔵関
-
-
-

-
- 中古マンション
- 3,390万円
-
足立区鹿浜7丁目
-
日暮里舎人ライナー西新井大師西
-
-
-

-
- 中古マンション
- 4,180万円
-
足立区西新井5丁目
-
日暮里舎人ライナー西新井大師西
-
-
-

-
- 中古マンション
- 3,090万円
-
日野市旭が丘3丁目
-
JR中央本線豊田
-
-
-

-
- 中古マンション
- 5,690万円
-
練馬区関町北1丁目
-
西武新宿線武蔵関
-
-
-

-
- 中古マンション
- 1億3,800万円
-
世田谷区桜上水5丁目
-
京王線桜上水
-
-
-

-
- 中古マンション
- 2,799万円
-
足立区鹿浜6丁目
-
日暮里舎人ライナー谷在家
-
-
-

-
- 中古マンション
- 5,080万円
-
葛飾区東金町3丁目
-
JR千代田・常磐緩行線金町
-
-
-

-
- 中古マンション
- 1,250万円
-
練馬区関町北2丁目
-
西武新宿線武蔵関
-




