アンビックス志賀ストリートタワー
NEW 03.12掲載情報更新日:2026年03月22日 次回更新予定日:2026年04月05日
- 3,690万円
-
- 借入ご希望金額
万円 - 借入期間
年 - 借入金利
% - 月々のお支払い金額
円
- 借入ご希望金額
※ 月々のお支払例は目安の試算となりますので、実際の金額とは異なる場合がございます。詳しくは店舗までお問合わせください。
- 名古屋市北区志賀本通1丁目
-
名古屋市名城線『志賀本通』 徒歩5分 (約350m)
アンビックス志賀ストリートタワーマンション | 物件情報
【ハウスドゥ北名古屋】お家探しキャンペーン実施中!0120-315-366までお問合せ下さい♪
〇オススメPOINT〇
最寄り駅徒歩5分、毎日の移動がスムーズな快適立地
大切なペットと一緒に暮らせる住まい
各居室収納付きで、整理整頓しやすい間取り
〇周辺環境〇
名古屋市名城線「志賀本通」駅…約350m
大杉小学校…約1000m
八王子中学校…約800m
お気軽にお問い合わせ下さい
【ハウスドゥ 北名古屋】
物件の設備
- 食器洗浄乾燥機
- コンロ三口
- システムキッチン
- ユニットバス
- トイレ
- 温水洗浄便座
- 洗髪洗面化粧台
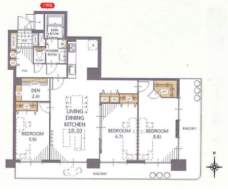
- LDK18畳以上
- 2面採光
- フローリング張替
- クローゼット2箇所
- ウォークインクローゼット
- 玄関収納
- 収納スペース
- シューズボックス
- バルコニー
- 2面バルコニー
- L字型バルコニー
- 南面バルコニー
- エレベーター
物件の特徴
- 管理人日勤
- 内装リフォーム済
- 眺望良好
- 通風良好
- 陽当り良好
- 即入居可
- ペット対応
物件詳細情報
| 価格 | 3,690万円 | 間取り | 3LDK |
|---|---|---|---|
| 物件種別 | 中古マンション | ||
| 所在地 | 愛知県名古屋市北区志賀本通1丁目 | ||
| アクセス |
|
||
| 専有面積 | 壁芯 90.29㎡ | 所在階 | 25階建/5階部分 |
| 主要採光 | 南向 | バルコニー | 南向32.62㎡ |
| その他 | |||
| 権利 | 所有権 |
||
| 保証・評価 | |||
| リフォーム | 【水回り】2026年01月 キッチン・浴室・トイレ・洗面 【内装】2026年01月 床 ・全室クロス |
||
| 総戸数 | 118戸 | 面積 | |
| 築年月 | 1993年(平成5年)11月築 | 建物構造 | RC |
| 施工会社 | 日本国土開発株式会社 | ||
| 管理会社 | 株式会社長谷工コミュニティ | 管理方式 | 全部委託 日勤管理 |
| 駐車場 | 【駐車場】空有 料金:15,000円/月 料金帯:15,000円/月~23,000円/月 |
||
| 都市計画 | 市街化区域 |
用途地域 | 商業 |
| 建ぺい/容積率 | 80% / 400% | 土地国土法 | |
| 法令制限 | |||
| 小学区 | 大杉小学校 徒歩13分 (約1000m) | 中学区 | 八王子中学校 徒歩10分 (約800m) |
| 現況 | 空 | 引渡 | 即 |
| 管理費 | 16,300円/月 | 修繕積立金 | 19,580円/月 |
| その他費用 | |||
| 備考 | ■図面と現況が異なる場合は現況優先 ■トランクルーム有(No,505、無償) ■平面・機械式駐車場/有(月額15,000円~23,000※駐車場修繕積立金6,000円含む) ※空き状況は管理会社へ要確認 ■管積値上げ予定有り。 ■ペット飼育/可(細則有り) ※リフォーム歴有り(2026年1月) システムキッチン・ユニットバス・洗面化粧台・トイレ・建具・食洗機新規交換 クロス全室・床材新規貼替 ハウスクリーニング |
||
| 物件番号 | 4634232 | 取引態様 | 媒介 |
取扱店舗情報
| 電話番号 | 0568-26-3150 |
|---|---|
| 所在地 | 〒481-0041 愛知県北名古屋市九之坪梅田70 |
| 営業時間 | 9:00~19:00 |
| 定休日 | 火曜日・水曜日・年末年始 |
| 宅建免許番号 | 国土交通大臣(1)第10568号 |
| アクセス | 店舗への地図はこちら |

来店ご予約
愛知県名古屋市北区で価格が似ている物件はこちら
- 愛知県
マイページ物件数 - 32,388件
最近見た物件
-
-

-
- 新築一戸建て
- 3,498万円
-
糟屋郡宇美町大字井野
-
JR香椎線宇美
-
愛知県中古マンション新着物件
-
-

-
- 中古マンション
- 1,899万円
-
安城市昭和町
-
JR東海道本線安城駅
-
-
-

-
- 中古マンション
- 4,180万円
-
名古屋市瑞穂区彌富町字緑ケ岡
-
名古屋市名城線総合リハビリセンター駅
-
-
-

-
- 中古マンション
- 1,199万円
-
名古屋市中村区烏森町4丁目
-
名古屋市東山線岩塚駅
-
-
-

-
- 中古マンション
- 2,780万円
-
名古屋市昭和区高峯町
-
名古屋市名城線名古屋大学駅
-
-
-

-
- 中古マンション
- 598万円
-
一宮市昭和2丁目
-
名鉄尾西線観音寺駅
-
-
-

-
- 中古マンション
- 5,780万円
-
名古屋市東区主税町4丁目
-
名古屋市桜通線高岳駅
-
-
-

-
- 中古マンション
- 2,080万円
-
名古屋市港区品川町1丁目
-
名古屋臨海高速鉄道荒子川公園駅
-
- お近くの店舗を探す
-
おすすめ物件
-
-

-
- 中古マンション
- 1,999万円
-
名古屋市港区稲永4丁目
-
名古屋臨海高速鉄道稲永
-
-
-

-
- 中古マンション
- 990万円
-
名古屋市千種区神田町
-
名古屋市東山線今池
-
-
-

-
- 中古マンション
- 1,480万円
-
小牧市城山1丁目
-
JR中央本線春日井
-
-
-

-
- 中古マンション
- 1,980万円
-
北名古屋市西之保立石
-
名鉄犬山線西春
-
-
-

-
- 中古マンション
- 1,350万円
-
岡崎市柱町字東荒子
-
JR東海道本線岡崎
-
-
-

-
- 中古マンション
- 5,380万円
-
名古屋市東区泉3丁目
-
名古屋市桜通線高岳
-
-
-

-
- 中古マンション
- 1,280万円
-
瀬戸市川端町1丁目
-
名鉄瀬戸線新瀬戸
-
-
-

-
- 中古マンション
- 2,998万円
-
名古屋市昭和区広路通5丁目
-
名古屋市鶴舞線川名
-
-
-

-
- 中古マンション
- 580万円
-
名古屋市東区東桜2丁目
-
名古屋市東山線新栄町
-
-
-

-
- 中古マンション
- 1,699万円
-
小牧市小牧4丁目
-
名鉄小牧線小牧
-



担当エージェント:蓑手 理仁
住宅ローンのお話や、失敗しない不動産の購入方法までしっかりお伝えいたします♪ ・借入がある方・自営業の方・転職歴のある方・自己資金がない方・シングルの方もまずはご相談ください! 最善の方法を見つけられるよう尽力したします キッズスペース完備!おもちゃなどをご用意しております。安心してご来店ください♪