リーデンススクエア ザ・シーズ 名古屋市緑区有松町大字桶狭間字生山の中古マンション
NEW 03.13掲載情報更新日:2026年03月13日 次回更新予定日:2026年03月27日
- 3,390万円
-
- 借入ご希望金額
万円 - 借入期間
年 - 借入金利
% - 月々のお支払い金額
円
- 借入ご希望金額
※ 月々のお支払例は目安の試算となりますので、実際の金額とは異なる場合がございます。詳しくは店舗までお問合わせください。
- 名古屋市緑区有松町大字桶狭間字生山
-
名鉄名古屋本線『有松』 徒歩11分 (約880m)
名鉄名古屋本線『中京競馬場前』 徒歩13分 (約1040m)
名古屋市緑区有松町大字桶狭間字生山マンション | 物件情報
名鉄【有松】駅徒歩約12分!ペット可の大規模マンション!自走式平面駐車場引継可能です!
物件の設備
- コンロ三口
- インターネット接続可
- オートロック
- モニタ付インターホン
- フローリング張替
- バルコニー
- 共用パーティールーム
- 施設内貸会議室
- 宅配BOX
- エレベーター
- 駐輪場
物件の特徴
- 管理人日勤
- 内装リフォーム済
- 南向
- 眺望良好
- 通風良好
- 陽当り良好
物件詳細情報
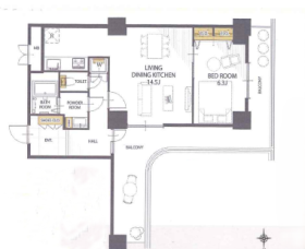
| 価格 | 3,390万円 | 間取り | 3LDK |
|---|---|---|---|
| 物件種別 | 中古マンション | ||
| 所在地 | 愛知県名古屋市緑区有松町大字桶狭間字生山 | ||
| アクセス |
|
||
| 専有面積 | 75.63㎡ | 所在階 | 12階建/8階部分 |
| 主要採光 | 南西向 | バルコニー | 南西向12.62㎡ |
| その他 | |||
| 権利 | 所有権 |
||
| 保証・評価 | |||
| リフォーム | 【水回り】2026年03月 キッチン・浴室・トイレ・洗面 洗濯機防水パン新規交換 【内装】2026年03月 床 ・全室クロス 畳表替え、襖貼替え、照明器具・レースカーテン設置、ハウスクリーニング |
||
| 総戸数 | 215戸 | 面積 | |
| 築年月 | 2003年(平成15年)05月築 | 建物構造 | RC |
| 施工会社 | 大日本土木(株) | ||
| 管理会社 | 三菱地所コミュニティ(株) | 管理方式 | 全部委託 日勤管理 |
| 駐車場 | 【駐車場】空有 料金:8,000円/月 【駐輪場】空有 |
||
| 都市計画 | 市街化区域 |
用途地域 | 1種住居 |
| 建ぺい/容積率 | 60% / 200% | 土地国土法 | |
| 法令制限 | |||
| 小学区 | 有松小学校 徒歩10分 (約800m) | 中学区 | 有松中学校 徒歩9分 (約700m) |
| 現況 | 空 | 引渡 | 期日指定:2026年04月末以降 |
| 管理費 | 7,500円/月 | 修繕積立金 | 11,200円/月 |
| その他費用 | 150円/月 インターネット:1540円/月 |
||
| 備考 | ◎ペット飼育可(規約厳守)◎駐車場1台(No.56)引承継可 ◎コンシェルジュをはじめ、集会室・キッズスクエアなど、共用施設充実!! ・ひいらぎ保育園まで約500m(徒歩約7分):ファミリーマート武路町店約550m(徒歩約8分):イオンタウン有松まで約1200m(徒歩約14分):有松武路公園まで約110m(徒歩約2分) |
||
| 物件番号 | 4635391 | 取引態様 | 媒介 |
取扱店舗情報
ハウスドゥ 緑区鳴海駅前 株式会社エム・ケイ 店舗詳細ページへ
| 電話番号 | 052-825-3531 |
|---|---|
| 所在地 | 〒458-0835 愛知県名古屋市緑区鳴海町上汐田17番地 阪野ビル1階 |
| 営業時間 | 9:30~18:30 |
| 定休日 | 火曜日・水曜日 |
| 宅建免許番号 | 愛知県知事(3)第23053号 |
| アクセス | 店舗への地図はこちら |

来店ご予約
愛知県名古屋市緑区で価格が似ている物件はこちら
- 愛知県
マイページ物件数 - 32,422件
愛知県中古マンション新着物件
-
-

-
- 中古マンション
- 3,399万円
-
一宮市大宮1丁目
-
名鉄名古屋本線名鉄一宮駅
-
-
-

-
- 中古マンション
- 2,490万円
-
名古屋市北区志賀本通1丁目
-
名古屋市名城線志賀本通駅
-
-
-

-
- 中古マンション
- 2,399万円
-
北名古屋市西之保宮前
-
名鉄犬山線西春駅
-
-
-

-
- 中古マンション
- 780万円
-
一宮市木曽川町黒田字地蔵西
-
名鉄名古屋本線新木曽川駅
-
-
-

-
- 中古マンション
- 2,999万円
-
名古屋市天白区中平1丁目
-
名古屋市鶴舞線原駅
-
-
-

-
- 中古マンション
- 2,690万円
-
名古屋市北区志賀本通1丁目
-
名古屋市名城線志賀本通駅
-
-
-

-
- 中古マンション
- 2,699万円
-
名古屋市南区豊田5丁目
-
名鉄常滑線道徳駅
-
- お近くの店舗を探す
-
おすすめ物件
-
-

-
- 中古マンション
- 1,050万円
-
東海市加木屋町山之脇
-
名鉄河和線加木屋中ノ池
-
-
-

-
- 中古マンション
- 2,290万円
-
小牧市大字小牧原新田
-
名鉄小牧線小牧原
-
-
-

-
- 中古マンション
- 1,290万円
-
半田市北二ツ坂町2丁目
-
名鉄河和線知多半田
-
-
-

-
- 中古マンション
- 2,800万円
-
名古屋市緑区作の山町
-
名鉄名古屋本線鳴海
-
-
-

-
- 中古マンション
- 2,700万円
-
名古屋市緑区鳴海町字山腰
-
名鉄名古屋本線鳴海
-
-
-

-
- 中古マンション
- 2,200万円
-
岡崎市大西町字南ケ原
-
名鉄名古屋本線男川
-
-
-

-
- 中古マンション
- 1,350万円
-
半田市中町3丁目
-
名鉄河和線知多半田
-
-
-

-
- 中古マンション
- 1,899万円
-
海部郡蟹江町大字蟹江新田字下山
-
近鉄名古屋線近鉄蟹江
-
-
-

-
- 中古マンション
- 1,980万円
-
小牧市堀の内4丁目
-
名鉄小牧線小牧
-
-
-

-
- 中古マンション
- 368万円
-
名古屋市緑区太子1丁目
-
名鉄名古屋本線有松
-













