クリーンリバー西野 札幌市西区西野一条6丁目の中古マンション
NEW 03.14掲載情報更新日:2026年03月19日 次回更新予定日:2026年04月02日
- 1,700万円
-
- 借入ご希望金額
万円 - 借入期間
年 - 借入金利
% - 月々のお支払い金額
円
- 借入ご希望金額
※ 月々のお支払例は目安の試算となりますので、実際の金額とは異なる場合がございます。詳しくは店舗までお問合わせください。
- 札幌市西区西野一条6丁目
-
札幌市東西線『発寒南』 徒歩13分 (約1040m)
JRバス『西野2条6丁目停』 徒歩6分 (約480m)
札幌市西区西野一条6丁目マンション | 物件情報
~南東向きで陽当り良好な90㎡超4LDK♪大切なペットと暮らせる毎日~
<おすすめポイント>
◎ペット飼育可能(※規約による制限有り)
◎経済的な都市ガス給湯
◎南東向きで陽当り良好
◎2面採光
◎使い勝手の良いL字型キッチン
◎駐車場有り(※月額5,767円/空き状況管理会社へ要確認)
◎エレベーター有り
<周辺施設>
◎地下鉄東西線「発寒南」駅徒歩13分
◎イオン西町店徒歩13分
◎JR生鮮市場徒歩8分
◎北洋銀行西町支店徒歩10分
◎小学校へ徒歩3分
◎中学校へ徒歩6分
物件の設備
- 公営水道
- 公共下水
- 都市ガス
- 給湯
- コンロ三口
- グリル
- カウンターキッチン
- システムキッチン
- ユニットバス
- バス1坪以上
- シャワー
- トイレ
- B/T別室
- 室内洗濯機置場
- 洗髪洗面化粧台
- 洗面所独立
- 石油暖房
- 火災警報器/報知機
- 和室
- 複層ガラス
- 全居室複層ガラス
- 網戸
- クローゼット
- 収納スペース
- トランクルーム
- 押入
- バルコニー
- 来客用パーキング
- エレベーター
物件の特徴
- 管理人巡回
- 陽当り良好
- ペット相談
物件詳細情報
| 価格 | 1,700万円 | 間取り | 4LDK |
|---|---|---|---|
| 物件種別 | 中古マンション | ||
| 所在地 | 北海道札幌市西区西野一条6丁目 | ||
| アクセス |
|
||
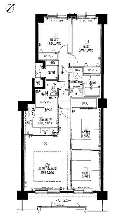
| 専有面積 | 壁芯 94.89㎡ | 所在階 | 6階建/3階部分 |
| 主要採光 | 南東向 | バルコニー | 南東向9.90㎡ |
| その他 | |||
| 権利 | 所有権 |
||
| 保証・評価 | |||
| リフォーム | |||
| 総戸数 | 42戸 | 面積 | |
| 築年月 | 1989年(平成1年)11月築 | 建物構造 | RC |
| 施工会社 | 世紀東急工業株式会社札幌支店 | ||
| 管理会社 | 株式会社クリーンリバー | 管理方式 | 全部委託 巡回管理 |
| 駐車場 | |||
| 都市計画 | 用途地域 | 2種住居 | |
| 建ぺい/容積率 | 土地国土法 | ||
| 法令制限 | |||
| 小学区 | 西園小学校 徒歩3分 (約240m) | 中学区 | 手稲東中学校 徒歩6分 (約480m) |
| 現況 | 空 | 引渡 | 相談 |
| 管理費 | 9,100円/月 | 修繕積立金 | 18,978円/月 |
| その他費用 | |||
| 備考 | ■給湯:都市ガス ■暖房:灯油 ■ペット飼育可能(※規約有り) ■トランクルーム有り(※無償) ■補修積立金:月額1480円 ■来客用駐車場有り |
||
| 物件番号 | 4636951 | 取引態様 | 一般媒介 |
取扱店舗情報
ハウスドゥ 宮の沢駅前 札幌アポロ株式会社 店舗詳細ページへ
| 電話番号 | 011-668-3000 |
|---|---|
| 所在地 | 〒063-0051 北海道札幌市西区宮の沢1条1丁目10番19号 |
| 営業時間 | 9:00~18:00 |
| 定休日 | 水曜日 |
| 宅建免許番号 | 北海道知事 石狩(2)第8772号 |
| アクセス | 店舗への地図はこちら |

来店ご予約
北海道札幌市西区で価格が似ている物件はこちら
- 北海道
マイページ物件数 - 6,486件
北海道中古マンション新着物件
-
-

-
- 中古マンション
- 2,530万円
-
札幌市中央区大通西14丁目
-
札幌市軌道線西15丁目駅
-
-
-

-
- 中古マンション
- 3,670万円
-
札幌市手稲区曙二条2丁目
-
JR函館本線手稲駅
-
-
-

-
- 中古マンション
- 565万円
-
札幌市北区新琴似八条1丁目
-
JR札沼線新琴似駅
-
-
-

-
- 中古マンション
- 1,590万円
-
札幌市白石区菊水一条4丁目
-
札幌市東西線菊水駅
-
-
-

-
- 中古マンション
- 1,990万円
-
札幌市西区二十四軒三条7丁目
-
札幌市東西線琴似駅
-
-
-

-
- 中古マンション
- 238万円
-
小樽市桜2丁目
-
JR函館本線小樽築港駅
-
-
-

-
- 中古マンション
- 3,399万円
-
札幌市中央区北二条東10丁目
-
JR千歳線苗穂駅
-
- お近くの店舗を探す
-
おすすめ物件
-
-

-
- 中古マンション
- 1,080万円
-
北広島市大曲南ヶ丘1丁目
-
札幌市東西線新さっぽろ
-
-
-

-
- 中古マンション
- 1,990万円
-
札幌市西区二十四軒三条7丁目
-
札幌市東西線琴似
-
-
-

-
- 中古マンション
- 1億2,800万円
-
札幌市北区北八条西3丁目
-
JR函館本線札幌
-
-
-

-
- 中古マンション
- 2,690万円
-
札幌市東区北七条東18丁目
-
札幌市東豊線環状通東
-
-
-

-
- 中古マンション
- 1,498万円
-
札幌市中央区南十二条西14丁目
-
札幌市軌道線西線11条
-
-
-

-
- 中古マンション
- 3,998万円
-
札幌市西区琴似一条6丁目
-
札幌市東西線琴似
-
-
-

-
- 中古マンション
- 1,700万円
-
札幌市西区西野一条6丁目
-
札幌市東西線発寒南
-
-
-

-
- 中古マンション
- 1,980万円
-
札幌市西区発寒十条2丁目
-
JR函館本線発寒中央
-
-
-

-
- 中古マンション
- 2,530万円
-
札幌市中央区大通西14丁目
-
札幌市東西線西11丁目
-
-
-

-
- 中古マンション
- 2,690万円
-
札幌市西区宮の沢一条5丁目
-
札幌市東西線宮の沢
-































担当エージェント:山下 孝裕
ご内覧出来ますのでお気軽にお問い合わせください。
住宅ローンや火災保険のご相談も承ります。
リフォーム・リノベーションも弊社にお任せ下さい!
【ハウスドゥ宮の沢駅前:011-668-3000】