セザール東大宮 さいたま市見沼区東大宮4丁目の中古マンション
NEW 03.14掲載情報更新日:2026年03月14日 次回更新予定日:2026年03月28日
- 2,280万円
-
- 借入ご希望金額
万円 - 借入期間
年 - 借入金利
% - 月々のお支払い金額
円
- 借入ご希望金額
※ 月々のお支払例は目安の試算となりますので、実際の金額とは異なる場合がございます。詳しくは店舗までお問合わせください。
- さいたま市見沼区東大宮4丁目
-
JR東北本線『東大宮』 徒歩8分 (約640m)
さいたま市見沼区東大宮4丁目マンション | 物件情報
◇専有面積約44㎡!◇リノベーション2026年4月完成予定!◇2DK◇住宅ローン相談乗ります!
まずは私たちにご連絡ください!どんな些細なことでも力になります!
◇住宅ローン相談◇
「他社で断られた」
「審査が通らない」
「返済をできるだけ抑えたい」
そんなお悩みもぜひお聞かせください。
お客様一人ひとりに寄り添い、これからの暮らしを見据えた“最適なご提案”をいたします。
◇現地見学会開催中◇
平日や仕事終わりの夜でも「今日見てみたい!」そんなときでもOK♪
お電話1本でスタッフがすぐに駆けつけます!
048-762-8871こちらから
◇ご案内方法◇
ご来店いただかなくても、現地待ち合わせ・自宅、最寄りまでの送迎サービスで柔軟に対応!周辺環境や他にも見たい物件もあわせてご案内できます!
◇ご来店方法◇
ナビで「ハウスドゥさいたま北宿通り」で検索♪
ローソンストア100に駐車場に4台駐車可能!
手ぶらでOK!キッズスペース完備でお子様ずれでも問題なし!
◇売却査定相談◇
「急な転勤」「相続による売却」「金銭的な理由」など住まいの売却をそれぞれです。
仲介はもちろんのこと、弊社独自のネットワークで買取案件もご相談できます!
物件の設備
- 公営水道
- 下水道
- 都市ガス
- 給湯
- コンロ三口
- ガスコンロ付
- システムキッチン
- ユニットバス
- オートバス
- 共同バス
- 追焚機能
- 浴室乾燥機
- トイレ
- 温水洗浄便座
- 室内洗濯機置場
- 洗髪洗面化粧台
- 省エネ給湯器
- モニタ付インターホン
- 全室フローリング
- フローリング張替
- 全居室収納
- シューズボックス
- バルコニー
- 宅配BOX
- エレベーター
- 駐輪場
- バイク置場
物件の特徴
- 管理人日勤
- 内装リフォーム済
- 南東角部屋
- 耐震構造
- 即入居可
物件詳細情報
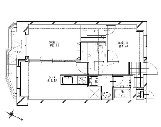
| 価格 | 2,280万円 | 間取り | 2DK |
|---|---|---|---|
| 物件種別 | 中古マンション | ||
| 所在地 | 埼玉県さいたま市見沼区東大宮4丁目 | ||
| アクセス |
|
||
| 専有面積 | 壁芯 44.02㎡ | 所在階 | 6階建/3階部分 |
| 主要採光 | 南西向 | バルコニー | 南西向4.60㎡ |
| その他 | |||
| 権利 | 所有権 |
||
| 保証・評価 | |||
| リフォーム | 【水回り】2026年04月予定 キッチン・浴室・トイレ・洗面・給湯器・給排水管 【内装】2026年04月予定 壁、天井 ・床 ・全室クロス ・建具 【その他】2026年01月 ハウスクリーニング |
||
| 総戸数 | 43戸 | 面積 | |
| 築年月 | 1987年(昭和62年)09月築 | 建物構造 | RC |
| 施工会社 | |||
| 管理会社 | 株式会社あなぶきハウジングサービス | 管理方式 | 全部委託 日勤管理 管理組合あり |
| 駐車場 | 【駐車場】空無 【バイク置き場】空有 料金:500円/月 【駐輪場】空有 料金:100円/月 |
||
| 都市計画 | 用途地域 | 1種住居 | |
| 建ぺい/容積率 | 土地国土法 | ||
| 法令制限 | |||
| 小学区 | 見沼小学校 徒歩9分 (約700m) | 中学区 | 泰平中学校 徒歩20分 (約1600m) |
| 現況 | 空 | 引渡 | 即 |
| 管理費 | 9,540円/月 | 修繕積立金 | 9,510円/月 |
| その他費用 | |||
| 備考 | |||
| 物件番号 | 4637251 | 取引態様 | 媒介 |
取扱店舗情報
ハウスドゥ さいたま北宿通り 株式会社アークウェイホーム 店舗詳細ページへ
| 電話番号 | 048-762-8871 |
|---|---|
| 所在地 | 〒336-0907 埼玉県さいたま市緑区道祖土1丁目26-5 |
| 営業時間 | 9:00~18:00 |
| 定休日 | 水曜日 |
| 宅建免許番号 | 埼玉県知事(1)第25521号 |
| アクセス | 店舗への地図はこちら |

来店ご予約
埼玉県さいたま市見沼区で価格が似ている物件はこちら
- 埼玉県
マイページ物件数 - 3,466件
最近見た物件
-
-

-
- 中古一戸建て
- 1,480万円
-
一宮市今伊勢町宮後字下苧島
-
名鉄名古屋本線今伊勢
-
埼玉県中古マンション新着物件
-
-

-
- 中古マンション
- 1,890万円
-
さいたま市見沼区春野1丁目
-
湘南新宿ライン宇須東大宮駅
-
-
-

-
- 中古マンション
- 1,480万円
-
さいたま市見沼区大字東新井
-
JR東北本線大宮駅
-
-
-

-
- 中古マンション
- 2,690万円
-
さいたま市見沼区春野3丁目
-
湘南新宿ライン宇須東大宮駅
-
-
-

-
- 中古マンション
- 1,950万円
-
さいたま市見沼区大字蓮沼
-
東武野田線大和田駅
-
-
-

-
- 中古マンション
- 2,280万円
-
さいたま市見沼区東大宮4丁目
-
JR東北本線東大宮駅
-
-
-

-
- 中古マンション
- 1,980万円
-
さいたま市見沼区春野3丁目
-
湘南新宿ライン宇須東大宮駅
-
-
-

-
- 中古マンション
- 3,680万円
-
さいたま市見沼区東大宮4丁目
-
湘南新宿ライン宇須東大宮駅
-
- お近くの店舗を探す
-
おすすめ物件
-
-

-
- 中古マンション
- 4,490万円
-
戸田市下前2丁目
-
JR埼京線戸田公園
-
-
-

-
- 中古マンション
- 5,380万円
-
戸田市南町
-
JR埼京線戸田公園
-
-
-

-
- 中古マンション
- 2,980万円
-
川口市弥平1丁目
-
埼玉高速鉄道川口元郷
-
-
-

-
- 中古マンション
- 3,380万円
-
川口市川口2丁目
-
JR京浜東北・根岸線川口
-
-
-

-
- 中古マンション
- 2,650万円
-
入間市黒須1丁目
-
西武池袋・豊島線入間市
-
-
-

-
- 中古マンション
- 4,899万円
-
戸田市本町5丁目
-
JR埼京線戸田公園
-
-
-

-
- 中古マンション
- 1,990万円
-
越谷市千間台西1丁目
-
東武伊勢崎・大師線せんげん台
-
-
-

-
- 中古マンション
- 3,999万円
-
戸田市上戸田2丁目
-
JR埼京線戸田公園
-
-
-

-
- 中古マンション
- 4,080万円
-
戸田市新曽南3丁目
-
JR埼京線戸田公園
-
-
-

-
- 中古マンション
- 2,398万円
-
川口市朝日3丁目
-
埼玉高速鉄道南鳩ヶ谷
-






担当エージェント:笠井 航汰
~☆☆当日で案内可能な物件☆☆~さいたまの土地、戸建て、マンションのご相談はハウスドゥさいたま北宿通りにお気軽にお問い合わせ下さい!!