エルパークスクエア京都鴨川 京都市左京区吉田河原町の中古マンション
NEW 03.26掲載情報更新日:2026年04月13日 次回更新予定日:2026年04月27日
- 1億3,400万円
-
- 借入ご希望金額
万円 - 借入期間
年 - 借入金利
% - 月々のお支払い金額
円
- 借入ご希望金額
※ 月々のお支払例は目安の試算となりますので、実際の金額とは異なる場合がございます。詳しくは店舗までお問合わせください。
- 京都市左京区吉田河原町
-
京阪鴨東線『神宮丸太町』 徒歩9分 (約700m)
京阪鴨東線『出町柳』 徒歩9分 (約700m)
京都市左京区吉田河原町マンション | 物件情報
■鴨川望む、最上階・南西角住戸■中庭の緑と四季の風情に包まれる穏やかな一邸
(建物特徴)
■2025年8月リフォーム済
気になる箇所を丁寧に整えた、清潔感あふれる室内
■コンシェルジュサービス
日々の暮らしを細やかにサポート。安心と利便性が共生
■ペット飼育可能(規約有)
大切な愛犬・愛猫と、鴨川の自然を身近に感じる暮らし
(周辺環境)
■京阪 神宮丸太町駅まで徒歩9分
■京阪 出町柳駅まで徒歩9分
■第四錦林小学校まで徒歩5分
■近衛中学校まで徒歩9分
■ペスタロッチ保育園まで徒歩1分
■風の子保育園まで徒歩4分
■あおぞら保育園まで徒歩4分
■ライフ川端東一条店まで徒歩3分
■DCM川端店まで徒歩6分
■ドラッグユタカ百万遍店まで徒歩12分
■京都吉田牛ノ宮郵便局まで徒歩2分
■京都大学医学部附属病院まで徒歩12分
□購入相談会同時開催中□
・住宅ローン
借入限度額や自分に合った支払い額を知りたい方
お家探しの前に資金計画を立てたい方、住替えをお考えの方、他社で断られた方…
一度ご相談ください。専門スタッフがわかりやすくご説明します!
物件の設備
- オール電化
- 公営水道
- 公共下水
- コンロ三口
- バス
- トイレ
- タンクレストイレ
- 室内洗濯機置場
- 洗面所独立
- インターネット接続可
- LDK18畳以上
- フローリング
- フローリング張替
- クローゼット
- ウォークインクローゼット
- 玄関収納
- 収納スペース
- 全居室収納
- シューズボックス
- バルコニー
- 2面バルコニー
- エレベーター
- 駐輪場
- バイク置場
物件の特徴
- 管理人常駐
- フロントサービス
- 内装リフォーム済
- 角部屋
- 南西角部屋
- 南向
- リバーサイド
- 陽当り良好
- 最上階
- 上階無
物件詳細情報
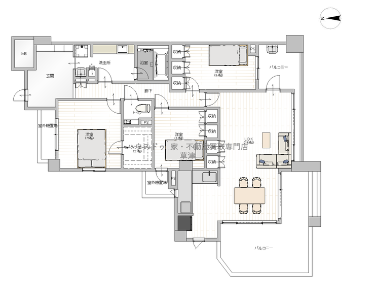
| 価格 | 1億3,400万円 | 間取り | 3LDK |
|---|---|---|---|
| 物件種別 | 中古マンション | ||
| 所在地 | 京都府京都市左京区吉田河原町 | ||
| アクセス |
|
||
| 専有面積 | 96.68㎡ | 所在階 | 7階建/7階部分 |
| 主要採光 | バルコニー | 南西向16.62㎡ | |
| その他 | |||
| 権利 | 所有権 |
||
| 保証・評価 | |||
| リフォーム | 【水回り】2025年08月 トイレ・洗面 【内装】2025年08月 壁、天井 ・床 ・建具 ・他[クリーニング] |
||
| 総戸数 | 170戸 | 面積 | |
| 築年月 | 2005年(平成17年)01月築 | 建物構造 | RC |
| 施工会社 | |||
| 管理会社 | 関電コミュニティ株式会社 | 管理方式 | 全部委託 常駐管理 |
| 駐車場 | 【駐車場】空有 料金帯:14,000円/月~18,000円/月 【バイク置き場】空有 【駐輪場】空有 |
||
| 都市計画 | 用途地域 | 2種住居 | |
| 建ぺい/容積率 | 土地国土法 | ||
| 法令制限 | |||
| 小学区 | 第四錦林小学校 徒歩5分 (約400m) | 中学区 | 近衛中学校 徒歩9分 (約700m) |
| 現況 | 空 | 引渡 | 相談 |
| 管理費 | 15,470円/月 | 修繕積立金 | 13,540円/月 |
| その他費用 | 町内会費:200円/月 インターネット:2500円/月 |
||
| 周辺環境 | 出町柳駅 徒歩9分 (約700m) 京阪電車 神宮丸太町駅 徒歩9分 (約700m) ペスタロッチ保育園 徒歩1分 (約10m) 京都市立第四錦林小学校 徒歩5分 (約400m) 京都市立近衛中学校 徒歩9分 (約720m) 吉田河原公園 徒歩1分 (約50m) 鴨川の遊歩道 徒歩3分 (約210m) ライフ川端東一条店 徒歩3分 (約230m) 京都吉田牛ノ宮郵便局 徒歩2分 (約160m) DCM川端店 徒歩6分 (約480m) |
||
| 備考 | □2025年8月リフォーム済:フローリング施工、玄関・廊下・洗面室・トイレ床タイル貼替、壁・天井クロス貼替、建具交換、タンクレストイレ交換、キッチン扉・窓枠シート貼替、クリーニング □ペット飼育可(細則あり) □駐車場:月額14,000~18,000円、バイク置場:月額1,000~1,200円、自転車置場:月額200円(※空要確認) ・最上階、角住戸(南・西)! ・コンシェルジュサービス! |
||
| 物件番号 | 4652862 | 取引態様 | 一般媒介 |
取扱店舗情報
ハウスドゥ 家・不動産買取専門店 草津 株式会社 ハウスドゥ・ジャパン 店舗詳細ページへ
| 電話番号 | 077-561-8777 |
|---|---|
| 所在地 | 〒525-0037 滋賀県草津市西大路町5-4 |
| 営業時間 | 9:00~17:30 |
| 定休日 | 水曜日 |
| 宅建免許番号 | 国土交通大臣(2)第9821号 |
| アクセス | 店舗への地図はこちら |

来店ご予約
- 京都府
マイページ物件数 - 4,560件
最近見た物件
-
-

-
- 土地
- 500万円
-
旭川市豊岡十二条4丁目
-
JR函館本線旭川
-
-
-

-
- 中古マンション
- 4,099万円
-
川口市金山町
-
JR京浜東北・根岸線川口
-
-
-

-
- 中古一戸建て
- 1,450万円
-
塩尻市大字広丘吉田
-
JR篠ノ井線広丘
-
京都府中古マンション新着物件
-
-

-
- 中古マンション
- 750万円
-
長岡京市奥海印寺片山田
-
阪急電鉄京都線西山天王山駅
-
-
-

-
- 中古マンション
- 1,180万円
-
長岡京市長岡2丁目
-
阪急電鉄京都線長岡天神駅
-
-
-

-
- 中古マンション
- 1,480万円
-
木津川市兜台2丁目
-
近鉄京都線
-
-
-

-
- 中古マンション
- 750万円
-
長岡京市竹の台
-
阪急電鉄京都線長岡天神駅
-
-
-

-
- 中古マンション
- 690万円
-
長岡京市今里西ノ口
-
阪急電鉄京都線長岡天神駅
-
-
-

-
- 中古マンション
- 2,590万円
-
長岡京市八条が丘1丁目
-
阪急電鉄京都線長岡天神駅
-
-
-

-
- 中古マンション
- 1,580万円
-
長岡京市友岡1丁目
-
阪急電鉄京都線長岡天神駅
-
- お近くの店舗を探す
-
おすすめ物件
-
-

-
- 中古マンション
- 1,580万円
-
京田辺市河原北口
-
近鉄京都線新田辺
-
-
-

-
- 中古マンション
- 1,480万円
-
京田辺市草内鐘鉦割
-
近鉄京都線新田辺
-
-
-

-
- 中古マンション
- 880万円
-
舞鶴市字余部上
-
JR舞鶴線東舞鶴
-
-
-

-
- 中古マンション
- 5,680万円
-
京田辺市山手東2丁目
-
JR片町線松井山手
-
-
-

-
- 中古マンション
- 1,780万円
-
京田辺市河原北口
-
近鉄京都線新田辺
-


































担当エージェント:坂元颯太
京都の情緒を象徴する鴨川を一望する、最上階・南西角住戸。中庭の豊かな緑や鴨川沿いの草木など四季の移ろいを身近に分かち合い、室内には心地よい光と風が舞い込む、穏やかな一邸です。
2025年8月にリフォームを終えた室内は、気になる箇所を丁寧に整えられ、すぐにご入居いただける清潔感に満ちています。日々の暮らしを細やかに支えるコンシェルジュサービスや、大切なペットとのお住まいが可能な点も、居住の質を深めてくれます。
利便性の高さも大きな魅力です。スーパーまで徒歩3分、保育園が徒歩1分圏内と、生活環境が驚くほど整っています。さらに京阪「神宮丸太町」「出町柳」の2駅が利用可能で、鴨川の自然に癒やされる静謐な時間と、都市の利便性を自在に使い分けることができます。
この場所だからこそ叶う、ゆとりある京都ライフ。ぜひ現地でその心地よさをご体感ください。
物件の詳細・現地案内はハウスドゥ草津までお問合せください。