ライオンズマンション第2中島公園通り 札幌市中央区南十二条西1丁目の中古マンション
NEW 04.05掲載情報更新日:2026年04月12日 次回更新予定日:2026年04月26日
- 1,790万円
-
- 借入ご希望金額
万円 - 借入期間
年 - 借入金利
% - 月々のお支払い金額
円
- 借入ご希望金額
※ 月々のお支払例は目安の試算となりますので、実際の金額とは異なる場合がございます。詳しくは店舗までお問合わせください。
- 札幌市中央区南十二条西1丁目
-
札幌市南北線『中島公園』 徒歩5分 (約400m)
札幌市南北線『幌平橋』 徒歩6分 (約480m)
札幌市中央区南十二条西1丁目マンション | 物件情報
地下鉄「中島公園」駅徒歩5分。フルリノベーション済みの角部屋で、安心のアフターサービス保証付き!
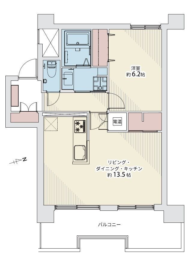
札幌市営地下鉄南北線「中島公園」駅から徒歩5分、「幌平橋」駅からも徒歩6分という、ダブルアクセスが可能な好立地に位置する「ライオンズマンション第2中島公園通り」をご紹介します。 本物件の最大の魅力は、令和8年3月に完了予定の充実したフルリノベーション内容です。 システムキッチンには便利な食洗機を完備し、浴室には保温浴槽を採用。 さらに、全室採光の角部屋設計により、明るく開放感のある13.5帖のLDKと6.2帖の洋室が確保されています。 また、住み始めてからの安心を支える「アフターサービス保証」が部位別に最長5年間付帯している点も見逃せません。 長期修繕計画も策定されており、管理体制が整った新耐震基準のマンションです。 近隣にはスーパー「ラルズマート」が徒歩10分圏内にあり、日常のお買い物もスムーズ。 都市の利便性を享受しながら、安心と快適さを手に入れたい方に最適な住まいです。
物件の設備
- 公営水道
- 下水道
- 公共下水
- 都市ガス
- 浄水器
- 食器洗浄乾燥機
- コンロ三口
- システムキッチン
- バス
- ユニットバス
- トイレ
- 温水洗浄便座
- B/T別室
- 室内洗濯機置場
- 洗髪洗面化粧台
- 洗面所独立
- 人感照明センサー
- オートロック
- モニタ付インターホン
- モニタ付オートロック
- 全居室6畳以上
- 2面採光
- 複層ガラス
- 全居室複層ガラス
- フローリング
- 全室フローリング
- フローリング張替
- 網戸
- クローゼット
- 納戸
- 収納スペース
- バルコニー
- エレベーター
物件の特徴
- 管理人巡回
- 内装リフォーム済
- リバーサイド
- 緑豊かな住宅地
- 都市近郊
- 即入居可
- ペット不可
- 事務所不可
物件詳細情報
| 価格 | 1,790万円 | 間取り | 1LDK |
|---|---|---|---|
| 物件種別 | 中古マンション | ||
| 所在地 | 北海道札幌市中央区南十二条西1丁目2-25 | ||
| アクセス |
|
||
| 専有面積 | 壁芯 52.60㎡ | 所在階 | 11階建/6階部分 |
| 主要採光 | 東向 | バルコニー | 東向10.89㎡ |
| その他 | |||
| 権利 | 所有権 |
||
| 保証・評価 | |||
| リフォーム | 【水回り】2026年03月 キッチン・浴室・トイレ・洗面・給湯器 【内装】2026年03月 壁、天井 ・床 ・全室クロス |
||
| 総戸数 | 39戸 | 面積 | |
| 築年月 | 1984年(昭和59年)11月築 | 建物構造 | SRC |
| 施工会社 | 東海興業 | ||
| 管理会社 | 大京アステージ | 管理方式 | 全部委託 巡回管理 |
| 駐車場 | 【駐車場】空有 料金:18,000円/月 |
||
| 都市計画 | 用途地域 | ||
| 建ぺい/容積率 | 土地国土法 | ||
| 法令制限 | |||
| 小学区 | 資生館小学校 徒歩22分 (約1700m) | 中学区 | 中島中学校 徒歩9分 (約700m) |
| 現況 | 空 | 引渡 | 即 |
| 管理費 | 12,620円/月 | 修繕積立金 | 17,880円/月 |
| その他費用 | |||
| 備考 | |||
| 物件番号 | 4667100 | 取引態様 | 媒介 |
取扱店舗情報
| 電話番号 | 011-867-0225 |
|---|---|
| 所在地 | 〒005-0004 北海道札幌市南区澄川四条3丁目1-7 澄川4-3ビル1階 |
| 営業時間 | 9:00~18:00 |
| 定休日 | 火曜日、水曜日、年末年始 |
| 宅建免許番号 | 北海道知事 石狩(1)第9729号 |
| アクセス | 店舗への地図はこちら |

来店ご予約
北海道札幌市中央区で価格が似ている物件はこちら
- 北海道
マイページ物件数 - 6,435件
北海道中古マンション新着物件
-
-

-
- 中古マンション
- 1,390万円
-
札幌市中央区北四条西25丁目
-
札幌市東西線西28丁目駅
-
-
-

-
- 中古マンション
- 1,390万円
-
札幌市西区琴似一条6丁目
-
札幌市東西線琴似駅
-
-
-

-
- 中古マンション
- 1,390万円
-
札幌市中央区南十七条西14丁目
-
札幌市軌道線西線16条駅
-
-
-

-
- 中古マンション
- 3,590万円
-
札幌市中央区宮の森三条7丁目
-
札幌市東西線西28丁目駅
-
-
-

-
- 中古マンション
- 3,590万円
-
札幌市中央区宮の森三条7丁目
-
札幌市東西線西28丁目駅
-
-
-

-
- 中古マンション
- 2,690万円
-
札幌市東区北二十条東8丁目
-
札幌市東豊線東区役所前駅
-
-
-

-
- 中古マンション
- 1,790万円
-
札幌市中央区南十二条西1丁目
-
札幌市南北線中島公園駅
-
- お近くの店舗を探す
-
おすすめ物件
-
-

-
- 中古マンション
- 3,390万円
-
札幌市東区北十条東12丁目
-
札幌市東豊線環状通東
-
-
-

-
- 中古マンション
- 2,680万円
-
小樽市築港
-
JR函館本線小樽築港
-
-
-

-
- 中古マンション
- 2,100万円
-
小樽市色内1丁目
-
JR函館本線小樽
-
-
-

-
- 中古マンション
- 470万円
-
札幌市西区山の手四条10丁目
-
札幌市東西線琴似
-
-
-

-
- 中古マンション
- 1,799万円
-
札幌市北区あいの里一条6丁目
-
JR札沼線あいの里教育大
-
-
-

-
- 中古マンション
- 880万円
-
旭川市三条通2丁目
-
JR函館本線旭川
-
-
-

-
- 中古マンション
- 2,290万円
-
札幌市中央区北二条西14丁目
-
札幌市東西線西18丁目
-
-
-

-
- 中古マンション
- 2,190万円
-
札幌市中央区北五条西16丁目
-
JR函館本線桑園
-
-
-

-
- 中古マンション
- 2,080万円
-
札幌市西区発寒十一条11丁目
-
JR函館本線発寒
-
-
-

-
- 中古マンション
- 1,490万円
-
札幌市西区二十四軒一条2丁目
-
札幌市東西線二十四軒
-















