朝日プラザ本厚木 2階 厚木市妻田北2丁目の中古マンション
NEW 04.18掲載情報更新日:2026年04月18日 次回更新予定日:2026年05月02日
- 790万円
-
- 借入ご希望金額
万円 - 借入期間
年 - 借入金利
% - 月々のお支払い金額
円
- 借入ご希望金額
※ 月々のお支払例は目安の試算となりますので、実際の金額とは異なる場合がございます。詳しくは店舗までお問合わせください。
- 厚木市妻田北2丁目
-
小田急小田原線『本厚木』 バス乗車14分 睦合東中学校入口 停 徒歩3分 (約240m)
厚木市妻田北2丁目マンション | 物件情報
南東角部屋につき陽当たり良好です。 オートロックモニター付き 徒歩圏にスーパー・ドラッグストアあり。
南東角部屋につき陽当たり良好です。 オートロックモニター付き 徒歩圏にスーパー・ドラッグストアあり。
物件の設備
- 公営水道
- 公共下水
- 都市ガス
- 給湯
- コンロ三口
- システムキッチン
- バス
- シャワー
- トイレ
- B/T別室
- 室内洗濯機置場
- 洗髪洗面化粧台
- 洗面所独立
- オートロック
- モニタ付オートロック
- 火災警報器/報知機
- 和室
- フローリング
- 一部フローリング
- クローゼット
- 押入
- シューズボックス
- バルコニー
- エレベーター
物件の特徴
- 管理人日勤
- 角部屋
- 南東角部屋
- 耐震構造
- 整備された歩道
- スーパーが近い
- 閑静な住宅街
- 周辺交通量少なめ
- 陽当り良好
- 平坦地
- 外観タイル張
物件詳細情報
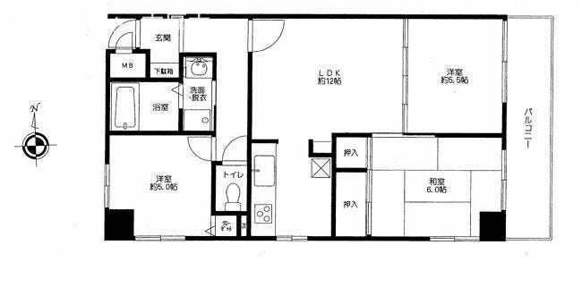
| 価格 | 790万円 | 間取り | 3LDK |
|---|---|---|---|
| 物件種別 | 中古マンション | ||
| 所在地 | 神奈川県厚木市妻田北2丁目 | ||
| アクセス |
|
||
| 専有面積 | 壁芯 59.87㎡ | 所在階 | 6階建/2階部分 |
| 主要採光 | 東向 | バルコニー | 東向8.00㎡ |
| その他 | |||
| 権利 | 所有権 |
||
| 保証・評価 | |||
| リフォーム | |||
| 総戸数 | 27戸 | 面積 | |
| 築年月 | 1991年(平成3年)03月築 | 建物構造 | SRC |
| 施工会社 | |||
| 管理会社 | ファシリティーパートナーズ㈱ | 管理方式 | 全部委託 日勤管理 |
| 駐車場 | |||
| 都市計画 | 用途地域 | 1種住居 | |
| 建ぺい/容積率 | 土地国土法 | ||
| 法令制限 | |||
| 小学区 | 清水小学校 徒歩11分 (約850m) | 中学区 | 睦合東中学校 徒歩5分 (約350m) |
| 現況 | 居住中 | 引渡 | 相談 |
| 管理費 | 17,868円/月 | 修繕積立金 | 10,180円/月 |
| その他費用 | |||
| 備考 | |||
| 物件番号 | 4682329 | 取引態様 | 媒介 |
取扱店舗情報
| 電話番号 | 0462-44-4441 |
|---|---|
| 所在地 | 〒243-0016 神奈川県厚木市田村町8-8柳田ビル1階 |
| 営業時間 | 9:00~18:00 |
| 定休日 | 水曜日、年末年始 |
| 宅建免許番号 | 神奈川県知事(1)第33037号 |
| アクセス | 店舗への地図はこちら |

来店ご予約
神奈川県厚木市で価格が似ている物件はこちら
- 神奈川県
マイページ物件数 - 3,604件
最近見た物件
-
-

-
- 収益
- 1,180万円
-
江戸川区北小岩5丁目
-
JR総武・中央緩行線小岩
-
-
-

-
- 収益
- 3,000万円
-
大分市大字津守
-
JR豊肥本線滝尾
-
-
-

-
- 新築一戸建て
- 3,690万円
-
糸満市字兼城
-
西崎入口
-
神奈川県中古マンション新着物件
-
-

-
- 中古マンション
- 2,380万円
-
平塚市大原
-
JR東海道本線平塚駅
-
-
-

-
- 中古マンション
- 790万円
-
厚木市妻田北2丁目
-
小田急小田原線本厚木駅
-
-
-

-
- 中古マンション
- 3,199万円
-
川崎市多摩区菅北浦4丁目
-
京王相模原線京王稲田堤駅
-
-
-

-
- 中古マンション
- 1,980万円
-
横須賀市平作8丁目
-
JR横須賀線衣笠駅
-
-
-

-
- 中古マンション
- 3,680万円
-
川崎市多摩区堰2丁目
-
JR南武線久地駅
-
-
-

-
- 中古マンション
- 3,090万円
-
川崎市麻生区高石6丁目
-
小田急小田原線百合ヶ丘駅
-
-
-

-
- 中古マンション
- 4,980万円
-
川崎市宮前区小台2丁目
-
東急田園都市線宮前平駅
-
- お近くの店舗を探す
-
おすすめ物件
-
-

-
- 中古マンション
- 3,180万円
-
平塚市宝町
-
JR東海道本線平塚
-
-
-

-
- 中古マンション
- 1,580万円
-
厚木市森の里2丁目
-
小田急小田原線本厚木
-
-
-

-
- 中古マンション
- 1,180万円
-
平塚市田村2丁目
-
JR東海道本線平塚
-
-
-

-
- 中古マンション
- 4,480万円
-
横浜市中区伊勢佐木町5丁目
-
JR京浜東北・根岸線関内
-
-
-

-
- 中古マンション
- 2,180万円
-
平塚市四之宮6丁目
-
JR東海道本線平塚
-
-
-

-
- 中古マンション
- 8,780万円
-
横浜市中区山下町
-
横浜高速鉄道みなとみらい線元町・中華街
-
-
-

-
- 中古マンション
- 7,590万円
-
横浜市中区山下町
-
JR根岸線関内
-
-
-

-
- 中古マンション
- 3,899万円
-
横浜市中区新山下3丁目
-
横浜高速鉄道みなとみらい線元町・中華街
-
-
-

-
- 中古マンション
- 2,680万円
-
横浜市磯子区洋光台6丁目
-
JR京浜東北・根岸線洋光台
-
-
-

-
- 中古マンション
- 5,780万円
-
横浜市中区新山下3丁目
-
横浜高速鉄道みなとみらい線元町・中華街
-
























南東角部屋につき陽当たり良好です。 オートロックモニター付き 徒歩圏にスーパー・ドラッグストアあり。