日商岩井西新井マンション 足立区島根2丁目の中古マンション
NEW 04.27掲載情報更新日:2026年04月27日 次回更新予定日:2026年05月11日
- 2,890万円
-
- 借入ご希望金額
万円 - 借入期間
年 - 借入金利
% - 月々のお支払い金額
円
- 借入ご希望金額
※ 月々のお支払例は目安の試算となりますので、実際の金額とは異なる場合がございます。詳しくは店舗までお問合わせください。
- 足立区島根2丁目
-
東武伊勢崎・大師線『西新井』 徒歩18分 (約1440m)
東武伊勢崎・大師線『梅島』 徒歩17分 (約1300m)
足立区島根2丁目マンション | 物件情報
室内リフォーム済×即入居可、生活施設充実の快適マンション
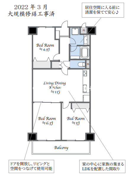
室内リフォーム済みのきれいなお部屋で、新生活をすぐにスタートできるマンションです。システムキッチンやトイレの新規交換、クロス全室張替など、快適性を高めるリフォームが施されております。リビングと隣接する居室は扉を開放することで一体利用も可能で、ライフスタイルに合わせた使い方ができます。
徒歩圏内にはスーパーやコンビニ、ドラッグストアが揃い、日々のお買い物にも便利な立地です。小学校も近く、子育て世帯にも安心の住環境。大規模修繕工事実施済で管理体制も整っており、長く安心してお住まいいただけます。空室のためご内覧も随時可能です。
物件の設備
- 公営水道
- 公共下水
- 給湯
- システムキッチン
- ユニットバス
- トイレ
- B/T別室
- 室内洗濯機置場
- 洗面所独立
- 照明器具
- クローゼット
- クローゼット3箇所
- シューズボックス
- バルコニー
- エレベーター
物件の特徴
- 管理人日勤
- スーパーが近い
- 閑静な住宅街
- 市街地が近い
- ペット不可
物件詳細情報
| 価格 | 2,890万円 | 間取り | 3LDK |
|---|---|---|---|
| 物件種別 | 中古マンション | ||
| 所在地 | 東京都足立区島根2丁目 | ||
| アクセス |
|
||
| 専有面積 | 壁芯 61.60㎡ | 所在階 | 8階建/5階部分 |
| 主要採光 | 西向 | バルコニー | 西向7.28㎡ |
| その他 | |||
| 権利 | 所有権 |
||
| 保証・評価 | |||
| リフォーム | |||
| 総戸数 | 面積 | ||
| 築年月 | 1977年(昭和52年)02月築 | 建物構造 | RC |
| 施工会社 | |||
| 管理会社 | 管理方式 | 全部委託 日勤管理 管理組合あり | |
| 駐車場 | 【駐車場】空無 |
||
| 都市計画 | 用途地域 | 準工業 | |
| 建ぺい/容積率 | 土地国土法 | ||
| 法令制限 | |||
| 小学区 | 中島根小学校 徒歩4分 (約300m) | 中学区 | 六月中学校 徒歩12分 (約900m) |
| 現況 | 空 | 引渡 | 相談 |
| 管理費 | 11,000円/月 | 修繕積立金 | 11,412円/月 |
| その他費用 | |||
| 周辺環境 | あさひ病院 徒歩5分 (約360m) ヤマダデンキ テックランド足立店 徒歩5分 (約370m) 足立区立平野さくら公園 徒歩5分 (約350m) ローソン 島根一丁目店 徒歩3分 (約220m) セブン-イレブン 足立平野1丁目店 徒歩4分 (約270m) 足立区 平野住区センター 徒歩5分 (約370m) ピオーネ足立 徒歩7分 (約490m) 中島根小学校 徒歩6分 (約420m) 足立つくし幼稚園 徒歩8分 (約620m) MEGAドン・キホーテ 環七梅島店 徒歩6分 (約450m) |
||
| 備考 | 室内リフォーム済(システムキッチン・トイレ新規交換、クロス全室張替、床材施工、給湯器交換、ハウスクリーニング等)。空室につき即入居可能です。 SRC・RC造9階建5階部分、専有面積61.60㎡の3LDK、バルコニー7.28㎡。2022年に大規模修繕工事実施済で管理体制良好。 周辺にはスーパー約400m、コンビニ約200m、ドラッグストア約300mと生活利便性に優れ、小学校約330mで通学も安心です。 管理費・修繕積立金は将来変更予定あり。ペット飼育不可。現況と図面が異なる場合は現況優先となります。 |
||
| 物件番号 | 4693540 | 取引態様 | 媒介 |
取扱店舗情報
ハウスドゥ 足立平野環七通り 株式会社CiansStep 店舗詳細ページへ
| 電話番号 | 03-5809-6190 |
|---|---|
| 所在地 | 〒121-0076 東京都足立区平野1丁目15-27 |
| 営業時間 | 9:00~18:00 |
| 定休日 | 火曜日、水曜日 |
| 宅建免許番号 | 東京都知事(1)第113026号 |
| アクセス | 店舗への地図はこちら |

来店ご予約
東京都足立区で価格が似ている物件はこちら
- 東京都
マイページ物件数 - 5,920件
最近見た物件
-
-

-
- 新築一戸建て
- 2,998万円
-
上益城郡嘉島町大字上六嘉
-
JR豊肥本線新水前寺
-
-
-

-
- 中古一戸建て
- 3,090万円
-
豊橋市花中町
-
豊橋鉄道渥美線柳生橋
-
-
-

-
- 中古マンション
- 3,890万円
-
福岡市博多区住吉4丁目
-
JR鹿児島本線博多
-
東京都中古マンション新着物件
- お近くの店舗を探す
-
おすすめ物件
-
-

-
- 中古マンション
- 3,680万円
-
葛飾区亀有2丁目
-
JR千代田・常磐緩行線亀有
-
-
-

-
- 中古マンション
- 2,799万円
-
足立区鹿浜6丁目
-
日暮里舎人ライナー谷在家
-
-
-

-
- 中古マンション
- 4,980万円
-
大田区西蒲田8丁目
-
JR京浜東北・根岸線蒲田
-
-
-

-
- 中古マンション
- 4,180万円
-
足立区西新井5丁目
-
日暮里舎人ライナー西新井大師西
-
-
-

-
- 中古マンション
- 4,190万円
-
八王子市子安町1丁目
-
JR中央本線八王子
-
-
-

-
- 中古マンション
- 2,580万円
-
青梅市新町3丁目
-
JR青梅線小作
-
-
-

-
- 中古マンション
- 3,498万円
-
八王子市万町
-
JR中央本線八王子
-
-
-

-
- 中古マンション
- 2,830万円
-
葛飾区水元4丁目
-
JR千代田・常磐緩行線金町
-
-
-

-
- 中古マンション
- 4,390万円
-
足立区西保木間1丁目
-
東武伊勢崎・大師線竹ノ塚
-
-
-

-
- 中古マンション
- 2,180万円
-
日野市大坂上4丁目
-
JR中央本線日野
-


















担当エージェント:穴井一樹
室内はリフォーム済みで、初めてご覧いただいた際にも好印象を持っていただける仕上がりです。キッチン・トイレなどの水回りも新しく、すぐに快適な生活を始められます。
周辺にはスーパーやコンビニ、ドラッグストアが徒歩圏に揃っており、生活利便性の高さも魅力です。小学校も近いため、子育て世帯にもおすすめできる住環境です。
また、空室のためお客様のご都合に合わせてご内覧可能です。実際の陽当たりや室内の広さ、生活動線などぜひ現地でご確認ください。お気軽にお問い合わせください。