青木町ハイツ2号棟 川口市中青木3丁目の中古マンション
NEW 04.27掲載情報更新日:2026年04月27日 次回更新予定日:2026年05月11日
- 1,580万円
-
- 借入ご希望金額
万円 - 借入期間
年 - 借入金利
% - 月々のお支払い金額
円
- 借入ご希望金額
※ 月々のお支払例は目安の試算となりますので、実際の金額とは異なる場合がございます。詳しくは店舗までお問合わせください。
- 川口市中青木3丁目
-
JR京浜東北・根岸線『川口』 徒歩13分 (約990m)
JR京浜東北・根岸線『西川口』 徒歩24分 (約1900m)
埼玉高速鉄道『川口元郷』 徒歩19分 (約1520m)
川口市中青木3丁目マンション | 物件情報
総戸数191戸の大規模マンション★9階建ての3階部分♪小・中学校に近いためお子様の通学も安心
総戸数191戸の大規模マンション★
◆9階建ての3階部分♪
◆教育・買い物施設が近く住環境良好
物件の設備
- 下水道
- 都市ガス
- バス
- トイレ
- B/T別室
- 宅配BOX
物件の特徴
- 管理人日勤
物件詳細情報
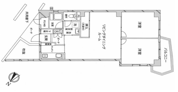
| 価格 | 1,580万円 | 間取り | 2LDK |
|---|---|---|---|
| 物件種別 | 中古マンション | ||
| 所在地 | 埼玉県川口市中青木3丁目 | ||
| アクセス |
|
||
| 専有面積 | 57.76㎡ | 所在階 | 9階建/3階部分 |
| 主要採光 | バルコニー | ||
| その他 | |||
| 権利 | 所有権 |
||
| 保証・評価 | |||
| リフォーム | |||
| 総戸数 | 184戸 | 面積 | |
| 築年月 | 1975年(昭和50年)01月築 | 建物構造 | RCB |
| 施工会社 | |||
| 管理会社 | 大成有楽不動産 | 管理方式 | 全部委託 日勤管理 管理組合あり |
| 駐車場 | |||
| 都市計画 | 用途地域 | 工業 | |
| 建ぺい/容積率 | 土地国土法 | ||
| 法令制限 | |||
| 小学区 | 青木北小学校 徒歩12分 (約960m) | 中学区 | 青木中学校 徒歩15分 (約1170m) |
| 現況 | 居住中 | 引渡 | 期日指定:2026年05月中旬以降 |
| 管理費 | 5,400円/月 | 修繕積立金 | 11,000円/月 |
| その他費用 | |||
| 周辺環境 | オーケー 川口中青木店 徒歩3分 (約170m) 中青木公園 徒歩2分 (約130m) ビッグ・エー 中青木店 徒歩3分 (約190m) 川口市立青木北小学校 徒歩4分 (約290m) 青木錦生幼稚園 徒歩5分 (約380m) たいよう保育園 中青木園 徒歩5分 (約380m) ローソン 川口並木一丁目店 徒歩5分 (約340m) セブンイレブン 川口青木中学校前店 徒歩6分 (約420m) 埼玉県立川口高等技術専門校 徒歩5分 (約400m) 寿康会病院 徒歩7分 (約510m) |
||
| 備考 | |||
| 物件番号 | 4693901 | 取引態様 | 媒介 |
取扱店舗情報
ハウスドゥ 鳩ヶ谷坂下町 株式会社ウェルカムホーム 店舗詳細ページへ
| 電話番号 | 048-242-5180 |
|---|---|
| 所在地 | 〒334-0003 埼玉県川口市坂下町3丁目32-21 |
| 営業時間 | 9:00~18:00 |
| 定休日 | 火曜日、水曜日、年末年始 |
| 宅建免許番号 | 埼玉県知事(1)第25389号 |
| アクセス | 店舗への地図はこちら |

来店ご予約
埼玉県川口市で価格が似ている物件はこちら
- 埼玉県
マイページ物件数 - 3,193件
埼玉県中古マンション新着物件
-
-

-
- 中古マンション
- 1,580万円
-
川口市中青木3丁目
-
JR京浜東北・根岸線川口駅
-
-
-

-
- 収益
- 1,280万円
-
三郷市三郷1丁目
-
JR武蔵野線三郷駅
-
-
-

-
- 中古マンション
- 1,580万円
-
川口市中青木3丁目
-
JR京浜東北・根岸線西川口駅
-
-
-

-
- 中古マンション
- 2,998万円
-
川口市南鳩ヶ谷7丁目
-
埼玉高速鉄道南鳩ヶ谷駅
-
-
-

-
- 中古マンション
- 1,730万円
-
三郷市早稲田7丁目
-
JR武蔵野線三郷駅
-
-
-

-
- 中古マンション
- 4,790万円
-
さいたま市北区土呂町1丁目
-
湘南新宿ライン宇須土呂駅
-
-
-

-
- 中古マンション
- 2,980万円
-
川口市並木1丁目
-
JR京浜東北・根岸線西川口駅
-
- お近くの店舗を探す
-
おすすめ物件
-
-

-
- 中古マンション
- 3,298万円
-
吉川市大字保
-
JR武蔵野線吉川
-
-
-

-
- 中古マンション
- 680万円
-
本庄市柏1丁目
-
湘南新宿ライン高海本庄
-
-
-

-
- 中古マンション
- 5,180万円
-
越谷市レイクタウン8丁目
-
JR武蔵野線越谷レイクタウン
-
-
-

-
- 中古マンション
- 2,999万円
-
越谷市新越谷1丁目
-
東武伊勢崎・大師線新越谷
-
-
-

-
- 中古マンション
- 3,680万円
-
戸田市大字新曽
-
JR埼京線戸田
-
-
-

-
- 中古マンション
- 1,000万円
-
北本市朝日2丁目
-
JR高崎線北本
-
-
-

-
- 中古マンション
- 2,590万円
-
蕨市南町4丁目
-
JR京浜東北・根岸線西川口
-
-
-

-
- 中古マンション
- 2,480万円
-
三郷市早稲田5丁目
-
JR武蔵野線三郷
-
-
-

-
- 中古マンション
- 4,699万円
-
戸田市本町5丁目
-
JR埼京線戸田公園
-
-
-

-
- 中古マンション
- 2,890万円
-
さいたま市北区櫛引町2丁目
-
埼玉新都市交通鉄道博物館(大成)
-




担当エージェント:富重 隆文
お客様に「寄り添う」会社です。不動産の購入は金額も大きく、不安なことがたくさんあると思います。ぜひ、一度ご連絡ください。不動産に関するプロとして、お客様の課題に一つ一つ向き合っていきます。