守口ハイライフA棟 守口市八雲北町3丁目の中古マンション
NEW 04.29掲載情報更新日:2026年04月29日 次回更新予定日:2026年05月13日
- 2,780万円
-
- 借入ご希望金額
万円 - 借入期間
年 - 借入金利
% - 月々のお支払い金額
円
- 借入ご希望金額
※ 月々のお支払例は目安の試算となりますので、実際の金額とは異なる場合がございます。詳しくは店舗までお問合わせください。
- 守口市八雲北町3丁目
-
大阪市谷町線『大日』 徒歩18分 (約1410m)
大阪市谷町線『守口』 徒歩19分 (約1520m)
大阪モノレール『大日』 徒歩19分 (約1510m)
守口市八雲北町3丁目マンション | 物件情報
2026年4月下旬フルリノベーション完成予定! ペット相談 角部屋! 即内見可!
☆月々7.8万円~
☆2026年4月下旬フルリノベーション完成予定
☆最寄駅から東梅田駅まで18分
☆陽当たり良好!
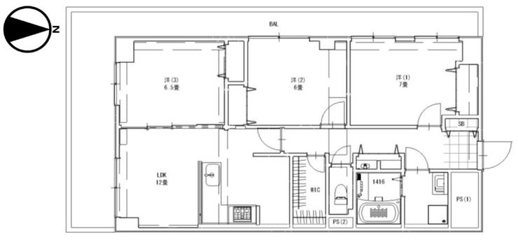
☆12帖LDK
☆2面バルコニー角部屋
☆トランクルーム付き(月額220円)
☆近隣に学校、幼稚園、保育園、公園あり
☆複数スーパーあり
【内覧会開催中】
本日ご案内可能な場合もございます。
複数件併せてご内見も可能♪
他の掲載物件もまとめてご内見頂けます。気になる物件をお教え下さい。
☆0120ー684-571
お気軽にお電話ください♪
☆立地のポイント
【大日駅】徒歩約18分
物件の設備
- 都市ガス
- 食器洗浄乾燥機
- カウンターキッチン
- システムキッチン
- 追焚機能
- 浴室乾燥機
- 温水洗浄便座
- 室内洗濯機置場
- 洗髪洗面化粧台
- ディンプルキー
- モニタ付インターホン
- フローリング張替
- ウォークインクローゼット
- ウォークスルークローゼット
- 収納スペース
- トランクルーム
- シューズインクローク
- バルコニー
- 2面バルコニー
- 南面バルコニー
- エレベーター
- 駐輪場
- バイク置場
物件の特徴
- 管理人日勤
- 内装リフォーム済
- 角部屋
- 2沿線利用可
- ペット相談
物件詳細情報
| 価格 | 2,780万円 | 間取り | 3LDK |
|---|---|---|---|
| 物件種別 | 中古マンション | ||
| 所在地 | 大阪府守口市八雲北町3丁目 | ||
| アクセス |
|
||
| 専有面積 | 78.00㎡ | 所在階 | 14階建/3階部分 |
| 主要採光 | 南向 | バルコニー | |
| その他 | |||
| 権利 | 所有権 |
||
| 保証・評価 | |||
| リフォーム | 【水回り】2026年04月 キッチン・浴室・トイレ・洗面 【2026年4月下旬完成】 システムキッチン新調(食洗機・センサー付き水栓)、ユニットバス新調、浴室暖房乾燥機付、洗面化粧台新調、トイレ新調(温水洗浄便座付) 【内装】2026年04月 床 ・全室クロス ・建具 【2026年4月下旬完成】 L45フローリング貼替、建具新調、ダウンライト(調光式)新設、CF新調、クロス貼替、ハウスクリーニングetc... |
||
| 総戸数 | 620戸 | 面積 | |
| 築年月 | 1982年(昭和57年)11月築 | 建物構造 | SRC |
| 施工会社 | |||
| 管理会社 | 長谷工コミュニティ | 管理方式 | 全部委託 日勤管理 |
| 駐車場 | 【駐車場】空無 【バイク置き場】あり 【駐輪場】あり |
||
| 都市計画 | 市街化区域 |
用途地域 | 1種住居 |
| 建ぺい/容積率 | 60% / 200% | 土地国土法 | |
| 法令制限 | |||
| 小学区 | 八雲小学校 徒歩2分 (約140m) | 中学区 | 八雲中学校 徒歩6分 (約450m) |
| 現況 | 空 | 引渡 | 相談 |
| 管理費 | 5,390円/月 | 修繕積立金 | 14,040円/月 |
| その他費用 | |||
| 周辺環境 | 大日駅 徒歩18分 (約1410m) イオンスタイル大日 徒歩25分 (約1980m) イオンモール大日 徒歩25分 (約1980m) 守口中央こども園 徒歩19分 (約1460m) アカカベ守口店 徒歩24分 (約1890m) 守口市役所 徒歩25分 (約1960m) 万代 太子橋店 徒歩28分 (約2180m) 阪急オアシス守口店 徒歩26分 (約2070m) 梶らいこうじ学園こども園 徒歩31分 (約2410m) 大阪府立淀川工科高等学校 徒歩24分 (約1890m) |
||
| 備考 | ※フルリノベーション!2026年4月下旬完成予定 システムキッチン新調(食洗機・センサー付き水栓)、ユニットバス新調、浴室暖房乾燥機付、L45フローリング貼替、洗面化粧台新調、建具新調、ダウンライト(調光式)新設、トイレ新調(温水洗浄便座付)、CF新調、クロス貼替、ハウスクリーニングetc... 犬・猫飼育可能(詳細は管理規約に準ずる) トランクルーム付き(月額220円) ※駐車場・駐輪場等の空き状況は作成時点のものであり、空き状況等を保証するものではない事を予めご了承ください。 ※現況と異なる場合があります。現況優先となる事を予めご了承ください。 |
||
| 物件番号 | 4696099 | 取引態様 | 売主 |
取扱店舗情報
| 電話番号 | 050-5805-9447 |
|---|---|
| 所在地 | 〒536-0006 大阪府大阪市城東区野江4丁目10-13 クリエイト野江内代1F |
| 営業時間 | 10:00~19:00 |
| 定休日 | なし |
| 宅建免許番号 | 国土交通大臣(1)第10706号 |
| アクセス | 店舗への地図はこちら |

来店ご予約
大阪府守口市で価格が似ている物件はこちら
- 大阪府
マイページ物件数 - 18,593件
最近見た物件
-
-

-
- 土地
- 2,960万円
-
清須市春日落合
-
JR東海道本線稲沢
-
-
-

-
- 中古一戸建て
- 2,850万円
-
久留米市大石町
-
JR久大本線久留米
-
-
-

-
- 中古一戸建て
- 3,998万円
-
川崎市高津区北見方3丁目
-
JR南武線武蔵新城
-
大阪府中古マンション新着物件
-
-

-
- 中古マンション
- 1億8,180万円
-
大阪市北区大淀南2丁目
-
阪神電鉄本線福島駅
-
-
-

-
- 中古マンション
- 2,780万円
-
守口市八雲北町3丁目
-
大阪市谷町線大日駅
-
-
-

-
- 中古マンション
- 1億1,380万円
-
大阪市北区本庄西1丁目
-
大阪市堺筋線天神橋筋六丁目駅
-
-
-

-
- 中古マンション
- 1,380万円
-
大阪市淀川区新北野3丁目
-
JR東海道線塚本駅
-
-
-

-
- 中古マンション
- 2,999万円
-
大阪市淀川区加島3丁目
-
JR東西線加島駅
-
-
-

-
- 中古マンション
- 2,998万円
-
大阪市北区本庄東2丁目
-
大阪市谷町線天神橋筋六丁目駅
-
-
-

-
- 中古マンション
- 2,890万円
-
大阪市東成区大今里南4丁目
-
近鉄大阪線今里駅
-
- お近くの店舗を探す
-
おすすめ物件
-
-

-
- 中古マンション
- 2,880万円
-
高槻市上土室1丁目
-
JR東海道線摂津富田
-
-
-

-
- 中古マンション
- 1,580万円
-
和泉市伏屋町5丁目
-
南海電鉄泉北線光明池
-
-
-

-
- 中古マンション
- 1,420万円
-
吹田市垂水町3丁目
-
大阪市御堂筋線江坂
-
-
-

-
- 中古マンション
- 3,499万円
-
吹田市江坂町2丁目
-
大阪市御堂筋線江坂
-
-
-

-
- 中古マンション
- 2,148万円
-
大阪市住之江区北加賀屋5丁目
-
大阪市四つ橋線北加賀屋
-
-
-

-
- 中古マンション
- 580万円
-
貝塚市堀3丁目
-
南海電鉄本線貝塚
-
-
-

-
- 中古マンション
- 2,280万円
-
大阪市淀川区新高1丁目
-
阪急電鉄神戸線神崎川
-
-
-

-
- 中古マンション
- 1,880万円
-
大阪市淀川区塚本3丁目
-
JR東海道線塚本
-
-
-

-
- 中古マンション
- 2,499万円
-
門真市野里町
-
京阪本線大和田
-
-
-

-
- 中古マンション
- 4,090万円
-
八尾市永畑町3丁目
-
JR関西本線八尾
-

























担当エージェント:尾関 親代
最寄り駅から東梅田まで18分の好立地!
落ち着いた住環境でファミリー層にも単身者にも◎♪
住宅ローン相談会開催中です!
ぜひお気軽にお問い合わせください!