金沢市涌波4丁目の新築戸建
掲載情報更新日:2025年10月28日 次回更新予定日:2025年11月11日
- 3,090万円
 - 
                    
- 借入ご希望金額
万円 -  借入期間
年 -  借入金利
% -  月々のお支払い金額
円 
 - 借入ご希望金額
 
※ 月々のお支払例は目安の試算となりますので、実際の金額とは異なる場合がございます。詳しくは店舗までお問合わせください。
- 金沢市涌波4丁目
 - 
                    『涌波二丁目』 徒歩4分 (約300m)
 
金沢市涌波4丁目一戸建て | 物件情報
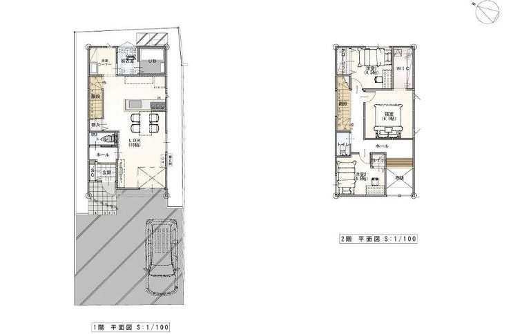
明るい吹抜リビングと便利立地で快適な暮らし
            
        
            ★18帖の広々LDK+吹抜
★独立洗面で朝も混雑知らず♪
★家事ラクな1.5帖脱衣室
★山側環状線近くでアクセス◎
天井高2.5m+吹抜で、実際の帖数以上に開放感のあるリビング!
洗面台を脱衣スペースと切り離すことで、家族みんなが自由に使えます。
脱衣室兼サンルームは広さ1.5帖で洗濯動線も快適♪
山側環状線がすぐそばで、かほく方面・能美方面どちらにもアクセス良好です!        
物件の設備
- オール電化
 - 公営水道
 - 公共下水
 - 浄水器
 - 食器洗浄乾燥機
 - IHクッキングヒータ
 - コンロ三口
 - カウンターキッチン
 - システムキッチン
 - バス
 - バス1坪以上
 - 浴室暖房
 - 浴室乾燥機
 - トイレ2箇所
 - 温水洗浄便座
 - 室内洗濯機置場
 - 洗髪洗面化粧台
 - 洗面所独立
 - 室内物干機
 - エアコン
 - モニタ付インターホン
 - LDK18畳以上
 - 全室フローリング
 - クローゼット
 - ウォークインクローゼット
 - シューズインクローク
 
物件の特徴
- 前道6m以上
 - 2階建
 - 即入居可
 
物件詳細情報
| 価格 | 3,090万円 | 間取り | 3LDK | 
|---|---|---|---|
| 物件種別 | 新築一戸建て | ||
| 所在地 | 石川県金沢市涌波4丁目101番2 A棟 | ||
| アクセス | 
            
  | 
    ||
| 建物面積 | 96.34㎡ | 駐車場 | あり 普通:3台 | 
| 築年月 | 2025年(令和7年)07月築 | 建築確認 | 第IKJC24-0930号 | 
| 建物構造 | 木造 2階建 | 工法 | |
| 主要採光 | 南東向 | バルコニー | |
| 保証・評価 | |||
| 土地面積 | 公122.62㎡(37.09坪) | 接道 | 南西側幅 約7.2m 間口 約7.01m | 
    
| 私道 | セットバック | ||
| 地目 | 宅地 | 地勢 | 平坦 | 
| 権利 | 所有権 | 
    ||
| 都市計画 | 市街化区域 | 
        用途地域 | 1種中高 | 
| 建ぺい/容積率 | 60% / 200% | 土地国土法 | |
| 許可番号 | 建築基準法 | ||
| 法令制限 | |||
| 小学区 | 南小立野小学校 徒歩7分 (約550m) | 中学区 | 城南中学校 徒歩20分 (約1600m) | 
| 現況 | 完工済 | 引渡 | 即 | 
| その他費用 | |||
| 周辺環境 | 涌波中央公園 徒歩4分 (約250m) ゲンキー涌波店 徒歩6分 (約450m) 金沢涌波郵便局 徒歩6分 (約470m) わくなみこども園 徒歩7分 (約540m) ファミリーマート金沢涌波三丁目店 徒歩7分 (約530m) 南小立野小学校 徒歩9分 (約690m) ファミリーマート金沢涌波店 徒歩8分 (約580m) 城南中学校 徒歩22分 (約1750m)  | 
    ||
| 備考 | 別途:上下水道負担金385,000円(税込) | ||
| 物件番号 | 4043556 | 取引態様 | 媒介 | 
取扱店舗情報
ハウスドゥ 金沢福久 株式会社サンリーバイカイ 店舗詳細ページへ
| 電話番号 | 076-201-8855 | 
|---|---|
| 所在地 | 〒920-3126 石川県金沢市福久2丁目1  | 
            
| 営業時間 | 9:30~18:00 | 
| 定休日 | 毎週水曜・年末年始 | 
| 宅建免許番号 | 石川県知事(1)第4504号 | 
| アクセス | 店舗への地図はこちら | 

来店ご予約
石川県金沢市で価格が似ている物件はこちら
- 石川県
マイページ物件数 - 493件
 
石川県新築一戸建て新着物件
- お近くの店舗を探す
 - 
            
            
            
 
    
                        
                        
                        
                    

                












                
            
                    
                                            
                                            
                                            
                                            




						
						
住みやすさも立地もどちらも譲れない!という方におすすめです(^^)
吹抜の開放感は写真以上なので、ぜひ現地で体感してみてくださいね!