北九州市小倉南区湯川新町3丁目の新築戸建
掲載情報更新日:2025年10月13日 次回更新予定日:2025年10月27日
- 2,498万円
-
- 借入ご希望金額
万円 - 借入期間
年 - 借入金利
% - 月々のお支払い金額
円
- 借入ご希望金額
※ 月々のお支払例は目安の試算となりますので、実際の金額とは異なる場合がございます。詳しくは店舗までお問合わせください。
- 北九州市小倉南区湯川新町3丁目
-
JR日豊本線『安部山公園』 徒歩5分 (約370m)
JR日田彦山線『石田』 徒歩25分 (約1940m)
北九州市小倉南区湯川新町3丁目一戸建て | 物件情報
物件の設備
- 電気
- 上水道
- 下水道
- 都市ガス
- 浄水器
- 食器洗浄乾燥機
- コンロ三口
- グリル
- カウンターキッチン
- システムキッチン
- 追焚機能
- 浴室乾燥機
- トイレ2箇所
- 洗髪洗面化粧台
- モニタ付インターホン
- 火災警報器/報知機
- LDK15畳以上
- 複層ガラス
- 電動シャッター
- クローゼット
- ウォークインクローゼット
- 床下収納
物件の特徴
- 2階建
物件詳細情報
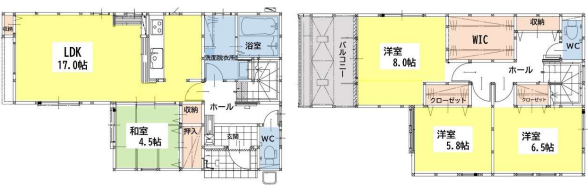
価格 | 2,498万円 | 間取り | 4LDK |
---|---|---|---|
物件種別 | 新築一戸建て | ||
所在地 | 福岡県北九州市小倉南区湯川新町3丁目 | ||
アクセス |
|
||
建物面積 | 109.1㎡ | 駐車場 | あり 普通:2台 |
築年月 | 2025年(令和7年)04月築 | 建築確認 | KJH24-02520-1 |
建物構造 | 木造 2階建 | 工法 | |
主要採光 | バルコニー | ||
保証・評価 | |||
土地面積 | 136.4㎡(41.26坪) | 接道 | 西側(公道)幅 約4.0m |
私道 | セットバック | ||
地目 | 宅地 | 地勢 | |
権利 | 所有権 |
||
都市計画 | 市街化区域 |
用途地域 | 1種住居 |
建ぺい/容積率 | 60% / 160% | 土地国土法 | |
許可番号 | 建築基準法 | ||
法令制限 | |||
小学区 | 湯川小学校 徒歩13分 (約1010m) | 中学区 | 湯川中学校 徒歩8分 (約590m) |
現況 | 完工済 | 引渡 | 相談 |
その他費用 | |||
備考 | |||
物件番号 | 4092204 | 取引態様 | 媒介 |
取扱店舗情報
ハウスドゥ 小倉八重洲 TAD Homes株式会社 店舗詳細ページへ
電話番号 | 093-967-7308 |
---|---|
所在地 | 〒802-0831 福岡県北九州市小倉南区八重洲町7-15-1 |
営業時間 | 10:00~18:00 |
定休日 | 水曜日 |
宅建免許番号 | 福岡県知事(1)第20557号 |
アクセス | 店舗への地図はこちら |
来店ご予約
福岡県北九州市小倉南区で価格が似ている物件はこちら
- 福岡県
マイページ物件数 - 8,437件
福岡県新築一戸建て新着物件
-
-
-
- 新築一戸建て
- 3,298万円
-
古賀市久保
-
JR鹿児島本線千鳥駅
-
-
-
-
- 新築一戸建て
- 2,898万円
-
北九州市八幡西区下畑町
-
筑豊電気鉄道楠橋駅
-
-
-
-
- 新築一戸建て
- 3,098万円
-
北九州市八幡西区下畑町
-
筑豊電気鉄道楠橋駅
-
-
-
-
- 新築一戸建て
- 3,699万円
-
福津市花見が浜2丁目
-
JR鹿児島本線千鳥駅
-
-
-
-
- 新築一戸建て
- 4,298万円
-
福岡市西区今津
-
昭和バス大原海水浴場前バス停
-
-
-
-
- 新築一戸建て
- 3,298万円
-
北九州市小倉南区東貫1丁目
-
JR日豊本線下曽根駅
-
-
-
-
- 新築一戸建て
- 3,598万円
-
北九州市八幡西区御開3丁目
-
JR筑豊本線二島駅
-
- お近くの店舗を探す
-
おすすめ物件
-
-
-
- 新築一戸建て
- 3,398万円
-
古賀市天神6丁目
-
JR鹿児島本線古賀
-
-
-
-
- 新築一戸建て
- 3,099万円
-
福津市西福間3丁目
-
JR鹿児島本線福間
-
-
-
-
- 新築一戸建て
- 3,898万円
-
大野城市南ケ丘6丁目
-
JR鹿児島本線水城
-
-
-
-
- 新築一戸建て
- 3,498万円
-
北九州市小倉南区北方3丁目
-
北九州高速鉄道北方
-
-
-
-
- 新築一戸建て
- 3,448万円
-
宗像市ひかりヶ丘4丁目
-
JR鹿児島本線東郷
-
-
-
-
- 新築一戸建て
- 2,398万円
-
宗像市河東
-
JR鹿児島本線東郷
-
-
-
-
- 新築一戸建て
- 2,688万円
-
北九州市八幡西区本城東6丁目
-
JR筑豊本線本城
-
-
-
-
- 新築一戸建て
- 2,998万円
-
大野城市乙金東1丁目
-
西鉄天神大牟田線桜並木
-
-
-
-
- 新築一戸建て
- 2,998万円
-
福岡市城南区樋井川7丁目
-
福岡市七隈線福大前
-
-
-
-
- 新築一戸建て
- 3,548万円
-
宗像市ひかりヶ丘4丁目
-
JR鹿児島本線東郷
-