福岡市西区今津の新築戸建
掲載情報更新日:2026年01月19日 次回更新予定日:2026年02月02日
- 4,098万円
-
- 借入ご希望金額
万円 - 借入期間
年 - 借入金利
% - 月々のお支払い金額
円
- 借入ご希望金額
※ 月々のお支払例は目安の試算となりますので、実際の金額とは異なる場合がございます。詳しくは店舗までお問合わせください。
- 福岡市西区今津
-
昭和バス『大原海水浴場前バス停』 徒歩4分 (約320m)
福岡市西区今津一戸建て | 物件情報
物件の設備
- 公営水道
- 公共下水
- 側溝
- プロパンガス
- 個別プロパン
- カウンターキッチン
- システムキッチン
- 浴室に窓
- 室内洗濯機置場
- 洗面所独立
- LDK18畳以上
- 和室
- クローゼット
- ウォークインクローゼット2箇所
- 全居室収納
- シューズインクローク
物件の特徴
- 南側道路面す
- 海に近い
- 角地
- フラット35Sに対応
物件詳細情報
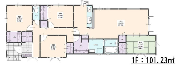
| 価格 | 4,098万円 | 間取り | 4LDK |
|---|---|---|---|
| 物件種別 | 新築一戸建て | ||
| 所在地 | 福岡県福岡市西区今津 | ||
| アクセス |
|
||
| 建物面積 | 101.23㎡ | 駐車場 | あり 普通:4台 |
| 築年月 | 2026年(令和8年)01月予定 | 建築確認 | 第KJH25-01712-1号 |
| 建物構造 | 木造 1階建 | 工法 | |
| 主要採光 | バルコニー | ||
| 保証・評価 | |||
| 土地面積 | 319.75㎡(96.72坪) | 接道 | 西側(公道)幅 約5.5m 南側(公道)幅 約5.3m |
| 私道 | セットバック | ||
| 地目 | 宅地 | 地勢 | |
| 権利 | 所有権 |
||
| 都市計画 | 調整区域 |
用途地域 | 指定無 |
| 建ぺい/容積率 | 40% / 60% | 土地国土法 | |
| 許可番号 | 建築基準法 | ||
| 法令制限 | 宅地造成工事規制区域・外壁後退1m・絶対高さ10m・最低敷地面積200㎡ | ||
| 小学区 | 今津小学校 徒歩15分 (約1200m) | 中学区 | 玄洋中学校 徒歩57分 (約4500m) |
| 現況 | 建築中 | 引渡 | 期日指定:2026年02月上旬 |
| その他費用 | |||
| 備考 | 【設備・仕様】 玄関収納、パントリー、キッチンに勝手口、押入 |
||
| 物件番号 | 4448904 | 取引態様 | 媒介 |
取扱店舗情報
ハウスドゥ 福岡伊都 株式会社ライフサポート 店舗詳細ページへ
| 電話番号 | 092-805-4035 |
|---|---|
| 所在地 | 〒819-0373 福岡県福岡市西区周船寺1-4-8 |
| 営業時間 | 9:00~18:00 |
| 定休日 | 水曜日、年末年始 |
| 宅建免許番号 | 福岡県知事(2)第18874号 |
| アクセス | 店舗への地図はこちら |

来店ご予約
福岡県福岡市西区で価格が似ている物件はこちら
- 福岡県
マイページ物件数 - 9,050件
福岡県新築一戸建て新着物件
-
-

-
- 新築一戸建て
- 4,198万円
-
太宰府市青山3丁目
-
西鉄太宰府線西鉄五条駅
-
-
-

-
- 新築一戸建て
- 4,498万円
-
大野城市緑ケ丘2丁目
-
JR鹿児島本線水城駅
-
-
-

-
- 新築一戸建て
- 3,380万円
-
遠賀郡水巻町吉田西2丁目
-
JR鹿児島本線水巻駅
-
-
-

-
- 新築一戸建て
- 3,280万円
-
遠賀郡水巻町吉田西2丁目
-
JR鹿児島本線水巻駅
-
-
-

-
- 新築一戸建て
- 3,698万円
-
北九州市若松区大井戸町
-
JR筑豊本線若松駅
-
-
-

-
- 新築一戸建て
- 3,130万円
-
遠賀郡水巻町吉田西2丁目
-
JR鹿児島本線水巻駅
-
-
-

-
- 新築一戸建て
- 3,798万円
-
北九州市小倉北区上到津2丁目
-
到津三叉路
-
- お近くの店舗を探す
-
おすすめ物件
-
-

-
- 新築一戸建て
- 3,988万円
-
福岡市早良区賀茂2丁目
-
福岡市七隈線賀茂
-
-
-

-
- 新築一戸建て
- 2,598万円
-
古賀市薦野
-
JR鹿児島本線古賀
-
-
-

-
- 新築一戸建て
- 4,799万円
-
福岡市南区警弥郷2丁目
-
JR博多南線博多南
-
-
-

-
- 新築一戸建て
- 3,198万円
-
北九州市小倉南区北方3丁目
-
北九州高速鉄道北方
-
-
-

-
- 新築一戸建て
- 3,980万円
-
福津市西福間1丁目
-
JR鹿児島本線福間
-
-
-

-
- 新築一戸建て
- 2,998万円
-
直方市大字植木
-
JR筑豊本線筑前植木
-
-
-

-
- 新築一戸建て
- 3,098万円
-
北九州市小倉北区赤坂4丁目
-
西鉄バス手向山停
-
-
-

-
- 新築一戸建て
- 4,999万円
-
福岡市南区警弥郷2丁目
-
JR博多南線博多南
-
-
-

-
- 新築一戸建て
- 2,798万円
-
鞍手郡鞍手町大字中山
-
JR筑豊本線鞍手
-
-
-

-
- 新築一戸建て
- 4,380万円
-
福岡市博多区南八幡町1丁目
-
JR鹿児島本線南福岡
-








































