茨木市大池2丁目
掲載情報更新日:2026年02月22日 次回更新予定日:2026年03月08日
- 4,880万円
-
- 借入ご希望金額
万円 - 借入期間
年 - 借入金利
% - 月々のお支払い金額
円
- 借入ご希望金額
※ 月々のお支払例は目安の試算となりますので、実際の金額とは異なる場合がございます。詳しくは店舗までお問合わせください。
- 茨木市大池2丁目
-
阪急電鉄京都線『茨木市』 徒歩12分 (約960m)
茨木市大池2丁目一戸建て | 物件情報
物件の設備
- 電気
- 公営水道
- 都市ガス
- カウンターキッチン
- トイレ2箇所
- 室内洗濯機置場
- 洗面所独立
- LDK15畳以上
- フローリング
- 全室フローリング
- 全居室収納
- 2面バルコニー
物件の特徴
- 通風良好
- 3階建以上
- 角地
物件詳細情報
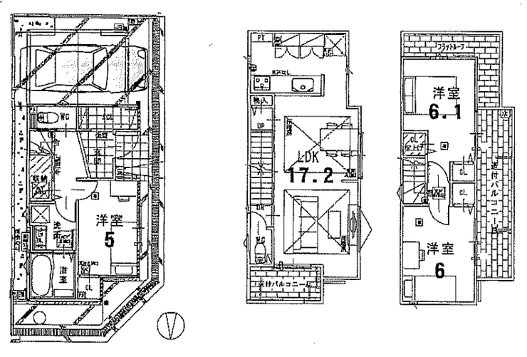
| 価格 | 4,880万円 | 間取り | 3LDK |
|---|---|---|---|
| 物件種別 | 新築一戸建て | ||
| 所在地 | 大阪府茨木市大池2丁目 | ||
| アクセス |
|
||
| 建物面積 | 100.08㎡ | 駐車場 | あり |
| 築年月 | 2025年(令和7年)01月築 | 建築確認 | |
| 建物構造 | 木造 3階建 | 工法 | |
| 主要採光 | バルコニー | ||
| 保証・評価 | |||
| 土地面積 | 公62.6㎡(18.93坪) | 接道 | 西側幅 約3.7m 北側幅 約3.6m |
| 私道 | セットバック | ||
| 地目 | 宅地 | 地勢 | |
| 権利 | 所有権 |
||
| 都市計画 | 市街化区域 |
用途地域 | 1種中高 |
| 建ぺい/容積率 | 60% / 200% | 土地国土法 | |
| 許可番号 | 建築基準法 | ||
| 法令制限 | |||
| 小学区 | 中学区 | ||
| 現況 | 完工済 | 引渡 | 相談 |
| その他費用 | |||
| 備考 | |||
| 物件番号 | 4126578 | 取引態様 | 媒介 |
取扱店舗情報
| 電話番号 | 072-665-7401 |
|---|---|
| 所在地 | 〒567-0066 大阪府茨木市下井町1-14 |
| 営業時間 | 9:30~18:30 |
| 定休日 | 水曜日、年末年始 |
| 宅建免許番号 | 大阪府知事(1)第62975号 |
| アクセス | 店舗への地図はこちら |

来店ご予約
大阪府茨木市で価格が似ている物件はこちら
- 大阪府
マイページ物件数 - 17,578件
最近見た物件
-
-

-
- 中古一戸建て
- 1,050万円
-
安芸郡海田町砂走
-
JR山陽本線安芸中野
-
-
-

-
- 新築一戸建て
- 1,680万円
-
鈴鹿市長太旭町2丁目
-
近鉄名古屋線長太ノ浦
-
-
-

-
- 中古一戸建て
- 2,480万円
-
鹿児島市玉里団地2丁目
-
JR日豊本線鹿児島
-
大阪府新築一戸建て新着物件
-
-

-
- 新築一戸建て
- 1億1,800万円
-
箕面市小野原東4丁目
-
大阪モノレール彩都豊川駅
-
-
-

-
- 新築一戸建て
- 1億1,800万円
-
箕面市小野原東4丁目
-
大阪モノレール彩都豊川駅
-
-
-

-
- 新築一戸建て
- 2,890万円
-
羽曳野市野々上5丁目
-
近鉄南大阪線高鷲駅
-
-
-

-
- 新築一戸建て
- 2,890万円
-
羽曳野市郡戸
-
近鉄南大阪線高鷲駅
-
-
-

-
- 新築一戸建て
- 2,880万円
-
松原市丹南4丁目
-
南海電鉄高野線萩原天神駅
-
-
-

-
- 新築一戸建て
- 4,380万円
-
堺市西区浜寺諏訪森町東3丁
-
南海電鉄本線諏訪ノ森駅
-
-
-

-
- 新築一戸建て
- 3,980万円
-
堺市西区上野芝向ヶ丘町2丁
-
JR阪和線上野芝駅
-
- お近くの店舗を探す
-
おすすめ物件
-
-

-
- 新築一戸建て
- 3,480万円
-
高槻市津之江町2丁目
-
JR東海道線摂津富田
-
-
-

-
- 新築一戸建て
- 6,800万円
-
箕面市稲5丁目
-
北大阪急行南北線箕面船場阪大前
-
-
-

-
- 新築一戸建て
- 3,380万円
-
茨木市橋の内1丁目
-
阪急電鉄京都線総持寺
-
-
-

-
- 新築一戸建て
- 4,350万円
-
東大阪市新家2丁目
-
大阪市中央線長田
-
-
-

-
- 新築一戸建て
- 3,680万円
-
大阪市東住吉区住道矢田4丁目
-
近鉄南大阪線矢田
-
-
-

-
- 新築一戸建て
- 3,080万円
-
泉大津市下条町
-
南海電鉄本線泉大津
-
-
-

-
- 新築一戸建て
- 4,180万円
-
高槻市明野町
-
阪急電鉄京都線高槻市
-
-
-

-
- 新築一戸建て
- 3,680万円
-
東大阪市中小阪1丁目
-
近鉄難波・奈良線河内小阪
-
-
-

-
- 新築一戸建て
- 3,180万円
-
東大阪市花園東町2丁目
-
近鉄難波・奈良線東花園
-
-
-

-
- 新築一戸建て
- 3,380万円
-
東大阪市花園東町2丁目
-
近鉄難波・奈良線東花園
-


