Loading
  1. TOP>
  2. 一戸建て>
  3. 関東>
  4. 神奈川県>
  5. 厚木市>
  6. 妻田北3丁目>
  7. 厚木市妻田北3丁目の新築戸建

厚木市妻田北3丁目の新築戸建

掲載情報更新日:2025年11月16日 次回更新予定日:2025年11月30日

  • 3,880万円
    • 借入ご希望金額
      万円
    • 借入期間
    • 借入金利
    • 月々のお支払い金額

※ 月々のお支払例は目安の試算となりますので、実際の金額とは異なる場合がございます。詳しくは店舗までお問合わせください。

  • 厚木市妻田北3丁目
  • 小田急小田原線『本厚木』 バス乗車13分 妻田薬師 停 徒歩7分 (約560m)
取扱会社:ハウスドゥ 厚木  有限会社愛産
  • この物件に資料請求・問い合わせをする
  • ■お電話はこちら 通話料無料 0120-989-353

厚木市妻田北3丁目一戸建て | 物件情報

□バス停徒歩7分 □閑静な住宅街 □洗面脱衣室に乾燥機用ガス栓有

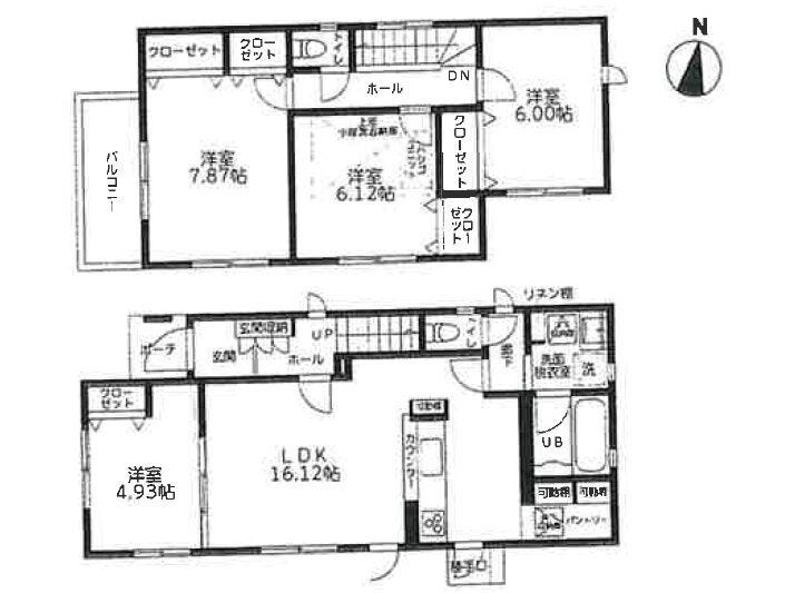
【間取り】

【間取り】

取扱会社
ハウスドゥ 厚木  
  • この物件に資料請求・問い合わせをする
  • ■お電話はこちら 通話料無料 0120-989-353

物件の設備

  • 都市ガス
  • カウンターキッチン
  • バス
  • 浴室に窓
  • トイレ
  • トイレ2箇所
  • 室内洗濯機置場
  • LDK15畳以上
  • 2面採光
  • クローゼット
  • クローゼット2箇所
  • クローゼット3箇所
  • 床下収納
  • 全居室収納
  • 屋根裏収納
  • バルコニー

物件の特徴

  • 小学校徒歩10分以内
  • スーパーが近い
  • 閑静な住宅街
  • 通風良好
  • 2階建
  • 即入居可

物件詳細情報

価格 3,880万円 間取り 4LDK
物件種別 新築一戸建て
所在地 神奈川県厚木市妻田北3丁目
アクセス
  • 小田急小田原線『本厚木』 バス乗車13分 妻田薬師 停 徒歩7分 (約560m)
建物面積 公100.19㎡ 駐車場 あり
築年月 2025年(令和7年)10月築 建築確認 第24UDI1K建01977号
建物構造 木造 2階建 工法
主要採光 バルコニー
保証・評価
分譲情報
土地面積 公115.5㎡(34.93坪) 接道
私道 セットバック
地目 雑種地 地勢
権利 所有権
都市計画 市街化区域
用途地域 工業
建ぺい/容積率 60% / 200% 土地国土法
許可番号 建築基準法
法令制限 法22条区域
小学区 清水小学校 徒歩8分 (約600m) 中学区 睦合東中学校 徒歩9分 (約650m)
現況 引渡
その他費用
周辺環境 ファミリーマート 厚木妻田北店 徒歩4分 (約280m)
クリエイトエス・ディー厚木妻田店 徒歩5分 (約340m)
厚木市立清水小学校 徒歩10分 (約740m)
厚木市立睦合東中学校 徒歩9分 (約670m)
ニトリ厚木店 徒歩12分 (約910m)
備考 □バス停徒歩7分
□閑静な住宅街
□洗面脱衣室に乾燥機用ガス栓有
物件番号 4168326 取引態様 媒介

取扱店舗情報

ハウスドゥ 厚木  有限会社愛産 店舗詳細ページへ

電話番号 046-297-7353
所在地 〒243-0815
神奈川県厚木市妻田西1丁目20-8
営業時間 9:00~18:00
定休日 水曜日
宅建免許番号 神奈川県知事(1)第32223号
アクセス 店舗への地図はこちら

ハウスドゥ  厚木の外観

この物件に関する資料請求・お問合せ

通話料無料 0120-989-353

お問い合わせの際に「ホームページを見た」といっていただくとお話がスムーズになります。

来店ご予約

ウィンドウを閉じる

ハウスドゥ 厚木  有限会社愛産への地図

  • ハウスドゥ  厚木の地図
  • ハウスドゥ  厚木の外観

GoogleMapで地図を見る

ウィンドウを閉じる

神奈川県厚木市で価格が似ている物件はこちら

戻る

次へ

  • 新築一戸建て 2024.11.12
    • 概観画像
    • 3,980万円
    • 厚木市下川入

    • 小田急小田原線「本厚木駅」バス乗車25分 バス停「中平」まで徒歩10分

    • 3LDK

    詳細を見る

  • 新築一戸建て 2024.11.15
    • 概観画像
    • 3,980万円
    • 厚木市下川入

    • 小田急小田原線「本厚木駅」バス乗車25分 バス停「中平」まで徒歩10分

    • 3LDK

    詳細を見る

  • 新築一戸建て 2024.12.17
    • 概観画像
    • 3,880万円
    • 厚木市下川入

    • 小田急小田原線「本厚木駅」バス乗車25分 バス停「中平」まで徒歩10分

    • 3LDK

    詳細を見る

  • 新築一戸建て 2025.02.23

    詳細を見る

  • 新築一戸建て 2025.02.23

    詳細を見る

  • 新築一戸建て 2025.02.23

    詳細を見る

  • 新築一戸建て 2025.02.25
    • 間取画像
    • 3,980万円
    • 厚木市妻田北2丁目

    • 小田急小田原線「本厚木駅」バス乗車14分 バス停「睦合東中学校入口」まで徒歩1分

    • 4LDK

    詳細を見る

  • 新築一戸建て 2025.11.28 new
    • 間取画像
    • 3,780万円
    • 厚木市温水西1丁目

    • 小田急小田原線「本厚木駅」バス乗車9分 バス停「スポーツセンター入口」まで徒歩3分

    • 3LDK

    詳細を見る

  • 新築一戸建て 2025.11.28 new
    • 間取画像
    • 3,780万円
    • 厚木市鳶尾1丁目

    • 小田急小田原線「本厚木駅」バス乗車26分 バス停「鳶尾一丁目」まで徒歩3分

    • 4LDK

    詳細を見る

  • 新築一戸建て 2025.11.29 new
    • 間取画像
    • 3,780万円
    • 厚木市林4丁目

    • 小田急小田原線「本厚木駅」バス乗車11分 バス停「林」まで徒歩3分

    • 4LDK

    詳細を見る

神奈川県厚木市の 新築一戸建て 一覧から探す

神奈川県厚木市で種別を変更して探す

神奈川県
マイページ物件数
3,069

マイページサービス

新規登録(無料)
  • 物件探しがもっと便利に
  • 希望情報をいち早くお届け
  • マイページ物件が閲覧可能

神奈川県新築一戸建て新着物件

お近くの店舗を探す

おすすめ物件

無料アプリ