富山市山室の新築戸建
掲載情報更新日:2025年10月26日 次回更新予定日:2025年11月09日
- 4,187万円
-
- 借入ご希望金額
万円 - 借入期間
年 - 借入金利
% - 月々のお支払い金額
円
- 借入ご希望金額
※ 月々のお支払例は目安の試算となりますので、実際の金額とは異なる場合がございます。詳しくは店舗までお問合わせください。
- 富山市山室
-
不二栄町線『青葉町』 徒歩6分 (約480m)
富山市山室一戸建て | 物件情報
【生活環境◎4LDK】子育て世代に嬉しいお家(^^)/中庭有!断熱性能と省エネ性の高いZEH水準!
耐震等級3で地震に強い認定長期優良住宅。
断熱性能と省エネ性が高くZEH水準の性能で、一年中快適に過ごせて電気代が安く家計に嬉しい住まい!
モダンな箱型に和のテイストをプラスしたお家で、広々設計のカーポート付き。
上質なくつろぎを楽しめる奥行きのあるLDK、大型窓から明るい陽射しが降り注ぎます。
樹脂フェンスで視線を気にせずお子様が安心して遊べる中庭、気軽にアウトドアをお楽しみいただけます。
物件の設備
- 上水道
- 下水道
- 食器洗浄乾燥機
- システムキッチン
- オープンキッチン
- ユニットバス
- 追焚機能
- トイレ2箇所
- 温水洗浄便座
- タンクレストイレ
- 床暖房
- エアコン2基
- ダウンライト
- カードキー
- モニタ付インターホン
- 全室フローリング
- ウォークインクローゼット
- 中庭
物件の特徴
- 2階建
- 長期優良住宅
- 設計住宅性能評価付
- BELS/省エネ基準適合
- 即入居可
物件詳細情報
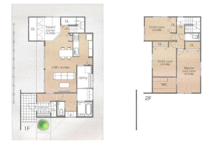
| 価格 | 4,187万円 | 間取り | 4LDK |
|---|---|---|---|
| 物件種別 | 新築一戸建て | ||
| 所在地 | 富山県富山市山室 | ||
| アクセス |
|
||
| 建物面積 | 127.87㎡ | 駐車場 | あり 普通:3台 |
| 築年月 | 2024年(令和6年)05月築 | 建築確認 | 第R05確認建築富建セ2272号 |
| 建物構造 | 木造 2階建 | 工法 | |
| 主要採光 | バルコニー | ||
| 保証・評価 | 長期優良住宅認定通知書・設計住宅性能評価書 |
||
| 土地面積 | 公196.07㎡(59.31坪) | 接道 | |
| 私道 | セットバック | ||
| 地目 | 宅地 | 地勢 | |
| 権利 | 所有権 |
||
| 都市計画 | 市街化区域 |
用途地域 | 1種低層 |
| 建ぺい/容積率 | 50% / 80% | 土地国土法 | |
| 許可番号 | 建築基準法 | ||
| 法令制限 | |||
| 小学区 | 山室小学校 徒歩9分 (約700m) | 中学区 | 山室中学校 徒歩18分 (約1400m) |
| 現況 | 完工済 | 引渡 | 即 |
| その他費用 | |||
| 備考 | スーパーや商業施設、飲食店も周辺に多く生活環境◎ 前面道路は冬でも安心の融雪付き(*^▽^*) 小学校まで徒歩9分!!色んな世代に嬉しい設備♪ 是非一度内見にお越しくださいませ。 ☆周辺環境☆ ・グリーンモール山室まで徒歩3分(約700m) ・albis高原町まで徒歩11分(約900m) 当社はお客様のお住まい探しを全力でお手伝いいたします!! 元銀行員のスタッフが、、ローンのご相談も承ります(^^)/ その他リフォームやお住まいのことならなんでもお気軽にお問い合わせください☆ |
||
| 物件番号 | 4174974 | 取引態様 | 媒介 |
取扱店舗情報
ハウスドゥ 富山駅北 セブン不動産株式会社 店舗詳細ページへ
| 電話番号 | 076-464-6351 |
|---|---|
| 所在地 | 〒930-0853 富山県富山市永楽町27-16 |
| 営業時間 | 9:30~17:30 |
| 定休日 | 水曜日、祝日、年末年始 |
| 宅建免許番号 | 富山県知事(1)第3250号 |
| アクセス | 店舗への地図はこちら |

来店ご予約
富山県富山市で価格が似ている物件はこちら
- 富山県
マイページ物件数 - 865件
富山県新築一戸建て新着物件
- お近くの店舗を探す
-
おすすめ物件
-
-

-
- 新築一戸建て
- 2,180万円
-
富山市犬島4丁目
-
富山地鉄富山港線犬島新町
-
-
-

-
- 新築一戸建て
- 2,490万円
-
高岡市駅南2丁目
-
JR氷見線高岡
-
-
-

-
- 新築一戸建て
- 2,700万円
-
富山市本郷町
-
富山地鉄不二越上滝線上堀
-
-
-

-
- 新築一戸建て
- 3,090万円
-
高岡市駅南3丁目
-
JR城端線高岡
-
-
-

-
- 新築一戸建て
- 3,980万円
-
富山市婦中町田島
-
JR高山本線婦中鵜坂
-
-
-

-
- 新築一戸建て
- 2,080万円
-
富山市犬島4丁目
-
富山地鉄富山港線犬島新町
-
-
-

-
- 新築一戸建て
- 2,690万円
-
高岡市野村
-
万葉線江尻
-
-
-

-
- 新築一戸建て
- 2,590万円
-
高岡市野村
-
万葉線旭ヶ丘
-
-
-

-
- 新築一戸建て
- 4,080万円
-
富山市中冨居
-
あいの風とやま鉄道新富山口
-
-
-

-
- 新築一戸建て
- 2,998万円
-
富山市大泉
-
富山地鉄不二越上滝線大泉
-





























