高岡市赤祖父の新築戸建
掲載情報更新日:2026年03月05日 次回更新予定日:2026年03月19日
- 3,250万円
-
- 借入ご希望金額
万円 - 借入期間
年 - 借入金利
% - 月々のお支払い金額
円
- 借入ご希望金額
※ 月々のお支払例は目安の試算となりますので、実際の金額とは異なる場合がございます。詳しくは店舗までお問合わせください。
- 高岡市赤祖父
-
JR城端線『新高岡』 徒歩18分 (約1370m)
高岡市赤祖父一戸建て | 物件情報
「あたたかさも、暮らしやすさも、ちゃんと考えた家。」 高断熱×家事ラク動線で、毎日が快適な住まい
断熱性能の高い樹脂サッシを採用
外気の影響を受けにくく、夏は涼しく冬は暖かい快適な室内環境を実現。
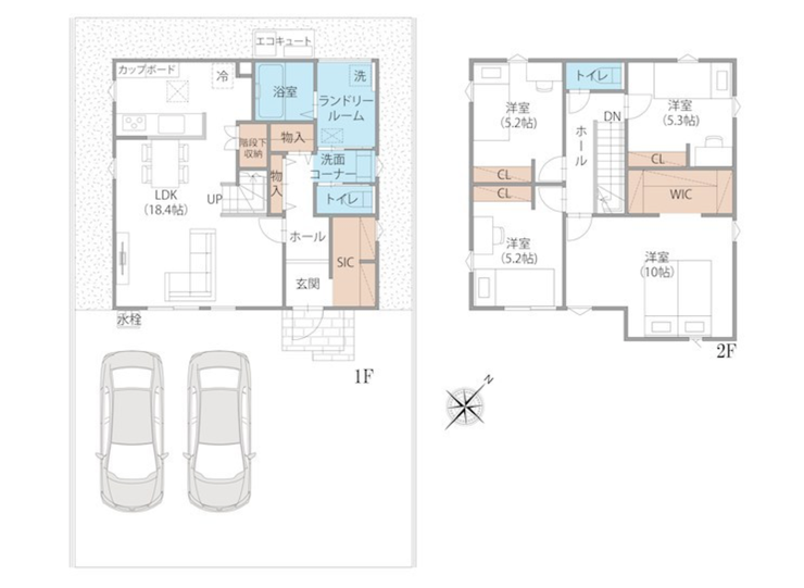
LDK18.4帖・リビング階段
家族が自然と顔を合わせる間取りで、日々のコミュニケーションが生まれます。
洗面と分けた独立ランドリールーム
室内物干し「ホスクリーン」付きで、天候や時間を気にせず洗濯が可能。
2階10帖洋室+WIC
将来のライフスタイル変化にも対応しやすい、ゆとりある主寝室。
玄関キーは便利なファミロック
荷物が多い日もスムーズに出入りでき、防犯面でも安心です。
物件の設備
- 電気
- オール電化
- 公営水道
- 公共下水
- 食器洗浄乾燥機
- IHクッキングヒータ
- カウンターキッチン
- バス1坪以上
- 浴室暖房
- 浴室乾燥機
- 温水洗浄便座
- モニタ付インターホン
- 天井高2.5m以上
- 複層ガラス
- 24時間換気システム
- ウォークインクローゼット
物件の特徴
- 2階建
物件詳細情報
| 価格 | 3,250万円 | 間取り | 4LDK |
|---|---|---|---|
| 物件種別 | 新築一戸建て | ||
| 所在地 | 富山県高岡市赤祖父 1号棟 | ||
| アクセス |
|
||
| 建物面積 | 115.51㎡ | 駐車場 | あり 普通:2台 |
| 築年月 | 2025年(令和7年)12月築 | 建築確認 | |
| 建物構造 | 木造 2階建 | 工法 | |
| 主要採光 | バルコニー | ||
| 保証・評価 | |||
| 分譲情報 | |||
| 土地面積 | 公163.92㎡(49.58坪) | 接道 | |
| 私道 | セットバック | ||
| 地目 | 宅地 | 地勢 | |
| 権利 | |||
| 都市計画 | 市街化区域 |
用途地域 | 1種中高 |
| 建ぺい/容積率 | 60% / 200% | 土地国土法 | |
| 許可番号 | 建築基準法 | ||
| 法令制限 | 水防法・文化財保護法・景観法・宅地造成工事規制区域・日影制限有 | ||
| 小学区 | 下関小学校 徒歩13分 (約970m) | 中学区 | 芳野中学校 徒歩13分 (約1040m) |
| 現況 | 完工済 | 引渡 | 相談 |
| その他費用 | |||
| 備考 | ◆断熱性能の高い樹脂サッシを採用 ◆LDKは18.4帖、リビング階段 ◆洗面コーナーと分けたランドリールームには室内物干し「ホスクリーン」付 ◆2階10帖洋室にWIC ◆玄関キーは便利なファミロック |
||
| 物件番号 | 4530598 | 取引態様 | 媒介 |
取扱店舗情報
ハウスドゥ 高岡野村 株式会社ことぶき不動産 店舗詳細ページへ
| 電話番号 | 0766-23-2030 |
|---|---|
| 所在地 | 〒933-0014 富山県高岡市野村1536番地17 アーバンビル1階B号室 |
| 営業時間 | 10:00~18:00 |
| 定休日 | 水曜日・祝日 |
| 宅建免許番号 | 富山県知事(1)第3303号 |
| アクセス | 店舗への地図はこちら |

来店ご予約
富山県高岡市で価格が似ている物件はこちら
- 富山県
マイページ物件数 - 721件
富山県新築一戸建て新着物件
-
-

-
- 新築一戸建て
- 3,398万円
-
富山市大泉東町2丁目
-
富山地鉄不二越上滝線大泉駅
-
-
-

-
- 新築一戸建て
- 3,512万円
-
射水市二口
-
大門地区センター前
-
-
-

-
- 新築一戸建て
- 3,521万円
-
射水市二口
-
大門地区センター前
-
-
-

-
- 新築一戸建て
- 3,732万円
-
射水市本開発
-
本開発中
-
-
-

-
- 新築一戸建て
- 2,630万円
-
富山市東田地方町2丁目
-
富山地鉄富山市内線桜橋駅
-
-
-

-
- 新築一戸建て
- 2,380万円
-
富山市下大久保
-
JR高山本線東八尾駅
-
-
-

-
- 新築一戸建て
- 2,380万円
-
富山市下大久保
-
JR高山本線東八尾駅
-
- お近くの店舗を探す
-
おすすめ物件
-
-

-
- 新築一戸建て
- 2,480万円
-
富山市中市2丁目
-
富山地鉄不二越上滝線大泉
-
-
-

-
- 新築一戸建て
- 3,250万円
-
高岡市赤祖父
-
JR城端線新高岡
-
-
-

-
- 新築一戸建て
- 2,280万円
-
富山市常盤台
-
富山地鉄本線東新庄
-
-
-

-
- 新築一戸建て
- 3,465万円
-
富山市秋吉
-
富山地鉄不二越上滝線不二越
-
-
-

-
- 新築一戸建て
- 2,380万円
-
富山市小杉
-
富山地鉄不二越上滝線上堀
-
-
-

-
- 新築一戸建て
- 2,198万円
-
富山市本郷町
-
富山地鉄不二越上滝線上堀
-
-
-

-
- 新築一戸建て
- 2,390万円
-
高岡市駅南3丁目
-
JR城端線高岡
-
-
-

-
- 新築一戸建て
- 3,980万円
-
富山市婦中町田島
-
JR高山本線婦中鵜坂
-
-
-

-
- 新築一戸建て
- 3,580万円
-
富山市金代
-
富山地鉄本線東新庄
-
-
-

-
- 新築一戸建て
- 3,368万円
-
高岡市角三島
-
JR氷見線能町
-












こちらの住まいは、断熱性能の高い樹脂サッシを採用し、
一年を通して快適に過ごせる室内環境に配慮した新築戸建です。
家族が集まるLDKにはリビング階段を採用し、
独立したランドリールームなど、毎日の家事がラクになる工夫も充実しています。