郡山市鳴神1丁目の新築戸建
掲載情報更新日:2026年01月10日 次回更新予定日:2026年01月24日
- 2,800万円
-
- 借入ご希望金額
万円 - 借入期間
年 - 借入金利
% - 月々のお支払い金額
円
- 借入ご希望金額
※ 月々のお支払例は目安の試算となりますので、実際の金額とは異なる場合がございます。詳しくは店舗までお問合わせください。
- 郡山市鳴神1丁目
-
JR東北本線『郡山』 バス乗車15分 堤東 停 徒歩3分 (約240m)
郡山市鳴神1丁目一戸建て | 物件情報
<シンプルライフを実現させるお家> 4号線、新さくら通り至近、周辺施設充実◎
・無駄のないミニマムな暮らしにピッタリ!
3LDKの平屋建てです♪
・地震に強い 2×4工法
・リビングを囲うように居室があり使いやすい設計
プライベートは確保されつつ自然と家族が集まるつくり
・大成小学校まで徒歩約8分
大きな通りを通らず登校できます♪
・周辺施設充実♪ゆず庵すぐとなり
セブンイレブン郡山鳴神店、ツルハドラック郡山堤店至近!
・新さくら通り至近、バス停も近く交通利便性◎
物件の設備
- 公営水道
- 公共下水
- プロパンガス
- 個別プロパン
- コンロ三口
- カウンターキッチン
- システムキッチン
- オートバス
- バス1坪以上
- 浴室に窓
- 温水洗浄便座
- 洗髪洗面化粧台
- 省エネ給湯器
- モニタ付インターホン
- 複層ガラス
- クローゼット3箇所
- 床下収納
- 全居室収納
- シューズインクローク
- 庭
物件の特徴
- 南向
- 24工法
- 地盤調査済
- 2沿線利用可
- 小学校徒歩10分以内
- 前道6m以上
- 整形地
- フラット35Sに対応
物件詳細情報
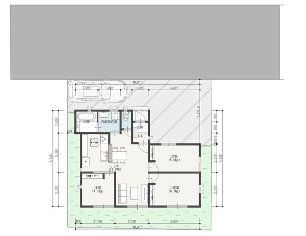
| 価格 | 2,800万円 | 間取り | 3LDK |
|---|---|---|---|
| 物件種別 | 新築一戸建て | ||
| 所在地 | 福島県郡山市鳴神1丁目 2号棟 | ||
| アクセス |
|
||
| 建物面積 | 62.31㎡ | 駐車場 | あり 普通:2台 |
| 築年月 | 2026年(令和8年)03月予定 | 建築確認 | 第R06確認建築A.C00551号 |
| 建物構造 | 木造 2×4工法 1階建 | 工法 | |
| 主要採光 | 南向 | バルコニー | |
| 保証・評価 | |||
| 土地面積 | 138.64㎡(41.93坪) | 接道 | 北側(公道)幅 約6.0m |
| 私道 | セットバック | ||
| 地目 | 宅地 | 地勢 | |
| 権利 | 所有権 |
||
| 都市計画 | 市街化区域 |
用途地域 | 2種住居 |
| 建ぺい/容積率 | 60% / 200% | 土地国土法 | |
| 許可番号 | 建築基準法 | ||
| 法令制限 | 景観法・日影制限有 | ||
| 小学区 | 大成小学校 徒歩8分 (約592m) | 中学区 | 郡山第一中学校 徒歩29分 (約2300m) |
| 現況 | 建築中 | 引渡 | 期日指定:2026年03月以降 |
| その他費用 | |||
| 備考 | |||
| 物件番号 | 4204304 | 取引態様 | 媒介 |
取扱店舗情報
ハウスドゥ 郡山菜根 株式会社Good Agency 店舗詳細ページへ
| 電話番号 | 024-954-3122 |
|---|---|
| 所在地 | 〒963-8862 福島県郡山市菜根1丁目11-7 |
| 営業時間 | 10:00~18:00 |
| 定休日 | 火曜日、水曜日 |
| 宅建免許番号 | 福島県知事(2)第3409号 |
| アクセス | 店舗への地図はこちら |

来店ご予約
福島県郡山市で価格が似ている物件はこちら
- 福島県
マイページ物件数 - 394件
最近見た物件
-
-

-
- 土地
- 6,199万円
-
江東区北砂7丁目
-
東京メトロ東西線南砂町
-
福島県新築一戸建て新着物件
-
-

-
- 新築一戸建て
- 2,090万円
-
福島市飯坂町字下中川原
-
福島交通飯坂線飯坂温泉駅
-
-
-

-
- 新築一戸建て
- 2,190万円
-
福島市飯坂町字下中川原
-
福島交通飯坂線飯坂温泉駅
-
-
-

-
- 新築一戸建て
- 3,190万円
-
福島市笹木野字南中谷地
-
JR奥羽本線笹木野駅
-
-
-

-
- 新築一戸建て
- 3,090万円
-
福島市笹木野字南中谷地
-
JR奥羽本線笹木野駅
-
-
-

-
- 新築一戸建て
- 3,390万円
-
福島市北沢又字下台
-
福島交通飯坂線笹谷駅
-
-
-

-
- 新築一戸建て
- 2,640万円
-
福島市笹木野字町裏
-
JR奥羽本線笹木野駅
-
-
-

-
- 新築一戸建て
- 2,190万円
-
福島市飯坂町湯野字窪田
-
福島交通飯坂線飯坂温泉駅
-
- お近くの店舗を探す
-



















