金沢市新神田1丁目の新築戸建
掲載情報更新日:2026年01月20日 次回更新予定日:2026年02月03日
- 3,490万円
-
- 借入ご希望金額
万円 - 借入期間
年 - 借入金利
% - 月々のお支払い金額
円
- 借入ご希望金額
※ 月々のお支払例は目安の試算となりますので、実際の金額とは異なる場合がございます。詳しくは店舗までお問合わせください。
- 金沢市新神田1丁目
-
『新神田バス停』 徒歩7分 (約560m)
金沢市新神田1丁目一戸建て | 物件情報
金沢市新神田1丁目に新築戸建て分譲中!小学校等の教育施設が整い子育てしやすい立地です♪
★耐震等級3相当の住宅
★LDKには吹抜設計導入♪
★新神田小学校がすぐ近く!
神田認定こども園・新神田小学校・高岡中学校が徒歩圏内にあるのも嬉しいですね♪
少し歩くと公園もあるのでお子様と遊びにも行きやすい!小・中学校、こども園が徒歩圏内なのでお子様も安心★
車で3分の距離にスーパー・ドラックストアもなのでお買い物も便利です(^^)
物件の設備
- 電気
- オール電化
- 上水道
- 公共下水
- IHクッキングヒータ
- カウンターキッチン
- システムキッチン
- バス
- トイレ2箇所
- 温水洗浄便座
- 室内洗濯機置場
- 洗面所独立
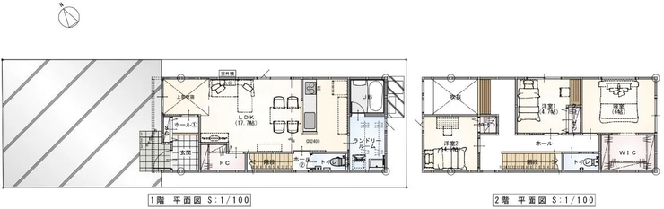
- LDK15畳以上
- 吹抜
- 複層ガラス
- 全室フローリング
- ウォークインクローゼット
物件の特徴
- 2階建
物件詳細情報
| 価格 | 3,490万円 | 間取り | 3LDK |
|---|---|---|---|
| 物件種別 | 新築一戸建て | ||
| 所在地 | 石川県金沢市新神田1丁目49番2 | ||
| アクセス |
|
||
| 建物面積 | 公103.48㎡ | 駐車場 | あり |
| 築年月 | 2025年(令和7年)09月予定 | 建築確認 | 第IKJC24-1748号 |
| 建物構造 | 木造 2階建 | 工法 | |
| 主要採光 | バルコニー | ||
| 保証・評価 | |||
| 土地面積 | 公123.2㎡(37.26坪) | 接道 | 西側(公道)幅 約5.5m 間口 約6.24m |
| 私道 | セットバック | ||
| 地目 | 宅地 | 地勢 | |
| 権利 | 所有権 |
||
| 都市計画 | 市街化区域 |
用途地域 | 1種住居 |
| 建ぺい/容積率 | 60% / 200% | 土地国土法 | |
| 許可番号 | 建築基準法 | ||
| 法令制限 | |||
| 小学区 | 中学区 | ||
| 現況 | 建築中 | 引渡 | 期日指定:2025年09月以降 |
| その他費用 | |||
| 周辺環境 | アピタ金沢店 徒歩17分 (約1290m) 中村町小学校 徒歩15分 (約1190m) ファミリーマート金沢増泉店 徒歩18分 (約1400m) コレクトパーク金沢 徒歩22分 (約1730m) 大阪屋ショップ西泉店 徒歩22分 (約1730m) セブンイレブン 金沢中央郵便局前店 徒歩24分 (約1860m) スギ薬局 金沢昭和町店 徒歩25分 (約1950m) 長町中学校 徒歩24分 (約1870m) セブン-イレブン 金沢薬師堂店 徒歩25分 (約1930m) 中央小学校 徒歩26分 (約2010m) |
||
| 備考 | |||
| 物件番号 | 4236193 | 取引態様 | 媒介 |
取扱店舗情報
ハウスドゥ 金沢福久 株式会社サンリーバイカイ 店舗詳細ページへ
| 電話番号 | 076-201-8855 |
|---|---|
| 所在地 | 〒920-3126 石川県金沢市福久2丁目1 |
| 営業時間 | 9:30~18:00 |
| 定休日 | 毎週水曜・年末年始 |
| 宅建免許番号 | 石川県知事(1)第4504号 |
| アクセス | 店舗への地図はこちら |

来店ご予約
石川県金沢市で価格が似ている物件はこちら
- 石川県
マイページ物件数 - 532件
最近見た物件
-
-

-
- 中古一戸建て
- 980万円
-
宮崎市佐土原町上田島
-
佐土原中前
-
-
-

-
- 土地
- 1,400万円
-
豊川市長沢町大覚
-
名鉄名古屋本線名電長沢
-
-
-

-
- 中古一戸建て
- 2,525万円
-
大津市下阪本3丁目
-
JR湖西線比叡山坂本
-
石川県新築一戸建て新着物件
- お近くの店舗を探す
-









広めのファミリークローゼットで洗う・干す・仕舞うが1階で完結できます!
2階にはウォークインクローゼットもあるので収納もたっぷりできます。
お気軽にご連絡ください(*^^*)