金沢市西金沢4丁目の新築戸建
掲載情報更新日:2025年10月29日 次回更新予定日:2025年11月12日
- 2,980万円
-
- 借入ご希望金額
万円 - 借入期間
年 - 借入金利
% - 月々のお支払い金額
円
- 借入ご希望金額
※ 月々のお支払例は目安の試算となりますので、実際の金額とは異なる場合がございます。詳しくは店舗までお問合わせください。
- 金沢市西金沢4丁目
-
『西金四丁目バス停』 徒歩3分 (約240m)
金沢市西金沢4丁目一戸建て | 物件情報
西金沢4丁目に新築戸建て分譲中です♪
★西金沢まで徒歩19分
★認定こども園まで徒歩6分!
★スーパー・コンビニ・ドラックストアが徒歩圏内♪
★耐震等級3の住宅
近くに公園・こども園・小学校があるのがお子様も安心♪
スーパー・コンビニ・ドラックストアが徒歩圏内にあるので子育てがしやすい住宅です(*^^*)
キッチンからLDK全体を見渡せるのも魅力的☆
物件の設備
- 電気
- オール電化
- 上水道
- 公共下水
- 食器洗浄乾燥機
- IHクッキングヒータ
- カウンターキッチン
- システムキッチン
- バス
- トイレ2箇所
- 室内洗濯機置場
- 洗面所独立
- 複層ガラス
- 全室フローリング
- クローゼット3箇所
- ウォークインクローゼット
物件の特徴
- 2階建
物件詳細情報
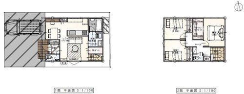
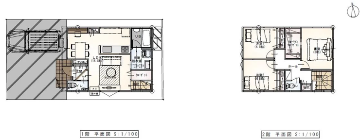
| 価格 | 2,980万円 | 間取り | 3LDK |
|---|---|---|---|
| 物件種別 | 新築一戸建て | ||
| 所在地 | 石川県金沢市西金沢4丁目149番1の一部 B棟 | ||
| アクセス |
|
||
| 建物面積 | 公84.38㎡ | 駐車場 | あり 普通:2台 |
| 築年月 | 2025年(令和7年)07月築 | 建築確認 | 第IKJC24-1558号 |
| 建物構造 | 木造 2階建 | 工法 | |
| 主要採光 | バルコニー | ||
| 保証・評価 | |||
| 土地面積 | 公92.26㎡(27.90坪) | 接道 | 西側(公道)幅 約4.7m 間口 約6.88m |
| 私道 | セットバック | ||
| 地目 | 宅地 | 地勢 | |
| 権利 | 所有権 |
||
| 都市計画 | 市街化区域 |
用途地域 | 1種住居 |
| 建ぺい/容積率 | 60% / 188% | 土地国土法 | |
| 許可番号 | 建築基準法 | ||
| 法令制限 | |||
| 小学区 | 西南部小学校 徒歩7分 (約500m) | 中学区 | 西南部中学校 徒歩10分 (約800m) |
| 現況 | 建築中 | 引渡 | 期日指定:2025年07月以降 |
| その他費用 | |||
| 周辺環境 | アルビス西南部店 徒歩7分 (約550m) 西南部中学校 徒歩13分 (約1040m) ローソン 金沢八日市店 徒歩15分 (約1170m) ローソン金沢米泉店 徒歩17分 (約1360m) 押野小学校 徒歩17分 (約1310m) めばえこども園 徒歩18分 (約1380m) 伏見かわい幼稚園 徒歩24分 (約1870m) 米泉小学校 徒歩30分 (約2380m) コレクトパーク金沢 徒歩34分 (約2670m) 大阪屋ショップ西泉店 徒歩34分 (約2670m) |
||
| 備考 | ・駐車場2台。車種により3台可。 | ||
| 物件番号 | 4236428 | 取引態様 | 媒介 |
取扱店舗情報
ハウスドゥ 金沢福久 株式会社サンリーバイカイ 店舗詳細ページへ
| 電話番号 | 076-201-8855 |
|---|---|
| 所在地 | 〒920-3126 石川県金沢市福久2丁目1 |
| 営業時間 | 9:30~18:00 |
| 定休日 | 毎週水曜・年末年始 |
| 宅建免許番号 | 石川県知事(1)第4504号 |
| アクセス | 店舗への地図はこちら |

来店ご予約
石川県金沢市で価格が似ている物件はこちら
- 石川県
マイページ物件数 - 501件
最近見た物件
石川県新築一戸建て新着物件
- お近くの店舗を探す
-




















耐震等級3の地震に強く、耐熱性も高いのでお住まいも快適ですね☆
天井部が木目デザインのおしゃれな内装です!お気軽にお問合せください(^^*)/