金沢市光が丘3丁目の新築戸建
掲載情報更新日:2025年11月02日 次回更新予定日:2025年11月16日
- 3,350万円
-
- 借入ご希望金額
万円 - 借入期間
年 - 借入金利
% - 月々のお支払い金額
円
- 借入ご希望金額
※ 月々のお支払例は目安の試算となりますので、実際の金額とは異なる場合がございます。詳しくは店舗までお問合わせください。
- 金沢市光が丘3丁目
-
『大額2丁目バス停』 徒歩4分 (約320m)
金沢市光が丘3丁目一戸建て | 物件情報
金沢市光が丘3丁目に新築分譲建築中!「大額2丁目」バス停まで徒歩4分♪
★ 乙丸駅近くでアクセス良好
★ 駐車スペース3台分あり
★ 前面道路も広く、車の出し入れがラクラク♪
★ 人気の野々市エリアもすぐ近く!
野々市にもアクセスしやすい立地にある物件。広めの前面道路で車の出入りもスムーズです!
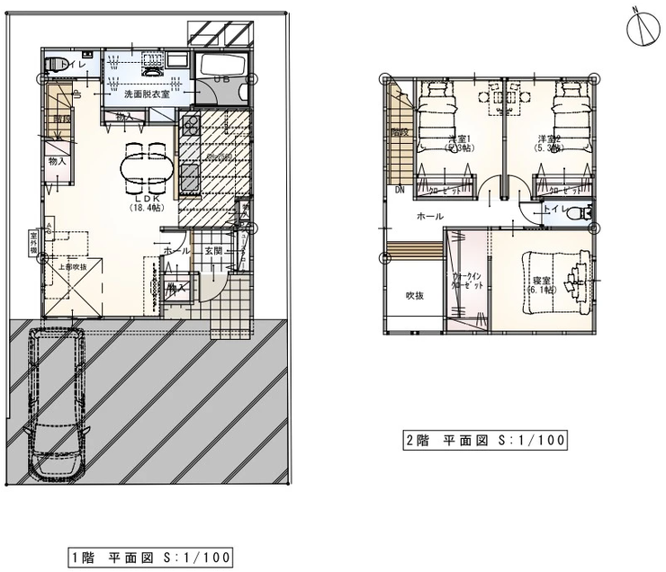
18.4帖の広々LDKに、天井高2.5m+吹き抜けが織りなす抜群の開放感♪
キッチンからリビング全体が見渡せる間取りで、家族とのコミュニケーションも自然と広がります(*^^*)
白を基調とした壁紙に、木目調のナチュラルな内装が映える落ち着いた住まいです☆彡
物件の設備
- オール電化
- 上水道
- 公共下水
- 食器洗浄乾燥機
- IHクッキングヒータ
- コンロ三口
- カウンターキッチン
- システムキッチン
- 浴室暖房
- 浴室乾燥機
- トイレ2箇所
- 洗面所独立
- LDK18畳以上
- 天井高2.5m以上
- 吹抜
- 全室フローリング
- クローゼット2箇所
- ウォークインクローゼット
- シューズインクローク
物件の特徴
- 前道6m以上
- 南側道路面す
- 2階建
物件詳細情報
| 価格 | 3,350万円 | 間取り | 3LDK |
|---|---|---|---|
| 物件種別 | 新築一戸建て | ||
| 所在地 | 石川県金沢市光が丘3丁目45番2 | ||
| アクセス |
|
||
| 建物面積 | 102.16㎡ | 駐車場 | あり 普通:3台 |
| 築年月 | 2025年(令和7年)09月予定 | 建築確認 | 第IKJC24-1781号 |
| 建物構造 | 木造 2階建 | 工法 | |
| 主要採光 | バルコニー | ||
| 保証・評価 | |||
| 土地面積 | 公122.69㎡(37.11坪) | 接道 | 南側(公道)幅 約6.0m 間口 約8.57m |
| 私道 | セットバック | ||
| 地目 | 宅地 | 地勢 | |
| 権利 | 所有権 |
||
| 都市計画 | 市街化区域 |
用途地域 | 1種低層 |
| 建ぺい/容積率 | 60% / 100% | 土地国土法 | |
| 許可番号 | 建築基準法 | ||
| 法令制限 | |||
| 小学区 | 額小学校 徒歩13分 (約1000m) | 中学区 | 額中学校 徒歩9分 (約660m) |
| 現況 | 建築中 | 引渡 | 期日指定:2025年10月末 |
| その他費用 | |||
| 周辺環境 | コープおおぬか 徒歩6分 (約440m) ファミリーマート金沢高尾南店 徒歩7分 (約520m) 額中学校 徒歩9分 (約660m) 額小学校 徒歩12分 (約900m) バロー金沢高尾店 徒歩11分 (約850m) 扇台小学校 徒歩13分 (約1040m) ゲンキー馬替 徒歩17分 (約1320m) ローソン金沢額新保店 徒歩20分 (約1550m) |
||
| 備考 | |||
| 物件番号 | 4268782 | 取引態様 | 媒介 |
取扱店舗情報
ハウスドゥ 金沢福久 株式会社サンリーバイカイ 店舗詳細ページへ
| 電話番号 | 076-201-8855 |
|---|---|
| 所在地 | 〒920-3126 石川県金沢市福久2丁目1 |
| 営業時間 | 9:30~18:00 |
| 定休日 | 毎週水曜・年末年始 |
| 宅建免許番号 | 石川県知事(1)第4504号 |
| アクセス | 店舗への地図はこちら |

来店ご予約
石川県金沢市で価格が似ている物件はこちら
- 石川県
マイページ物件数 - 494件
最近見た物件
-
-

-
- 新築一戸建て
- 3,150万円
-
菊池郡大津町大字大津
-
JR豊肥本線肥後大津
-
-
-

-
- 新築一戸建て
- 2,998万円
-
菊池郡大津町大字室
-
JR豊肥本線肥後大津
-
石川県新築一戸建て新着物件
- お近くの店舗を探す
-






















保育所や光が丘中央公園まで徒歩約3分と、小さなお子さまがいるご家庭にも嬉しい住環境です!
野々市・片町方面へのアクセスも良好で、通勤・お出かけにも便利な場所☆
さらに、徒歩圏内にはスーパーやコンビニ、ドラッグストアが揃っており、毎日のお買い物もラクラク♪
お気軽にお問い合わせください(^^)/