宮崎市中西町の新築戸建
掲載情報更新日:2025年12月02日 次回更新予定日:2025年12月16日
- 2,388万円
-
- 借入ご希望金額
万円 - 借入期間
年 - 借入金利
% - 月々のお支払い金額
円
- 借入ご希望金額
※ 月々のお支払例は目安の試算となりますので、実際の金額とは異なる場合がございます。詳しくは店舗までお問合わせください。
- 宮崎市中西町
-
JR日豊本線『宮崎』 徒歩26分 (約2070m)
JR日豊本線『南宮崎』 徒歩39分 (約3090m)
JR日南線『田吉』 徒歩43分 (約3420m)
宮崎交通『中西町』 徒歩3分 (約240m)
宮崎市中西町一戸建て | 物件情報
駐車4台可!免震新築4LDK
免震・耐震・制震構造&屋根付きバルコニーで安心快適。駐車4台可、LDK18帖超の広々空間。
◆免震・耐震・制震構造
三重の地震対策で大切な住まいとご家族を守ります。
◆LDK18畳以上+ルーフバルコニー
広々リビングと屋根付きバルコニーでゆとりのくつろぎ空間。
◆駐車4台可能
普通車4台分のスペースを確保。来客時にも便利です。
◆省エネ&防犯設備充実
オール電化・省エネ給湯器・ICカードキー・防犯カメラなど安全・経済的。
◆全居室収納+床下収納
クローゼット3箇所に加え床下収納も備え、住空間をすっきり保てます。
物件の設備
- 電気
- オール電化
- 公営水道
- 下水道
- 浄水器
- IHクッキングヒータ
- コンロ三口
- カウンターキッチン
- システムキッチン
- ユニットバス
- 浴室乾燥機
- トイレ2箇所
- 温水洗浄便座
- 室内洗濯機置場
- 洗髪洗面化粧台
- 人感照明センサー
- 省エネ給湯器
- 非接触型ICカードキー
- モニタ付インターホン
- 防犯カメラ
- 火災警報器/報知機
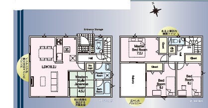
- LDK18畳以上
- 和室
- 複層ガラス
- フローリング
- 24時間換気システム
- クローゼット
- 床下収納
- 全居室収納
- ルーフバルコニー
- インナーバルコニー
物件の特徴
- 免震構造
- 耐震構造
- 制震構造
- 2階建
- 整形地
- 外壁サイディング
- 建設住宅性能評価付
- 設計住宅性能評価付
- フラット35
- S適合証明書
- フラット35Sに対応
物件詳細情報
| 価格 | 2,388万円 | 間取り | 4LDK |
|---|---|---|---|
| 物件種別 | 新築一戸建て | ||
| 所在地 | 宮崎県宮崎市中西町 1号棟/1区画 | ||
| アクセス |
|
||
| 建物面積 | 公96.38㎡ | 駐車場 | あり 普通:4台 |
| 築年月 | 2025年(令和7年)08月築 | 建築確認 | 第R07SHC106013号 |
| 建物構造 | 木造 スレート、アスファルシングル 2階建 | 工法 | |
| 主要採光 | バルコニー | 9.72㎡ | |
| 保証・評価 | フラット35S適合証明書・設計住宅性能評価書・建設住宅性能評価書(新築時) |
||
| 分譲情報 | |||
| 土地面積 | 公206.16㎡(62.36坪) | 接道 | 北側(公道)幅 約4.0m |
| 私道 | セットバック | ||
| 地目 | 宅地 | 地勢 | |
| 権利 | 所有権 |
||
| 都市計画 | 市街化区域 |
用途地域 | 1種低層 |
| 建ぺい/容積率 | 60% / 100% | 土地国土法 | |
| 許可番号 | 建築基準法 | ||
| 法令制限 | |||
| 小学区 | 潮見小学校 徒歩9分 (約700m) | 中学区 | 宮崎中学校 徒歩16分 (約1240m) |
| 現況 | 空 | 引渡 | 相談 |
| その他費用 | |||
| 周辺環境 | WASHハウス 宮崎中西店 徒歩3分 (約190m) まえだストアー 徒歩5分 (約400m) 出来島・高洲コミュニティーセンター 徒歩6分 (約470m) ファミリーマート 潮見町店 徒歩7分 (約560m) 潮見小学校 徒歩9分 (約700m) セブンイレブン 宮崎一の宮町店 徒歩8分 (約580m) コスモス 曽師店 徒歩10分 (約730m) WASHハウス 堀川店 徒歩15分 (約1130m) セブンイレブン 宮崎堀川町 徒歩15分 (約1130m) ローソン 宮崎稗原町店 徒歩18分 (約1370m) |
||
| 備考 | ※網戸・シャッター・面格子・カーテンレールは別途見積もりです。 ※電波障害による共聴アンテナなどの引き込みは買い主様の負担となります。 |
||
| 物件番号 | 4279758 | 取引態様 | 媒介 |
取扱店舗情報
| 電話番号 | 0985-86-7336 |
|---|---|
| 所在地 | 〒889-1607 宮崎県宮崎市清武町加納3丁目16 メモワールII101号室 |
| 営業時間 | 9:00~20:00 |
| 定休日 | 不定休 |
| 宅建免許番号 | 宮崎県知事(1)第4995号 |
| アクセス | 店舗への地図はこちら |

来店ご予約
宮崎県宮崎市で価格が似ている物件はこちら
- 宮崎県
マイページ物件数 - 1,682件
最近見た物件
-
-

-
- 新築一戸建て
- 3,180万円
-
沼津市沢田町
-
JR東海道本線沼津
-
-
-

-
- 新築一戸建て
- 3,990万円
-
宇治市伊勢田町砂田
-
近鉄京都線伊勢田
-
-
-

-
- 新築一戸建て
- 2,380万円
-
福山市千田町大字千田
-
JR福塩線横尾
-
宮崎県新築一戸建て新着物件
- お近くの店舗を探す
-
おすすめ物件
-
-

-
- 新築一戸建て
- 2,690万円
-
宮崎市大字恒久
-
福祉センター前
-





































担当エージェント:小玉 賢太
免震構造で安心の住まいです!
現地にて開放感をご体感ください。
資料請求もお気軽にどうぞ。